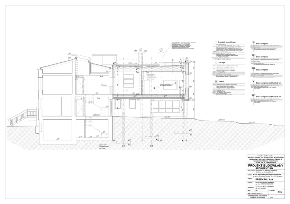
Projekt zagosp i architektura - A 06 Przekrój A-A

Transkrypt

Projekt zagosp i architektura - A 06 Przekrój A-A
1 Stropodach niewentylowany
komin wentylacyjny z systemowych pustaków betonowych,
przekrój otw. 12 x 17 cm, np. firmy Schiedel,
obmurowany bloczkami gr. 12 cm i ocieplony
5 cm styropianu. Wykończenie systemowy tynk
cienkowarstwowy, baranek 2 mm. Przewody
wewntylacyjne zakończone systemowymi
nasadami uniemożliwiającymi wsteczny ciąg powietrza
+ 9.38
+ 9.33
papa wierzchniego krycia
np. EXTRA DACH TOP 5,2 SZYBKIPROFIL SBS firmy ICOPAL
papa z warstwą wentylacyjną np. TERMIK BAZA 1,5 firmy ICOPAL
(stosować systemowe kominki wentylacyjne w ilości 1 szt na 50 m2
warstwa gruntująca np. SIPLAST PRIMER SZYBKI GRUNT firmy ICOPAL
szlichta cementowa M12, zbrojona zgrzewaną siatką stalową z prętów
fi 4mm o oczkach 100 x 100 mm
polistyren ekspandowany EPS 100-038
układany schodkowo, narastająco w kierunku attyki.
paroizolacja - papa termozgrzewalna z wkładką aluminiową
np. FOALBIT AL40 firmy ICOPAL
strop żelbetowy wg proj. konstrukcji
tynk gipsowy + 2xfarba emulsyjna biała
5-10cm
+ 8.95
30-60 cm
+ 8.33
9
15
4%
+ 7.52
+ 6.57
+ 6.53
+ 6.09
200
200
335
254
nowy strop żelbetowy gr. 22 cm
nad istniejącymi sypialniami
S3.1
Ściana zewnętrzna
1,0 cm tynk gipsowy + 2 x farba lateksowa kolor wg indyw.doboru Inwestora
24,0cm ściana żelbetowa
Sala zajęć
20 cm styropian fasadowy EPS 031
tynk cienkowarstwowy silikonowy na siatce, baranek 2 mm
2.1
5,0cm
95
+ 2.83
77 18
18
16
+ 2.57
+ 1.89
0,5cm
10,0cm
22 - 30 cm
18 cm
Ściana zewnętrzna
1,0 cm tynk gipsowy + 2 x farba lateksowa kolor wg indyw.doboru Inwestora
24,0cm ściana z bloczków gazobetonowych klasy 500 kG/m3
20 cm styropian fasadowy EPS 031
tynk cienkowarstwowy silikonowy na siatce, baranek 2 mm
4
Ściana zewnętrzna na styku z bud. istn.
1,0 cm tynk gipsowy + 2 x farba lateksowa kolor wg indyw.doboru Inwestora
15,0cm ściana żelbetowa wg. proj. konstrukcji
10 cm wełna mineralna np. FRONTROCK MAX E firmy ROCKWOOL
ściana istniejąca
szlichta cementowa marki 12 MPa z dodatkiem
włókien polipropylenowych, dylatowana obwodowo,
przekładka technologiczna z folii PE na styropianie
paroizolacja - folia PE
styropian EPS 100-038
płyta żelbetowa wg projektu konstrukcji
styropian fasadowy EPS 031
tynk cienkowarstwowy silikonowy na siatce
S4.1
+ 2.45
+ 2.27
Ściana zewnętrzna na styku z bud. istn.
1,0 cm tynk gipsowy + 2 x farba lateksowa kolor wg indyw.dobory Inwestora
24,0cm ściana z bloczków gazobetonowych klasy 500 kG/m3
10 cm wełna mineralna np. FRONTROCK MAX E firmy ROCKWOOL
ściana istniejąca
259
180
246
257
+ 1.23
186
+ 3.05
+ 2.75
paroizolacja - folia PE
styropian EPS 100-038
płyta żelbetowa wg projektu konstrukcji
wełna mineralna np. FRONTROCK MAX E firmy ROCKWOOL
tynk cienkowarstwowy silikonowy na siatce, baranek 2 mm
2.1 Łazienki
+ 4.12
30 13
25 13
+ 3.18
S3.2
2,0 cm warstwa wykończeniowa - terakota na kleju elastycznym
2
+ 2.80
1,0 cm tynk gipsowy + 2 x farba lateksowa kolor wg indyw.doboru Inwestora
24,0cm ściana żelbetowa
18 cm wełna mineralna np. FRONTROCK MAX E firmy ROCKWOOL
tynk cienkowarstwowy silikonowy na siatce, baranek 2 mm
szlichta cementowa marki 12 MPa z dodatkiem
5,0cm włókien polipropylenowych, dylatowana obwodowo,
przekładka technologiczna z folii PE na styropianie
0,5cm
10,0cm
22 - 30 cm
18 cm
komin wentylacyjny
z systemowych
pustaków betonowych,
przekrój otw. 12 x 17 cm,
np. firmy Schiedel
2
+ 3.18
170
20 73
41
60
20
50
+ 6.73
+4,35
DO
WYBURZENIA
2
Ściana zewnętrzna
2,0 cm warstwa wykończeniowa - wykładzina dywanowa na piance
85 16
4
+ 7.82 + 8.22
36
4%
+ 7.28
+ 7.57
20
1
16 - 20 cm
1cm
+ 8.27
S3
+/- 0.00 = 15.91
- 0.30 = 15.61
- 0.71= 15.20
- 1.08 = 14.83
- 2.18
-2,49
- 3.15
- 3.16
- 2.53
- 2.95
- 3.07
- 3.48
- 3.65
D
poziom i stan
fundamentów nie
jest znany
C.1
- 4.00
C
- 3.30
B
A.1 A
B.1
+/- 0,00 = 15.91 m.n.p.W
PROJEKT BUDOWLANY PRZEBUDOWY, ROZBUDOWY I
NADBUDOWY BUDYNKU PRZEDSZKOLA NR 243 W
WARSZAWIE, PRZY UL. KORDIANA 7/1
DZ. NR. EW. 45, OBRĘB 3-09-19
PROJEKT BUDOWLANY
ARCHITEKTURA
Adres inwestycji:
Inwestor:
ul. Kordiana 7/1, Warszawa Rembertów,
działka nr ew. 45, obręb 3-09-19
M. St. Warszawa Dzielnica Rembertów
al. gen. A. Chruściela "Montera" 28, 04-401 Warszawa
Rysunek:
Projektant:
Sprawdzający:
Skala:
Data: 15
PRZEKRÓJ A-A
mgr inż. arch. Andrzej LESIEWICZ
upr. bud. Bł-PdOKK/60/2005/2006
mgr inż. arch. Marek JEŁOWICKI
upr. bud. MA/009/07
1:50
Nr rysunku:
A/06
października 2015 r.
OPRACOWANIE CHRONIONE
PRAWEM AUTORSKIM
strona