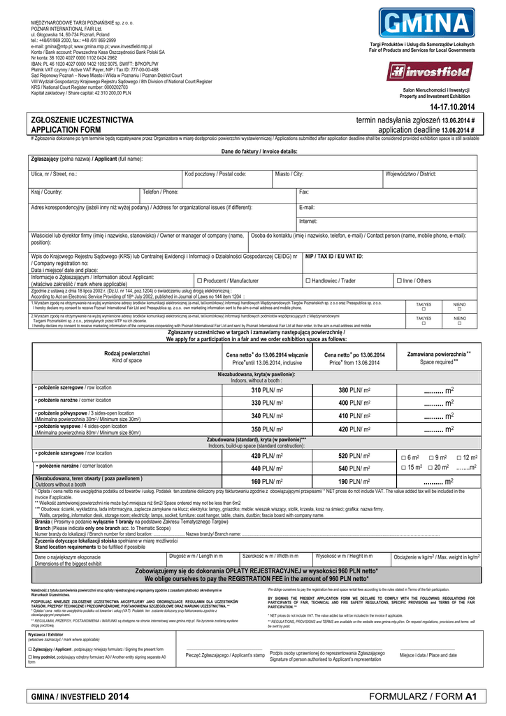
A1 - zgłoszenie uczestnictwa

Transkrypt

A1 - zgłoszenie uczestnictwa
MIĘDZYNARODOWE TARGI POZNAŃSKIE sp. z o. o.
POZNAŃ INTERNATIONAL FAIR Ltd.
ul. Głogowska 14, 60-734 Poznań, Poland
tel.: +48/61/869 2000, fax.: +48 /61/ 869 2999
e-mail: [email protected]; www.gmina.mtp.pl; www.investfield.mtp.pl
Konto / Bank account: Powszechna Kasa Oszczędności Bank Polski SA
Nr konta: 38 1020 4027 0000 1102 0424 2962
IBAN: PL 46 1020 4027 0000 1402 1092 9075, SWIFT: BPKOPLPW
Płatnik VAT czynny / Active VAT Payer, NIP / Tax ID: 777-00-00-488
Sąd Rejonowy Poznań – Nowe Miasto i Wilda w Poznaniu / Poznan District Court
VIII Wydział Gospodarczy Krajowego Rejestru Sądowego / 8th Division of National Court Register
KRS / National Court Register number: 0000202703
Kapitał zakładowy / Share capital: 42 310 200,00 PLN
Targi Produktów i Usług dla Samorządów Lokalnych
Fair of Products and Services for Local Governments
Salon Nieruchomości i Inwestycji
Property and Investment Exhibition
14-17.10.2014
termin nadsyłania zgłoszeń 13.06.2014 #
application deadline 13.06.2014 #
ZGŁOSZENIE UCZESTNICTWA
APPLICATION FORM
# Zgłoszenia dokonane po tym terminie będą rozpatrywane przez Organizatora w miarę dostępności powierzchni wystawienniczej / Applications submitted after application deadline shall be considered provided exhibition space is still available
Dane do faktury / Invoice details:
Zgłaszający (pełna nazwa) / Applicant (full name):
Ulica, nr / Street, no.:
Kod pocztowy / Postal code:
Kraj / Country:
Miasto / City:
Telefon / Phone:
Województwo / District:
Fax:
Adres korespondencyjny (jeżeli inny niż wyżej podany) / Address for organizational issues (if different):
E-mail:
Internet:
Właściciel lub dyrektor firmy (imię i nazwisko, stanowisko) / Owner or manager of company (name,
position):
Osoba do kontaktu (imię i nazwisko, telefon, e-mail) / Contact person (name, mobile phone, e-mail):
Wpis do Krajowego Rejestru Sądowego (KRS) lub Centralnej Ewidencji i Informacji o Działalności Gospodarczej CEIDG) nr
/ Company registration no:
Data i miejsce/ date and place:
Informacje o Zgłaszającym / Information about Applicant:
Producent / Manufacturer
(właściwe zakreślić / mark where applicable)
NIP / TAX ID / EU VAT ID:
Handlowiec / Trader
Inne / Others
Zgodnie z ustawą z dnia 18 lipca 2002 r. (Dz.U. nr 144, poz.1204) o świadczeniu usług drogą elektroniczną :
According to Act on Electronic Service Providing of 18th July 2002, published in Journal of Laws no 144 item 1204 :
1.Wyrażam zgodę na otrzymywanie na wyżej wymienione adresy środków komunikacji elektronicznej (e-mail, tel.komórkowy) informacji handlowych Międzynarodowych Targów Poznańskich sp. z o.o oraz Presspublica sp. z o.o.
I hereby declare my consent to receive Poznań International Fair Ltd and Presspublica sp. z o.o. own marketing information sent to the a/m e-mail address and mobile phone.
2.Wyrażam zgodę na otrzymywanie na wyżej wymienione adresy środków komunikacji elektronicznej (e-mail, tel.komórkowy) informacji handlowych podmiotów współpracujących z Międzynarodowymi
Targami Poznańskimi sp. z o.o., przesyłanych przez MTP na ich zlecenie.
I hereby declare my consent to receive marketing information of the companies cooperating with Poznań International Fair Ltd and sent by Poznań International Fair Ltd at their order, to the a/m e-mail address and mobile
TAK/YES
NIE/NO
TAK/YES
NIE/NO
Zgłaszamy uczestnictwo w targach i zamawiamy następującą powierzchnię /
We apply for a participation in a fair and we order exhibition space as follows:
Rodzaj powierzchni
Kind of space
Cena netto* do 13.06.2014 włącznie
Price*until 13.06.2014, inclusive
Cena netto* po 13.06.2014
Price* from 13.06.2014
Zamawiana powierzchnia**
Space required**
Niezabudowana, kryta(w pawilonie):
Indoors, without a booth :
▪ położenie szeregowe / row location
310 PLN/ m2
380 PLN/ m2
▪ położenie narożne / corner location
330 PLN/
m2
400 PLN/
m2
.......... m2
.......... m2
340 PLN/
m2
410 PLN/ m2
.......... m2
350 PLN/ m2
420 PLN/ m2
.......... m2
□ 6 m2 □ 9 m2 □ 12 m2
□ 15 m2 □ 20 m2 .…....m2
▪ położenie półwyspowe / 3 sides-open location
(Minimalna powierzchnia 30m2 / Minimum size 30m2)
▪ położenie wyspowe / 4 sides-open location
(Minimalna powierzchnia 80m2 / Minimum size 80m2)
Zabudowana (standard), kryta (w pawilonie)***
Indoors, build-up space (standard construction):
▪ położenie szeregowe / row location
420 PLN/ m2
520 PLN/ m2
▪ położenie narożne / corner location
440 PLN/
m2
540 PLN/
m2
160 PLN/
m2
190 PLN/ m2
Niezabudowana, teren otwarty ( poza pawilonem )
Outdoors without a booth
.......... m2
* Opłata / cena netto nie uwzględnia podatku od towarów i usług. Podatek ten zostanie doliczony przy fakturowaniu zgodnie z obowiązującymi przepisami/ * NET prices do not include VAT. The value added tax will be included in the
invoice if applicable.
** Wielkość zamówionej powierzchni nie może być mniejsza niż 6m2/ Space ordered may not be less than 6m2
*** Obudowa: ścianki, wykładzina, lada informacyjna, zaplecze zamykane na klucz; elektryka: lampy, gniazdko; meble: wieszak wiszący, stolik, krzesła, kosz na śmieci; grafika: nazwa firmy.
Walls, carpeting, information desk, storage room; electricity: lamps, socket; furniture: coat hanger, table, chairs, dustbin; fascia board with company name.
Branża ( Prosimy o podanie wyłącznie 1 branży na podstawie Zakresu Tematycznego Targów)
Branch (Please indicate only one branch acc. to Thematic Scope)
Numer branży do lokalizacji / Branch number for stand location: ........................... Nazwa branży/ Branch name: ......................................................................................................................................…………………………
Życzenia dotyczące lokalizacji stoiska spełniane w miarę możliwości
Stand location requirements to be fulfilled if possibile
Długość w m / Length in m
Dane o największym eksponacie
Dimensions of the biggest exhibit
Szerokość w m / Width in m
Wysokość w m / Height in m
Obciążenie w kg/m2 / Max. weight in kg/m2
Zobowiązujemy się do dokonania OPŁATY REJESTRACYJNEJ w wysokości 960 PLN netto*
We oblige ourselves to pay the REGISTRATION FEE in the amount of 960 PLN netto*
Należność z tytułu zamówienia powierzchni oraz opłaty rejestracyjnej uregulujemy zgodnie z zasadami płatności określonymi w
Warunkach Uczestnictwa.
PODPISUJĄC NINIEJSZE ZGŁOSZENIE UCZESTNICTWA AKCEPTUJEMY JAKO OBOWIĄZUJACE: REGULAMIN DLA UCZESTNIKÓW
TARGÓW, PRZEPISY TECHNICZNE I PRZECIWPOŻAROWE, POSTANOWIENIA SZCZEGÓŁOWE ORAZ WARUNKI UCZESTNICTWA. **
* Opłata / cena netto nie uwzględnia podatku od towarów i usług (VAT). Podatek ten zostanie doliczony przy fakturowaniu zgodnie z
obowiązującymi przepisami.
** REGULAMIN, PRZEPISY, POSTANOWIENIA i WARUNKI są dostępne na stronie internetowej www.gmina.mtp.pl. Na życzenie zostaną wysłane
drogą pocztową.
We oblige ourselves to pay the registration fee and space rental fees according to the rules stated in Terms of the fair participation.
BY SIGNING THE PRESENT APPLICATION FORM WE DECLARE TO COMPLY WITH THE FOLLOWING: REGULATIONS FOR
PARTICIPANTS OF FAIR, TECHNICAL AND FIRE SAFETY REGULATIONS, SPECIFIC PROVISIONS and TERMS OF THE FAIR
PARTICIPATION. **
* NET prices do not include VAT. The value added tax will be included in the invoice if applicable.
** REGULATIONS, PROVISIONS and TERMS are available on the website www.gmina.mtp.pl/en. On request regulations, provisions and terms will
be sent by post.
Wystawca / Exhibitor
(właściwe zaznaczyć / mark where applicable)
Zgłaszający / Applicant , podpisujący niniejszy formularz / Signing the present form
_______________________________________
__________________________________________________________
____________________________
Inny podmiot, podpisujący odrębny formularz A0 / Another entity signing separate A0
form
Pieczęć Zgłaszającego / Applicant’s stamp
Podpis osoby uprawnionej do reprezentowania Zgłaszającego
Signature of person authorised to Applicant’s representation
Miejsce i data / Place and date
GMINA / INVESTFIELD 2014
FORMULARZ / FORM A1