Informacje dotyczące zasobników ciepłej wody WWSP 332

Transkrypt

Informacje dotyczące zasobników ciepłej wody WWSP 332
Informacje dotyczące zasobników ciepłej wody WWSP 332
Informacje dotyczące zasobników ciepłej wody WWSP 332
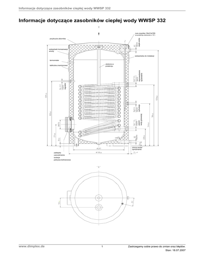
UXUDF]XMQLND[[
ZSU]HNURMXREUyFRQDRƒ
FLHSáDZRGD
SU]\NU\FLH]ELRUQLND
ZVND]yZNLNRQVHUZDFML
DQRG\
ZVND]yZNDGRLQVWDODFML
WHUPRPHWHU
XáRĪRQHZ
SU]HNURMX
SRZUyW
ZRG\JU]HZF]HM
F\UNXODFMD
UHJXODWRU
GRSURZDG]HQLH
RJU]HZDQLD
WDEOLF]ND]QDPLRQRZD
]LPQDZRGD
RSUyĪQLDQLH
]DĞOHSND
XV]F]HOQLDQLH
L]RODFMD
SRNU\ZDNRáQLHU]RZD
www.dimplex.de
1
Zastrzegamy sobie prawo do zmian oraz błędów.
Stan: 18.07.2007
Informacje dotyczące zasobników ciepłej wody WWSP 332
Dane techniczne
Zawartość znamionowa
Spadek ciśnienia zbiornika ciepłej wody:
twoda = 20 °C, pwoda = 2bar
300 l
Zawartość użytkowa
277 l
3,15 m2
Powierzchnia wymiany ciepła
Wysokość
1294 mm
Szerokość
Głębokość
700 mm
Wymiar poprzeczny
1500 mm
dopusz. temp. robocza wody grzewczej
110 °C
dopusz. ciś. robocze wody grzewczej
10 bar
dopusz. temp. robocza ciepłej wody
95 °C
dopusz. ciś. robocze ciepłej wody
10 bar
Strata ciepła
1
' S>3D@
Średnica
1,80 kWh/24h
Ciężar zbiornika
130 kg
1. Temperatura w pomieszczeniu 20 °C; temp. w zbiorniku 50 °C
Ciepła woda
1“ gwint zew.
Doprowadzenie wody grzewczej
1 1/4“ gwint wew.
Powrót wody grzewczej
1 1/4“ gwint wew.
Średnica anody
Długość anody
Gwint podłączeniowy anody
Tulejka nurnikowa
WHPSNXPXODF\MQDZ>ƒ&@
Kołnierz
Osiągane temperatury w zbiorniku dla
temperatura dopływu 55 °C
1“ gwint zew.
3/4“ gwint wew.
Cyrkulacja
9>PñK@
Przyłącza
Zimna woda
TK150/DN110
33 mm
625 mm
1 1/4“ gwint wew.
1/2“ gwint wew.
Należy używać różnych czujników ciepłej wody w zależności od
posiadanego menedżera pompy ciepła zabudowanego w instalacji.
PñK
PñK
PñK
WPM 2006 z integrowanym wyświetlaczem i okrągłymi przyciskami
=> znormalizowany czujnik NTC-2
PñK
PRFJU]HZF]DZ>N:@
WPM 2007 ze zdejmowalnym elementem sterującym i kwadratowymi
przyciskami
=> znormalizowany czujnik NTC-10
Osiągane temperatury w zbiorniku dla
temperatura dopływu 65 °C
WHPSNXPXODF\MQDZ>ƒ&@
PñK
PñK
PñK
PñK
www.dimplex.de
2
PRFJU]HZF]DZ>N:@
Zastrzegamy sobie prawo do zmian oraz błędów.
Stan: 18.07.2007