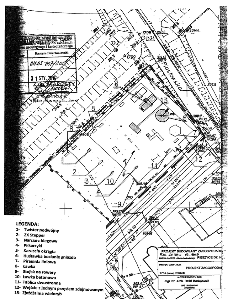
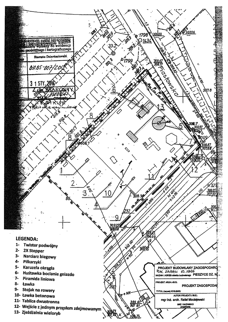
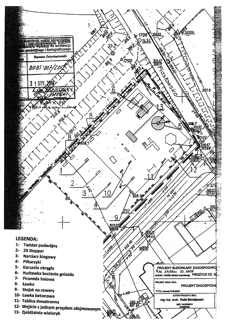
Karta techniczna urządzenia

Transkrypt

Karta techniczna urządzenia
,80x40x3mm, 40x40x3mm, rączki z rury
30x2mm
Karta techniczna urządzenia
Temat/Nazwa:
Huśtawka bocianie gniazdo
Materiał:
Elementy i rury stalowe, beton, liny zbrojone
Utworzenie:
2011-11-01
Waga:
101+753kg
Przeznaczenie: Skala:
Symbol:
Zabawowe
2270
1:25
Uwagi:
WSU - 1170mm
Rys. 1.
rura stalowa 114/4mm
łańcuch DIN 766
16mm
2215
lina zbrojona
520
520
250
450
2040
prefabrykat betonowy 1000/1000/240mm
240
wykop pod fundamenty
1000
lina zbrojona
1200
2154
prefabrykat betonowy 1000/1000/240mm
16mm
łańcuch DIN 766
rura stalowa 114/4mm
Charakterystyka urządzenia
- Konstrukcja urządzenia wykonana jest z rur stalowych 114/4mm
- Zawiesie huśtawki wykonano z łańcucha chromowego = 6mm, teflonu i elementów chromowych
- Dzięki zastosowaniu tulejek z teflonu huśtanie jest płynne, a układ wahadłowy nie wymaga konserwacji
- Cięgno huśtawki wykonane jest z łańcucha chromowego oraz lin zbrojonych
- Konstrukcja urządzenia ocynkowana metodą ogniową i malowana lakierem akrylowym, strukturalnym
- W komplecie znajdują się prefabrykaty betonowe ułatwiające montaż w gruncie
- Urządzenie posiada Certyfikat na zgodność z normą PN-EN 1176
UWAGA ! Korzystanie z urządzenia przez dzieci może mieć miejsce tylko i wyłącznie pod nadzorem dorosłych.
Obowiązuje od: 30.07.2012 r.
BUJAK STATEK
Numer katalogowy: 22200
Grupa wiekowa:
Maksymalna wysokość
swobodnego upadku:
Wymiary urządzenia
(dł. x szer. x wys.)
Wymiary powierzchni
zderzenia (dł. x szer.)
3 - 14 lat
0,47 m
0,88 x 0,38 x 0,81 m
3,39 x 3,18 m
Opis techniczny
Konstrukcja wykonana ze stali oraz płyty polietylenowej HDPE.
Konstrukcja stalowa ocynkowana metodą ogniową oraz malowana lakierem akrylowym
strukturalnym.
W komplecie znajdują się fundamenty wykonane z betonu B30, ułatwiające montaż.
Wymiary urządzenia
+0,81
+0,47
0,00
-0,67
1|Strona
Wymiary powierzchni zderzenia
Dopuszczalna nawierzchnia amortyzująca
Darń, gleba
Kora – ziarno 20 do 80 mm, grubość min. 200mm
Wióry – ziarno 5 do 30 mm, grubość min. 200mm
Piasek – ziarno 0,2 do 2 mm, grubość min. 200mm
Żwir – ziarno 2 do 8 mm, grubość min. 200 mm
Nawierzchnie syntetyczne o wymaganym wskaźniku HIC
Nawierzchnia amortyzująca powinna być wykonana na całej powierzchni zderzenia.
2|Strona
Obowiązuje od: 30.07.2012 r.
KARUZELA TOMEK
Numer katalogowy: 2208
Grupa wiekowa:
Maksymalna wysokość
swobodnego upadku:
Wymiary urządzenia
(dł. x szer. x wys.)
Wymiary powierzchni
zderzenia (dł. x szer.)
3 - 14 lat
0,47 m
Ø1,35 x 0,80 m
Ø5,35 m
Opis techniczny
Konstrukcja wykonana ze stali oraz płyty polietylenowej HDPE.
Podest wykonany z blachy łezki lub z płyty polietylenowej HDPE.
Konstrukcja stalowa zabezpieczona antykorozyjnie oraz malowana lakierem akrylowym
strukturalnym.
W komplecie znajdują się fundamenty wykonane z betonu B30, ułatwiające montaż.
Wymiary urządzenia
+0,80
+0,47
+0,15
0,00
-0,43
1|Strona
Wymiary powierzchni zderzenia
Dopuszczalna nawierzchnia amortyzująca
Darń, gleba
Kora – ziarno 20 do 80 mm, grubość min. 200mm
Wióry – ziarno 5 do 30 mm, grubość min. 200mm
Piasek – ziarno 0,2 do 2 mm, grubość min. 200mm
Żwir – ziarno 2 do 8 mm, grubość min. 200 mm
Nawierzchnie syntetyczne o wymaganym wskaźniku HIC
Nawierzchnia amortyzująca powinna być wykonana na całej powierzchni zderzenia.
2|Strona
Karta techniczna urządzenia
Temat/Nazwa:
Narciarz biegowy
Materiał:
Elementy i rury stalowe, beton, plastik
Utworzenie:
2012-12-02
Waga:
350kg
Przeznaczenie: Skala:
Symbol:
21550,21559 Sportowe
1:30
Uwagi:
540
rura
38x2,6mm
1000
215
profil zamknięty 40x120x3mm
profil zamknięty 40x80x3mm
380
1060
570
1950
435
220
220
1420
o
70
840
270
210
760
300
300
1090
1330
1210
580
Charakterystyka urządzenia
- Konstrukcja urządzenia wykonana jest z profili 120x40x3mm oraz 80x40x2,6mm
- Uchwyty urządzenia wykonane z rury 30x2mm w kształcie łuków
- Praca urządzenia oparta na łożyskach nie wymagających konserwacji
- Całość urządzenia zabezpieczona antykorozyjnie.
- W zestawie znajdują się prefabrykaty betonowe ułatwiające montaż w gruncie
UWAGA ! Korzystanie z urządzenia przez dzieci może mieć miejsce tylko i wyłącznie pod nadzorem dorosłych.
Karta techniczna urządzenia
Temat/Nazwa:
Piłkarzyki
Materiał:
Elementy i rury stalowe, beton, plastik
Symbol:
8000
Uwagi:
Przeznaczenie: Skala:
Sportowe
1:20
760
160
Utworzenie:
2010-02-16
Waga:
470kg
530
760
155
825
155
1500
1385
3825
1500
1500
1500
zalecana strefa wolna
4385
skala 1:65
Charakterystyka urządzenia
- Urządzenie przeznaczone do zabawy na wolnym powietrzu
- Konstrukcja urządzenia wykonana jest z betonu klasy B30, a blat wykonany z betonu z kruszywem ozdobnym
- Powierzchnia boiska szlifowana jest na gładko co zapewnia wysoki komfort gry
- Rączki z prętów chromowych zakończone są gumowymi uchwytami
- Obrzeże boiska wykonane z listwy aluminiowej zabezpieczającej przed uderzeniami i obiciem
UWAGA ! Korzystanie z urządzenia przez dzieci może mieć miejsce tylko i wyłącznie pod nadzorem dorosłych
łożyskach
Karta techniczna urz¹dzenia
Temat/Nazwa:
Stó³ do tenisa sto³owego
Materia³:
Stal, beton, plastik
Utworzenie:
2010-03-30
Waga:
692kg
Symbol: Przeznaczenie:
Sportowe
3200
Uwagi:
Do wkopania
Skala:
1:30
Siatka z blachy gr.5mm
460
680
760
80
2740
80
500
1550
1520
blat betonowy szlifowany i lakierowany
Charakterystyka urz¹dzenia
- Blat sto³u wykonany z wysokogatunkowego betonu z kruszywem ozdobnym, szlifowany i lakierowany
- Siatka do gry wykonana z blachy stalowej gr.5 mm
- Ca³oœæ urz¹dzenia usztywniona jest dwoma k¹townikami stalowymi o wymiarach 75x50x1630mm
- Wszystkie elementy stalowe w urz¹dzeniu ocynkowane s¹ metod¹ ogniow¹
- Blat sto³u po obwodzie chroni listwa aluminiowa, nadaj¹ca elegancki wygl¹d i zapobiegaj¹ca obiciom
- Urz¹dzenie posiada Certyfikat na zgodnoœæ z norm¹ PN-EN 1510
UWAGA ! Urz¹dzenie nale¿y wykorzystywaæ wy³¹cznie zgodnie z jego przeznaczeniem.