0. garaz - Rent Romanowicz

Transkrypt

0. garaz - Rent Romanowicz
5.211
2.573
630
25
275
dylatacja
5
1.770
38
7
155
25
6
630
25
275
25
H
206
2 248
25
25
5
25
155
1.613
25
25
195
H
2.443
B
195
0/1
pom. na odpady
10,88 gres
390
75
615
-3,22 = 2,58 mnpm
30
910
20
630
12
300
300
12
12"
630
30
14
13 13"
615
75
390
645
45
3405
75
660
+1,8
10% L=18,0 m
75
3"
25
200
25
150
128
615
3
40
2
12
555
255
620
660
2"
550
1
398
12
-1,42 = 4,38 mnpm
1 770
5
90
480
100
114
1 770
5
197
250
60
1535
5
801
1.585
141
2525
60
4185
60
2525
60
60
126
38
1.770
38
5
1.770
38
60
120
5745
5745
WG1
WG1
1675
104
250
HP 52
H
10
35
35
485
114
EI 60
50
250
WG1
WG1
0/7
wentylatornia
16,98 gres
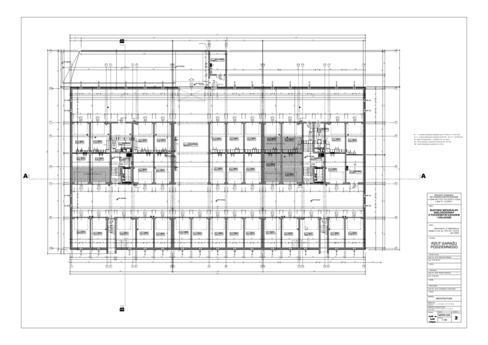
0/G-08 garaz
14,84 beton
komunikacja
0/2
656,94 beton
0/G-09 garaz
17,91 beton
240
0/G-10 garaz
17,65 beton
0/G-11 garaz
16,25 beton
WG - wrota garażowe o powierzchni otworów min. 0,24 m2
225
290
25
350
25
25
105
250
60
20
250
338
50
625
250
250
5
55
45
30
60
250
120
A
300
255
Dźwig hydrauliczny
2 871
0/5
węzeł cieplny
14,19 gres
1000 kg
336
35
EI30
WG1
114
C
35
220
250
125
spadek 100%
150
325
13 osób
HP 52
WG1
250
201
H
10
250
50
250
220
250
220
WG1
10
250
220
WG1
250
220
250
220
10
5675
50
WG1
4815
4815
0/G-21 garaz
17,64 beton
1675
5
50
WG1
12
12
65
345
250
110
150
85
60
30
OW
236
WG1
35
100
EI 60
WG1
25
135
300
0/G-20 garaz
17,90 beton
135
STROP OBNIŻONY DO POZIOMU USŁUG
H
10
D
30
0/G-18 garaz
14,97 beton
120
25
6 x 19,0
27
0/G-17 garaz
14,96 beton
170
5365
0/G-16 garaz
14,19 beton
5365
0/G-15 garaz
14,97 beton
szafa ster. dzwigu
0/4
przedsionek
22,31 gres
235
PROJEKT ZAMIENNY
DO POZWOLENIA NA BUDOWE
60
25
200
5
25
160
2925
20
25
2925
25
13 osób
spadek 100%
114
275
1000 kg
25
110
25
5365
0/G-14 garaz
18,03 beton
HP 52
250
605
0/G-19 garaz
14,84 beton
250
220
Dźwig hydrauliczny
300
201
220
10
250
60
25
25
WG1
250
25
60
OW
35
WG1
2925
20
250
220
1675
35
250
220
35
100
EI 60
60
170
135
300
STROP OBNI˚ONY DO POZIOMU US¸UG
C
25
3525
25
135
6 x 19,0
27
5365
5115
5115
2 871
170
30
25
D
120
5365
364
10
1
525
25
25
160
225
0/6
przedsionek
13,29 gres
340
540
25
135
30
12
12
12
1.0355
12
25
12
12
12
540
-2,26 = 3,54 mnpm
szafa ster. dzwigu
25
KP - klapa przeciwpożarowa - szczegóły w pt. ent. mech.
OW - otwór wentylacyjny nawiewny 0,3 x 0,6 m
-2,26 = 3,54 mnpm
0/G-13 garaz
17,39 beton
300
600
575
120
nr WAB.VIII.7353-754-2005/I.1050A
z dnia 21.12.2005 r.
60
OBIEKT
1.770
WG1
45
104
45
250
WG1
EI30
60
250
35
WG1
WG1
B
BUDYNEK MIESZKALNY
WIELORODZINNY
Z PODZIEMNYM GARAŻEM
I USŁUGAMI
35
WG1
250
1675
WG1
126
35
WG1
250
250
220
WG1
60
220
250
250
45
200
5
90
55
250
220
250
OW
575
575
625
250
250
220
WG1
50
10
WG1
5
250
220
625
250
250
55
10
WG1
250
250
220
WG1
50
250
220
WG1
1.585
5
50
250
220
250
10
60
250
220
250
10
90
121
200
220
10
35
35
5
250
250
220
45
250
220
104
WG1
250
WG1
45
250
220
250
250
220
60
250
220
1675
250
B
60
30
5.135
1 770
35
-3,40 = 2,40 mnpm
575
575
575
575
120
-3,40 = 2,40 mnpm
60
OW
575
600
-3,40 = 2,40 mnpm
60
30
W - 2 - centrala wentylacyjna wywiewna typ RS 100 - 50 L, V = 13 620 m3/h
STROP OBNI˚ONY DO POZIOMU US¸UG
W-1
0/G-12 garaz
15,35 beton
W - 1 - centrala wentylacyjna wywiewna typ KT 70-40-6, V = 5270 m3/h
E
W-2
5415
0/G-07 garaz
14,97 beton
5415
5365
0/G-06 garaz
15,07 beton
0/G-05 garaz
14,19 beton
5365
0/G-04 garaz
14,97 beton
0/G-03 garaz
18,04 beton
0/G-02 garaz
17,40 beton
0/G-01 garaz
15,35 beton
5365
5365
KP
5365
5115
5115
3655
240
KP
F
EI
0/3 wentylatornia
7,32 gres
E
5
25
35
WG1
156
1675
WG1
250
35
WG1
60
250
220
250
250
220
45
201
25 5
30
90
250
201
625
250
100
50
250
220
250
10
50
220
5675
50
250
WG1
5
250
220
WG1
45
250
220
200
H
250
10
HP 52
EI
60
250
220
250
10
110
250
220
107
250
220
150
150
WG1
10
WG1
108
38
38
2785
60
5
5745
5745
5745
5745
115
250
220
250
0
5
30
0
60
60
120
1675
50
35
F
3.5895
60
38
2775
600
114
5745
100
1675
480
OW
90
60
30
250
G
38
5
60
60
30
25
A
OW
30
60
30
60
30
60
30
60
60
30
30
60
201
38
0 5
OW
60
1415
OW
OW
60
OW
60
2525
60
220
450
2785
60
OW
OW
30
250
220
OW
600
4185
60
OW
D
5.211
60
30
5745
OW
38
2525
60
155
210
-3,42 = 2,38 mnpm
38
38
38
38
126
1675
38
SEG
60
30
60
30
OW
100
OW
60
30
75
60
30
60
30
38
5
0
0 5
38
65
G
OW
OW
197
EI30
OW
EI30
126
60
2725
20
126
1065
20
60
25
125
106
150
25
335
203
2925
25
60
72
25
116
60
2925
20
1165
20
116
60
5
25
1165
5
25
2925
25
25
116
60
2925
20
116
20
116
25
60
1165
275
25
109
60
2925
25
1065
25
106
60
0/G-32 garaz
14,77 beton
0/G-31 garaz
14,77 beton
0/G-30 garaz
14,77 beton
2925
20
126
20
104
60
25
1585
5
2925
25
25
0/G-33 garaz
14,77 beton
116
2925
20
1165
60
20
116
25
60
1165
485
25
72
0/G-36 garaz
15,78 beton
0/G-35 garaz
13,75 beton
0/G-34 garaz
16,86 beton
60
2725
25
353
25
106
19
3125
20
41
1065
20
126
60
RYSUNEK:
38
126
38
3125
125
630
1
60
2'
OW
25
335
25
25
335
25
390
2
60
3 3'
1 808
2925
25
2925
OW
25
275
5
30
5
2925
OW
25
5
25
300
8
7
1.590
5.210
630
20
30
910
2925
OW
485
2725
25
25
3125
38
12'
60
12
390
13 13'
1.808
38
mgr inż. arch. Wojciech Bajdor
1 153
630
RZUT GARAŻU
PODZIEMNEGO
PROJEKTOWAŁ:
OW
20
A
255
30
60
60
OW
25
30
60
30
OW
2925
630
300
6
30
60
38
60
OW
20
30
60
30
30
OW
2925
25
1.590
630
45
60
38
OW
2925
20
60
30
30
60
OW
5
25
630
630
60
38
OW
2925
20
30
38
60
30
60
30
OW
25
793
255
30
60
OW
2725
20
upr. 278/Sz/87
60
3555
2745
14
PODPIS:
SPRAWDZIŁ:
mgr inż. arch. Robert Rachuta
upr. 3/SZ/99
PODPIS:
OPRACOWAŁ:
mgr inż. arch. Arkadiusz Czarkowski
PODPIS:
BRANŻA:
ARCHITEKTURA
INWESTOR:
SIEMASZKO Sp. z o.o. , ul. Ks Warcisława I nr 27D/1, 71-667 Szczecin,
tel. 422 16 51
B
OW
38
60
30
60
30
38
38
38
255
685
685
38
90
A
Swinoujscie, ul. Markiewicza
dzialka nr ew. gr. 534/20 i 534/9
obr 0009
505
0/G-29 garaz
14,01 beton
505
530
0/G-28 garaz
14,77 beton
530
0/G-27 garaz
14,77 beton
540
14 x 17,5
28,5
25
0/G-26 garaz
14,77 beton
530
0/G-25 garaz
14,77 beton
0/G-24 garaz
16,86 beton
0/G-23 garaz
13,75 beton
540
14 x 17,5
28,5
3125
38
38
530
505
0/G-22 garaz
15,78 beton
505
540
ADRES:
JEDNOSTKA PROJEKTOWA:
ASUMPT Arkadiusz Czarkowski, ul. Bagienna 12/1, 70-772 Szczecin,
tel. 502 542 586
POZIOM:
-3,40 m
2,40
mnpm
DATA:
SIERPIEN 2006
SKALA:
1:100
NR RYS.
2