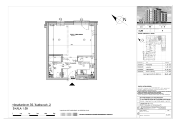
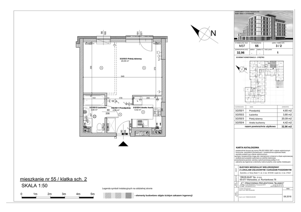
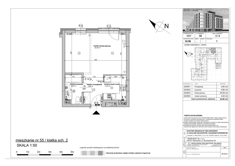
SKALA 1:50 mieszkanie nr 55 / klatka sch. 2

Transkrypt

SKALA 1:50 mieszkanie nr 55 / klatka sch. 2
N
191
221
98
180
APARTAMENTY STARA PRZĄDZALNIA
NOWY ŚWIAT 11 ŻYRARDÓW
nr lokalu proj. bud.
nr mieszkania
M37
2
pietro / klatka sch.
55
powierzchnia (m2)
2xRJ45
32,96
balkon
3/2
balkon 2
--
ilość pokoi
1
--
3
SCHEMAT KONDYGNACJI - 3 PIĘTRO
20,09
TV
3/2/55/3 Pokój dzienny
m2
372
356
K2
N
549
K1
179
L
3/2/55/4 Aneks kuch.
nr pomieszczenia
4,42 m2
PG
PR
2
4,65
m2
O
80
206
3/2/55/1 Przedpokój
2
P
267
3,80 m2
200
L
218
3/2/55/2 Łazienka
6
9
13
2
13
2
151
P
Przedpokój
4,65 m2
3/2/55/2
Łazienka
3,80 m2
3/2/55/3
Pokój dzienny
3/2/55/4
Aneks kuchenny
20,09 m2
4,42 m2
razem powierzchnia użytkowa
9
90
206
K
powierzchnia
3/2/55/1
R
WM
Ł
nazwa
3 SZT.
WM
Ł
32,96 m2
WM
0
KARTA KATALOGOWA
OBIEKT
- powierzchnie liczone wg normy PN-ISO 9836;1997 w stanie wykończonym
- suma pow. wszystkich pomieszczeń = powierzchnia użytkowa lokalu
- wymiary podane są w stanie wykończonym,
wymiary i powierzchnie mogą ulec nieznacznym zmianom w fazie wykonawczej
- podłoża pod posadzki wykonane ze szlichty betonowej
przewidywana grubośc warstwy wykończeniowej podłóg 2 cm
- zabrania się ingerencji w elementy nośne budynku oraz szahty instalacyjne
BUDYNEK MIESZKALNY WIELORODZINNY
Z LOKALAMI USŁUGOWYMI I GARAŻAMI PODZIEMNYMI
JEDN.
INWESTOR
PROJEKT.
Żyrardów, ul. Nowy Świat 11, dz. nr ew. 3519/36 i część dz. nr ew. 3742/1
mieszkanie nr 55 / klatka sch. 2
SKALA 1:50
GSPublisherVersion 0.0.100.100
1m
2m
3m
4m
5m
- elementy budowlane objęte ścisłym zakazem ingerencji
PRACOWNIA PROJEKTOWA "BLANKO"
05-800 PRUSZKÓW ul. Powstańców 23/19
www.ppblanko.com.pl
GŁÓWNY PROJEKTANT
mgr inż. arch. JERZY BLANCARD
zespół
projektowy
0
Legenda symboli instalacyjnych na oddzielnej stronie
"ZBOR-BUD" Sp. z o.o.
05-077 Warszawa, ul. Rumiankowa 78
mgr inż. arch. TOMASZ BLANCARD
tel./fax +22/ 728 03 46
[email protected]
data
08.2016