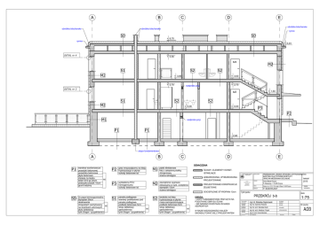
C B E E A A B C D D

Transkrypt

C B E E A A B C D D
A
B
obróbka blacharska
C
D
E
obróbka blacharska
obróbka blacharska
SD
rynna
SD
+ 6,70
rynna
+ 6,23
DETAL nr 4
+ 5,50
M4
S1
S2
M2
S2
+ 3,00
+ 2,70
M2
+ 3,00
+ 2,70
nadproże proj.
DETAL nr 3
+ 1,50
M2
S1
M2
S2
S2
+ 0,00
+ 0,00
P3
P2
M1
nadproże proj.
P1
P1
- 2,80
stopa fundamentowa
A
B
C
D
E
OZNACZENIA
P1
SD
warstwa wyrównawcza
posadzki betonowej
posadzka betonowa
płyta betonowe
2xpapa na lepiku
beton B10 gr.20cm
podsypka piasek 15cm
grunt rodzimy
P2
gres mrozoodporny na kleju
hydroizolacja w płynie
schody betonowe ist.
M1
płytki klinkierowe
klej z zatopioną siatką
zbrojeniową
ściana istniejąca
ist.
2x papa termozgrzewalna
styropian 20cm
deskowanie
stropodach wentylowany
ist.
na ściankach ażurowych
płyta żelbetowa
tynk (fragm. uzupełnienie)
P3
S1
wykładzina PCV
homogeniczna
schody betonowe ist.
panele podłogowe
warstwy podkładowe pod
panele podłogowe
podłoże betonowe 5cm
strop żelbetowy
ist.
gęstożebrowy
tynk (fragm. uzupełnienie)
M2
S2
zewnętrzna wyprawa
elewacyjna w syst. ocieplenia
styropian 12cm
ściana istniejąca
terakota na kleju
hydroizolacja w płynie
masa samopoziomująca
podłoże betonowe 5cm
strop żelbetowy
ist.
gęstożebrowy
tynk (fragm. uzupełnienie)
ŚCIANY, ELEMENTY KONST.
ISTNIEJĄCE
ZAMUROWANIA, WYMUROWANIA
PROJEKTOWANE
PROJEKTOWANE KONSTRUKCJE
ŻELBETOWE
DOCIEPLENIE STYROPIAN 12cm
UWAGA:
- ŁAWY FUNDAMENTOWE PRZYJĘTO NA
PODSTAWIE OBRYSU ŚCIAN
- NIE BADANO ROZSTAWU ŚCIANEK
AŻUROWYCH
W RAZIE NIEZGODNOŚCI NALEŻY
SKONSULTOWAĆ SIĘ Z PROJEKTANTEM
PROJEKTOWANIE I NADZÓR
BUDOWLANY
mgr inż.
Bolesław Gąsiorowski
74-200 Pyrzyce
ul.Dworcowa 23
tel.091/5701613
Nazwa projektu:
PRZEBUDOWA, ZMIANA SPOSOBU UŻYTKOWANIAData:
BUDYNKU DLA POTRZEB ŚWIETLICY
ORAZ NA MIESZKANIA SOCJALNE
kwiecień
Inwestor:
Gmina Miasto Pyrzyce
Pl. Ratuszowy 1 74-200 Pyrzyce
Adres:
Obojno, dz. nr 131/3, 131/4 obręb 3 Obojno 74-200 Pyrzyce
Stadium:
P. BUDOWLANY
2015
branża:
budowlana
Tytuł rysunku:
skala
PRZEKRÓJ b-b
Autor projektu
konstrukcja:
konstrukcja
sprawdził:
architektura
projektował:
architektura
sprawdził:
opracował:
mgr inż. Bolesław Gąsiorowski
mgr inż. Kazimierz Piskorek
mgr inż. arch. Stanisław Duda
mgr inż. arch. Arkadiusz Fiącek
1:75
161/Sz/84
309/Sz/87
65/Sz/83
Nr rysunku:
A/20
51/Sz/2000
4/POIA/OKK/2009
mgr inż. arch. Dorota Marańska
Imię i Nazwisko:
Nr upr.proj.
Podpis: