Rego 5200 Protokół rozruchu Protokół rozruchu Rozruch Z1 Ustawić

Transkrypt

Rego 5200 Protokół rozruchu Protokół rozruchu Rozruch Z1 Ustawić
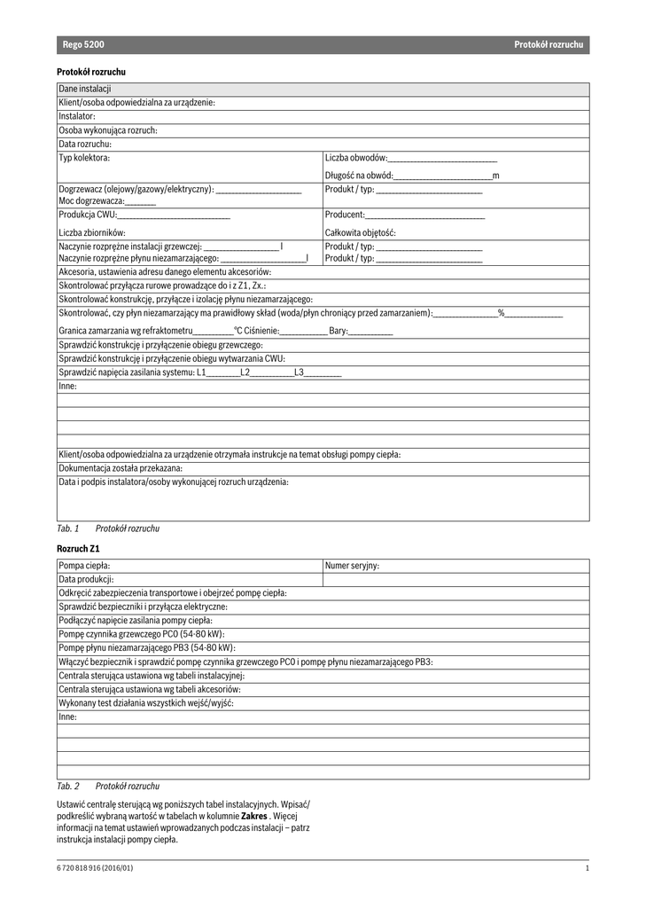
Rego 5200
Protokół rozruchu
Protokół rozruchu
Dane instalacji
Klient/osoba odpowiedzialna za urządzenie:
Instalator:
Osoba wykonująca rozruch:
Data rozruchu:
Typ kolektora:
Dogrzewacz (olejowy/gazowy/elektryczny): _________________________
Moc dogrzewacza:_________
Produkcja CWU:_________________________________
Liczba obwodów:________________________________
Długość na obwód:_____________________________m
Produkt / typ: _______________________________
Producent:___________________________________
Liczba zbiorników:
Całkowita objętość:
Naczynie rozprężne instalacji grzewczej: ______________________ l
Produkt / typ: _______________________________
Naczynie rozprężne płynu niezamarzającego: _________________________l
Produkt / typ: _______________________________
Akcesoria, ustawienia adresu danego elementu akcesoriów:
Skontrolować przyłącza rurowe prowadzące do i z Z1, Zx.:
Skontrolować konstrukcję, przyłącze i izolację płynu niezamarzającego:
Skontrolować, czy płyn niezamarzający ma prawidłowy skład (woda/płyn chroniący przed zamarzaniem):___________________%_________________
Granica zamarzania wg refraktometru____________°C Ciśnienie:______________ Bary:_____________
Sprawdzić konstrukcję i przyłączenie obiegu grzewczego:
Sprawdzić konstrukcję i przyłączenie obiegu wytwarzania CWU:
Sprawdzić napięcia zasilania systemu: L1__________L2_____________L3___________
Inne:
Klient/osoba odpowiedzialna za urządzenie otrzymała instrukcje na temat obsługi pompy ciepła:
Dokumentacja została przekazana:
Data i podpis instalatora/osoby wykonującej rozruch urządzenia:
Tab. 1
Protokół rozruchu
Rozruch Z1
Pompa ciepła:
Numer seryjny:
Data produkcji:
Odkręcić zabezpieczenia transportowe i obejrzeć pompę ciepła:
Sprawdzić bezpieczniki i przyłącza elektryczne:
Podłączyć napięcie zasilania pompy ciepła:
Pompę czynnika grzewczego PC0 (54-80 kW):
Pompę płynu niezamarzającego PB3 (54-80 kW):
Włączyć bezpiecznik i sprawdzić pompę czynnika grzewczego PC0 i pompę płynu niezamarzającego PB3:
Centrala sterująca ustawiona wg tabeli instalacyjnej:
Centrala sterująca ustawiona wg tabeli akcesoriów:
Wykonany test działania wszystkich wejść/wyjść:
Inne:
Tab. 2
Protokół rozruchu
Ustawić centralę sterującą wg poniższych tabel instalacyjnych. Wpisać/
podkreślić wybraną wartość w tabelach w kolumnie Zakres . Więcej
informacji na temat ustawień wprowadzanych podczas instalacji – patrz
instrukcja instalacji pompy ciepła.
6 720 818 916 (2016/01)
1
Rego 5200
Protokół rozruchu
Najpierw należy zawsze ustawić Z1. Tutaj wprowadzana
jest większość ustawień, ponieważ np. dogrzewacz i
wyposażenie dodatkowe są podłączone do tej pompy
ciepła. Ponadto ustawienia Z1 mają wpływ na pozostałe
pompy ciepła.
Ustawienie
Ust. fabr.
Zakres
PC
1
Z1
1- 5
Z1- Z5
Z1
Zx
1 Adresowanie
Pompy ciepla
Liczba:
Ta PC:
Tab. 3
Adresowanie
Ustawienie
Ust. fabr.
Zakres
PC
2 Temperatura pokojowa
1 Tryb letni/zimowy
1 Tryb letni
Start:
TL1 >
przez
Z1
17 °C
180 min.
1 Tryb zimowy
TL1 <
przez
15 °C
300 min.
Z1
1 Tryb zimowy
Start bezposredni:
TL1 <
7 °C
1 Ustawienie podst.
PTZ
Min.
Maks.
-35 °C
20 °C
60 °C
4 Przesuniecie równol.
1 Przesuniecie równol.
0K
5 Histereza
1 Histereza Spręż.1
Min.
Maks.
Czynnik czasu
2K
8K
30
2 Histereza Spręż.2
Min.
Maks.
Czynnik czasu
2K
8K
30
3 Wart. rzecz. spre
Wart. rzecz. sprez.2
K
K
2 Ustawienie podst.
Z1
Z1
3 Krzywa grzewcza
Z1
Z1
Zx
Zx
Zx
6 Tlumienie TL1
1 Tlumienie TL1
2h
Z1
7 Odchylenie T0
1 Odchylenie T0
10 K
Z1
Tab. 4
Temperatura pokojowa
6 720 818 916 (2016/01)
2
Rego 5200
Protokół rozruchu
Ustawienie
Ust. fabr.
Zakres
PC
Brak dogrzewania
Brak dogrzewania
3-stopniowy dogrzewacz
elektryczny
Cieplo z cieplowni
Dogrzewanie modul.
Dogrz. z mieszaczem
Z1
3 Dogrzewanie
1 Typ dogrzewania
Sprez. + dogrzewanie
Tylko dogrzewacz
Sprez. + dogrzewanie
Tylko sprezarka
2 3-stopniowy dogrzewacz
elektryczny
3K
180 °min.
Wskazanie, można zmienić
2 Start EE2
Opóznienie
Wart. rzecz.:
60 °min.
Wskazanie, można zmienić
3 Start EE1+EE2
Opóznienie
Wart. rzecz.:
60 °min.
Wskazanie, można zmienić
4 Zatrzym. EE1
Opóznienie
Wart. rzecz.:
10 °min.
Wskazanie, można zmienić
5 Zatrzym. EE2
Opóznienie
Wart. rzecz.:
5 °min.
Wskazanie, można zmienić
6 Zatrzym. EE1+EE2
Opóznienie
Wart. rzecz.:
5 °min.
Wskazanie, można zmienić
7 Ustawienia
Maks. licz. stopni w:
Ogrzewanie:
CWU:
2
2
8Moc
3 Cieplo z cieplowni
Tab. 5
Z1
1 Start EE1
Histereza
Opóznienie
Wart. rzecz.:
0, 1, 2, 3
0, 1, 2, 3
Stopień 1
Stopień 2
Stopień 3
Start ogrzewanie
Histereza
Opóznienie
Wart. rzecz.:
3K
180 °min.
Wskazanie, można zmienić
Z1
Zatrzym. ogrzewanie
Opóznienie
Wart. rzecz.:
10 °min.
Wskazanie, można zmienić
PID VM0
P:
I:
D:
T1, Wz, Wy
1
100
0
Wskazanie
Wewnętrzny dogrzewacz elektryczny
6 720 818 916 (2016/01)
3
Rego 5200
Protokół rozruchu
Ustawienie
4 Dogrz. z mieszaczem
Ust. fabr.
Zakres
PC
Z1
Start ogrzewanie
Histereza
Opóznienie
Wart. rzecz.:
3K
180 °min.
Wskazanie, można zmienić
Zatrzym. ogrzewanie
Opóznienie
Wart. rzecz.:
10 °min.
Wskazanie, można zmienić
PID VM0
P:
I:
D:
T1, Wz, Wy
1
100
0
Wskazanie
5 Opóznienie alarmu
1 Opóznienie alarmu
30 min
6 ECO-drive
1 ECO-drive
Start
Zatrzymanie po
Nie
22:00
6h
Nie, Tak
00:00 - 23:59
Z1
Ust. fabr.
Zakres
PC
Bez CWU
Bez CWU
Stacja świeżej wody
Lokalny czujnik
Komunikowana
Poprzednia PC
Zx
Tab. 5
Z1
Wewnętrzny dogrzewacz elektryczny
Ustawienie
4 CWU
1 Typ CWU
2 Dezynfekcja term.
(Typ CWU = Lokalny czujnik)
3 Ustawienia
(Typ CWU = Lokalny czujnik)
Tab. 6
1 Typ CWU
Nie Z1
2 Temperatura
Wart. rzecz.
Start: 53 °C
Zatrzym.: 57 °C
Maks. temperatura
Zx
3 Sprężarki
Sprężarki do CWU
Automatycznie
Zx
4 Stacja świeżej wody
Wart. zad.
1 Dezynfekcja term.
Dzien tygodnia:
Start:
Liczba stopni:
Nie
02:00
1
Zx
Nie, Tak
Brak, Dzien tygodnia, Wszystkie
00:00 - 23:59
1, 2, 3
1 Ustawienia
Ustawienie alarmu
Gran. alarmu:
Opóznienie
45 °C
30 min.
2 Ustawienia
Zawór:
Tryb awaryjny:
Zewnetrzny
Nie
Zewnetrzny, Wewnetrzny
Nie, Tak
3 Ustawienia
Monitoruj T0:
Wart. zad. - T0 >
Opóznienie
Nie
10 K
10 min
Nie, Tak
Ustawienia
Zabezp. termiczne:
T0 - Wart. zad. >
T0-zwiększenie >
Nie
10 K
15 K
Nie, Tak
Z1
Zx
Zx
Zx
Zx
CWU
6 720 818 916 (2016/01)
4
Rego 5200
Protokół rozruchu
Ustawienie
4 FVS
Ust. fabr.
1 Temp. zasil. Odczyt.
TW2 Ciepło zasilanie
TW3 Ciepło powrót
TW4 CWU zasilanie
TW5 Dopływ wody
TW6 Cyrk. CWU
TW7 Zimna woda
GW0 Zasilanie
Zakres
PC
Z1
2 Ustawienia
TW4 zasilanie Odczyt
Wart. zad. Ustaw temp. CWU
PC4 prędkość Odczyt
GW0 Zasilanie Odczyt
PID
Sprzężenie wyprzedzające
Wskaźnik zapamiętywania
TW3 temp. powrotuOdczyt
Gran. uruchom.
Maks. gran.
Granica niskiej temp.
Granica wysokiej temp.
Poz. VW3 Odczyt
3 Godzina
Cyrkulacja CWU
Dzien tygodnia Ustaw czas wł./
wył.
Urlop Ustaw czas wł./wył.
Godziny pracy Odczyt
PC4 ogrzewanie
Cyrkul. PW2
4 Energia, zasilanie Odczyt
5 Granice alarmu
TW2 temp. ogrzewania
Maks. temp.
Min. temp.
Opóźnienie alarmu
TW3 temp. powrotu
Maks. temp.
Opóźnienie alarmu
TW4 VV temp
Maks. temp.
Min. temp.
Opóźnienie alarmu
TW6 cyrkulacja CWU
Maks. temp.
Min. temp.
Opóźnienie alarmu
6 Ręczny/Autom.
PW2 Pompa obieg. CWU
Od
Do
Auto
PC4 Pompa ciepła
Wartość ręczna
Od
Do
Auto
VW3 Zawór powr. ogrz.
Od
Do
Auto
Tab. 7
CWU
6 720 818 916 (2016/01)
5
Rego 5200
Protokół rozruchu
Ustawienie
Ust. fabr.
5 Obl. energii
Zakres
PC
Z1
1 Ustawienia
Wielkość bezp.
Licznik elektryczny
Obliczenie mocy czynnik grzewczy
Obliczenie mocy czynnik dolnego źródła
Obliczenie mocy nominalna wydajność
Obliczenie nominalnego przepływu solanki
Obliczenie nominalnej mocy grzewczej
Obliczenie nominalnej mocy pompy solanki
2 Odczyt
Tab. 7
CWU
Ustawienie
Ust. fabr.
Zakres
0
x
0-9
PC
6 Wyposażenie dodatk.
1 Wyposażenie
dodatk.
Liczba:
Ustaw jednostke
Z1
Z1
1 Wyposażenie dodatk. x
Wybierz funkcje:
Czujnik pokojowy
Aktyw. czujnik pok.
Stala wart. zad. CO
Wlasna krzywa grzew.
E11 krzywa grzewcza
St.temp.zad.chlodz.
Basen
2 Czujnik pokojowy
Wart. rzecz.:
Wskazanie
2 Aktyw. czujnik pok.
Wart. rzecz.:
Wart. zad.:
Srednia:
Wskazanie
22 °C
Wskazanie
2 Stala wart. zad. CO
Wart. rzecz.:
Wart. zad.:
Ustawienia>
Z1
Z1
Z1
1 Stala wart. zad. CO
P:
I:
Y:
2 Stala wart. zad. CO
Odchylenie:
Pompa:
2 Wlasna krzywa grzew.
Wart. rzecz.:
Wart. zad.:
Ustawienia>
Tab. 8
Wskazanie
0 °C
%
0
%
0K
Od
Zima, Lato, Od, Do
Z1
Wskazanie
0 °C
1 Wlasna krzywa grzew.
P:
I:
Y:
2 Wlasna krzywa grzew.
Odchylenie:
Pompa:
3 Wlasna krzywa grzew.
Współczynnik
3 Wlasna krzywa grzew.
Przesuniecie
%
0
%
0K
Od
Zima, Lato, Od, Do
Wyposażenie dodatkowe
6 720 818 916 (2016/01)
6
Rego 5200
Protokół rozruchu
Ustawienie
Ust. fabr.
2 T0 krzywa grzewcza
Wart. rzecz.:
Przesuniecie:
Ustawienia>
2 St.temp.zad.chlodz.
Wart. rzecz.:
Wart. zad.:
Ustawienia>
2 Krzywa chlodzenia
Wart. rzecz.:
Wart. zad.:
Ustawienia>
Zakres
Z1
Wskazanie
0K
1 T0 krzywa grzewcza
P:
I:
Y:
2 T0 krzywa grzewcza
Odchylenie:
Pompa:
%
0
%
0K
Od
Zima, Lato, Od, Do
Z1
Wskazanie
0 °C
1 St.temp.zad.chlodz.
P:
I:
Y:
2 St.temp.zad.chlodz.
Odchylenie:
Pompa:
%
0
%
0K
Od
Zima, Lato, Od, Do
Z1
Wskazanie
0 °C
1 Krzywa chlodzenia
P:
I:
Y:
2 Krzywa chlodzenia
Odchylenie:
Pompa:
%
0
%
0K
Od
Zima, Lato, Od, Do
Z1
2 Basen
Wart. rzecz.:
Wart. zad.:
Ustawienia>
Wskazanie
0 °C
1 Basen
P:
I:
Y:
2 Basen
Odchylenie:
Pompa:
2 Ogran. mocy chłodz.
Wart. rzecz.:
Wart. zad.:
Ustawienia>
%
0
%
0K
Od
Zima, Lato, Od, Do
Z1
Wskazanie
0 °C
1 Ogran. mocy chłodz.
P:
I:
Y:
2 Ogran. mocy chłodz.
Min limit:
Di1 Funkcja:
%
0
%
0K
3 Krzywa wart. zad.
Z1
3 Wplyw czujnika pok.
Tab. 8
PC
0
0-10
Z1
Wyposażenie dodatkowe
Regulator PI
Stala wart. zad. CO
Wlasna krzywa grzew.
T0 krzywa grzewcza
St.temp.zad.chlodz.
Basen
Ogran. mocy chłodz.
Zakres P
I
Odchylenie
Tab. 9
6 720 818 916 (2016/01)
7
Rego 5200
Protokół rozruchu
Ustawienie
Ust. fabr.
Zakres
SSM
Automatycznie
Brak, Sygnal pracy, SSM
Staly, Automatycznie
PC
7 Pompa obiegowa
1 Ustawienie PC1
2UstawieniePC0
3 UstawieniePB3
4UstawieniePM1/PW2
1 Ustawienie PC1
Alarm:
Tryb pracy:
Z1
1 Ustawienie PC0
Pręd. cyrkul. wstępn.:
Pręd. dostosowania :
Czas dostosowania:
Zx
2UstawieniePC0
Regulowana
Wartość zadana Delta:
Zx
8K
1 Ustawienie PB3
Pręd. cyrkul. wstępn.:
Czas dostosowania
Zx
2 UstawieniePB3
Regulowana
Wartość zadana Delta:
Zx
3K
1 Ustawienie PM1/PW2
Pompowanie:
Brak
Brak, Dogrzewanie,Cyrkulacja CWU
1 Cyrkulacja CWU
Aktywowanie/ dezaktywowanie sterowania
czasowego
Zx
2 Cyrkulacja CWU
Dzien tygodnia
3 Cyrkulacja CWU
Urlop
Ust. fabr.
Zakres
PC
Alarm A/B
Alarm A/B, Alarm A
Zx
Ust. fabr.
Zakres
PC
1 Wejscia cyfrowe
Di1
Di2
Di3
Di4
Normalne
Normalne
Normalne
Normalne
Normalne, Z inwerterem
Normalne, Z inwerterem
Normalne, Z inwerterem
Normalne, Z inwerterem
2 Wyjscia cyfrowe
Do1
Do2
Do3
Do4
Do5
Do6
Do7
Normalne
Normalne
Normalne
Normalne
Normalne
Normalne
Normalne
Normalne, Z inwerterem
Normalne, Z inwerterem
Normalne, Z inwerterem
Normalne, Z inwerterem
Normalne, Z inwerterem
Normalne, Z inwerterem
Normalne, Z inwerterem
Ust. fabr.
Zakres
Tab. 10
Pompy cyrkulacyjne
Ustawienie
8 Alarm zbiorczy
1 Alarm zbiorczy
Tab. 11
Alarm zbiorczy
Ustawienie
9Inwertery
Tab. 12
Zx
Zx
Inwersje
Ustawienie
PC
10 Czujniki
1 Kalibracja czujników
T0
TL1
TW1
Tab. 13
0,000 K
0,000 K
0,000 K
Z1
Z1
Zx VV
Kalibracja czujników
6 720 818 916 (2016/01)
8
Rego 5200
Protokół rozruchu
Ustawienie
Ust. fabr.
Zakres
PC
– 5 °C
30 °C
– 8 °C
15 °C
– 8 °C – +30 °C
– 8 °C – +30 °C
– 8 °C – +30 °C
– 8 °C – +30 °C
Zx
Ust. fabr.
Zakres
PC
Bez wplywu
Bez wplywu
Zablokuj wszystko (EVU1)
Zablokuj dogrzewacz
Zablokuj sprezarke (EVU2)
Zablokuj CWU
Start sprez.+dogrz.
Uruchom sprezarke
Uruchom pompę solanki
Rozpoczęcie szybkiego skraplania
(Sprężarka i dogrzewacz)1)
Rozpoczęcie szybkiego skraplania bez
dogrzewacza (Tylko sprężarka)1)
Przekaźnik prądowy 3 stop. (W razie
sygnału z wyłącznika przeciążeniowego)
Uruchom sprezarke 1
11 Obieg dol. zród.
1 Obieg dol. zród.
Tab. 14
TB0:Niska
TB0:Wysoka
TB1:Niska
TB1:Wysoka
Obieg dolnego źródła
Ustawienie
12 Regulacja zewn.
1 Regulacja zewn. I1
Wybierz funkcje:
Zx
1 Regulacja zewn. I1
Przesunięcie obiegu głównego
(obieg bez zaworu
mieszającego)
Przesunięcie obiegu głównego
(obieg z zaworem mieszającym)
Prędkość pompy solanki
2 Regulacja zewn. I3
Wybierz funkcje:
Zx
Zx
Bez wplywu
Bez wplywu
Zablokuj wszystko (EVU1)
Zablokuj dogrzewacz
Zablokuj sprezarke (EVU2)
Zablokuj CWU
Start sprez.+dogrz.
Uruchom sprezarke
Uruchom pompę solanki
Rozpoczęcie szybkiego skraplania
(Sprężarka i dogrzewacz)2)
Rozpoczęcie szybkiego skraplania bez
dogrzewacza (Tylko sprężarka)1)
Przekaźnik prądowy 3 stop. (W razie
sygnału z wyłącznika przeciążeniowego)
Uruchom sprezarke 2
2 Regulacja zewn. I3
Przesunięcie obiegu głównego
(obieg bez zaworu
mieszającego)
Przesunięcie obiegu głównego
(obieg z zaworem mieszającym)
Prędkość pompy solanki
Zx
Sterowanie zewnętrzne
Tylko ogrzewanie
Zx
Tab. 15
Regulacja zewnętrzna
6 720 818 916 (2016/01)
9
Rego 5200
Protokół rozruchu
Ustawienie
Ust. fabr.
Zakres
PC
13Hybryda
Regulacja hybrydowa
Ogrzew.
CWU
Regulacja hybrydowa
Cena energii
Elektryczność
Dogrzewanie
Tab. 15
Zx
Regulacja zewnętrzna
1) Funkcje ochronne są nadrzędne
2) Funkcje ochronne są nadrzędne
Rozruch Zx
Pompa ciepła:
Numer seryjny:
Data produkcji:
Odkręcić zabezpieczenia transportowe i obejrzeć pompę ciepła:
Sprawdzić bezpieczniki i przyłącza elektryczne:
Podłączyć napięcie zasilania pompy ciepła:
Pompę czynnika grzewczego PC0 (54-80 kW):
Pompę płynu niezamarzającego PB3 (54-80 kW):
Włączyć bezpiecznik i sprawdzić pompę czynnika grzewczego PC0 i pompę płynu niezamarzającego PB3:
Centrala sterująca ustawiona wg tabeli instalacyjnej:
Centrala sterująca ustawiona wg tabeli akcesoriów:
Wykonany test działania wszystkich wejść/wyjść:
Inne:
Tab. 16
Protokół rozruchu
Ustawić centralę sterującą wg poniższych tabel instalacyjnych. Wpisać/
podkreślić wybraną wartość w tabelach w kolumnie Zakres . Więcej
informacji na temat ustawień wprowadzanych podczas instalacji – patrz
instrukcja instalacji pompy ciepła.
Najpierw należy zawsze ustawić Z1. Tutaj wprowadzana
jest większość ustawień, ponieważ np. dogrzewacz i
wyposażenie dodatkowe są podłączone do tej pompy
ciepła. Ponadto ustawienia Z1 mają wpływ na pozostałe
pompy ciepła.
Ustawienie
Ust. fabr.
Zakres
PC
1
Z1
1- 9
Z1- Z9
Z1
Zx
1 Adresowanie
Pompy ciepla
Liczba:
Ta PC:
Tab. 17
Adresowanie
Ustawienie
Ust. fabr.
Zakres
PC
2 Temperatura pokojowa
5 Histereza
Tab. 18
1 Histereza Spręż.1
Min.
Maks.
Czynnik czasu
2K
8K
30
Zx
2 Histereza Spręż.2
Min.
Maks.
Czynnik czasu
2K
8K
30
3 Wart. rzecz. spre
Wart. rzecz. sprez.2
K
K
Zx
Zx
Temperatura pokojowa
6 720 818 916 (2016/01)
10
Rego 5200
Protokół rozruchu
Ustawienie
Ust. fabr.
Zakres
PC
Bez CWU
Bez CWU
Stacja świeżej wody
Lokalny czujnik
Komunikowana
Poprzednia PC
Zx
4 CWU
1 Typ CWU
3 Ustawienia
(Typ CWU = Lokalny czujnik)
Tab. 19
1 Typ CWU
Nie Z1
2 Temperatura
Wart. rzecz.
Start: 53 °C
Zatrzym.: 57 °C
Maks. temperatura
Zx
3 Sprężarki
Sprężarki do CWU
Automatycznie
Zx
1 Ustawienia
Ustawienie alarmu
Gran. alarmu:
Opóznienie
45 °C
30 min.
2 Ustawienia
Zawór:
Tryb awaryjny:
Zewnetrzny
Nie
Zewnetrzny, Wewnetrzny
Nie, Tak
3 Ustawienia
Monitoruj T0:
Wart. zad. - T0 >
Opóznienie
Nie
10 K
10 min
Nie, Tak
Ustawienia
Zabezp. termiczne:
T0 - Wart. zad. >
T0-zwiększenie >
Nie
10 K
15 K
Nie, Tak
Ust. fabr.
Zakres
Zx
Zx
Zx
Zx
CWU
Ustawienie
PC
7 Pompa obiegowa
2UstawieniePC0
3 UstawieniePB3
4UstawieniePM1/PW2
Tab. 20
1 Ustawienie PC0
Pręd. cyrkul. wstępn.:
Pręd. dostosowania :
Czas dostosowania:
Zx
2UstawieniePC0
Regulowana
Wartość zadana Delta:
Zx
8K
1 Ustawienie PB3
Pręd. cyrkul. wstępn.:
Czas dostosowania
Zx
2 UstawieniePB3
Regulowana
Wartość zadana Delta:
Zx
3K
1 Ustawienie PM1/PW2
Pompowanie:
Brak
Brak, Dogrzewanie,Cyrkulacja CWU
Zx
Pompy cyrkulacyjne
6 720 818 916 (2016/01)
11
Rego 5200
Protokół rozruchu
Ustawienie
Ust. fabr.
Zakres
PC
Alarm A/B
Alarm A/B, Alarm A
Zx
Ust. fabr.
Zakres
PC
1 Wejscia cyfrowe
Di1
Di2
Di3
Di4
Normalne
Normalne
Normalne
Normalne
Normalne, Z inwerterem
Normalne, Z inwerterem
Normalne, Z inwerterem
Normalne, Z inwerterem
2 Wyjscia cyfrowe
Do1
Do2
Do3
Do4
Do5
Do6
Do7
Normalne
Normalne
Normalne
Normalne
Normalne
Normalne
Normalne
Normalne, Z inwerterem
Normalne, Z inwerterem
Normalne, Z inwerterem
Normalne, Z inwerterem
Normalne, Z inwerterem
Normalne, Z inwerterem
Normalne, Z inwerterem
Ust. fabr.
Zakres
8 Alarm zbiorczy
1 Alarm zbiorczy
Tab. 21
Alarm zbiorczy
Ustawienie
9 Inwertery
Tab. 22
Zx
Zx
Inwersje
Ustawienie
PC
10 Czujniki
1 Kalibracja czujników
T0
TL1
TW1
Tab. 23
0,000 K
0,000 K
0,000 K
Z1
Z1
Zx VV
Kalibracja czujników
Ustawienie
Ust. fabr.
Zakres
PC
– 5 °C
30 °C
– 8 °C
15 °C
– 8 °C – +30 °C
– 8 °C – +30 °C
– 8 °C – +30 °C
– 8 °C – +30 °C
Zx
11 Obieg dol. zród.
1 Obieg dol. zród.
Tab. 24
TB0:Niska
TB0:Wysoka
TB1:Niska
TB1:Wysoka
Obieg dolnego źródła
6 720 818 916 (2016/01)
12
Rego 5200
Protokół rozruchu
Ustawienie
Ust. fabr.
Zakres
Bez wplywu
Bez wplywu
Zablokuj wszystko (EVU1)
Zablokuj dogrzewacz
Zablokuj sprezarke (EVU2)
Zablokuj CWU
Start sprez.+dogrz.
Uruchom sprezarke
Uruchom pompę solanki
Rozpoczęcie szybkiego skraplania
(Sprężarka i dogrzewacz)1)
Rozpoczęcie szybkiego skraplania bez
dogrzewacza (Tylko sprężarka)1)
Przekaźnik prądowy 3 stop. (W razie
sygnału z wyłącznika przeciążeniowego)
Uruchom sprezarke 1
PC
12 Regulacja zewn.
Zx
1 Regulacja zewn. I1
Wybierz funkcje:
Zx
1 Regulacja zewn. I1
Przesunięcie obiegu głównego
(obieg bez zaworu
mieszającego)
Przesunięcie obiegu głównego
(obieg z zaworem mieszającym)
Prędkość pompy solanki
2 Regulacja zewn. I3
Wybierz funkcje:
Zx
Bez wplywu
Bez wplywu
Zablokuj wszystko (EVU1)
Zablokuj dogrzewacz
Zablokuj sprezarke (EVU2)
Zablokuj CWU
Start sprez.+dogrz.
Uruchom sprezarke
Uruchom pompę solanki
Rozpoczęcie szybkiego skraplania
(Sprężarka i dogrzewacz)2)
Rozpoczęcie szybkiego skraplania bez
dogrzewacza (Tylko sprężarka)1)
Przekaźnik prądowy 3 stop. (W razie
sygnału z wyłącznika przeciążeniowego)
Uruchom sprezarke 2
2 Regulacja zewn. I3
Przesunięcie obiegu głównego
(obieg bez zaworu
mieszającego)
Przesunięcie obiegu głównego
(obieg z zaworem mieszającym)
Prędkość pompy solanki
Zx
Sterowanie zewnętrzne
Tylko ogrzewanie
Zx
13Hybryda
Regulacja hybrydowa
Ogrzew.
CWU
Regulacja hybrydowa
Cena energii
Elektryczność
Dogrzewanie
Tab. 25
Zx
Regulacja zewnętrzna
1) Funkcje ochronne są nadrzędne
2) Funkcje ochronne są nadrzędne
6 720 818 916 (2016/01)
13
Rego 5200
6 720 818 916 (2016/01)
Protokół rozruchu
14
Rego 5200
6 720 818 916 (2016/01)
Protokół rozruchu
15
Rego 5200
Protokół rozruchu
Bosch Thermotechnik GmbH
Sophienstraße 30-32
D-35576 Wetzlar/Germany
6 720 818 916 (2016/01)
16