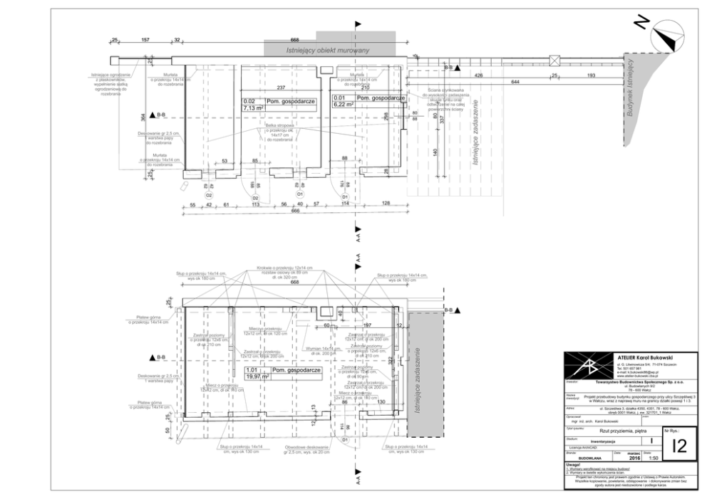
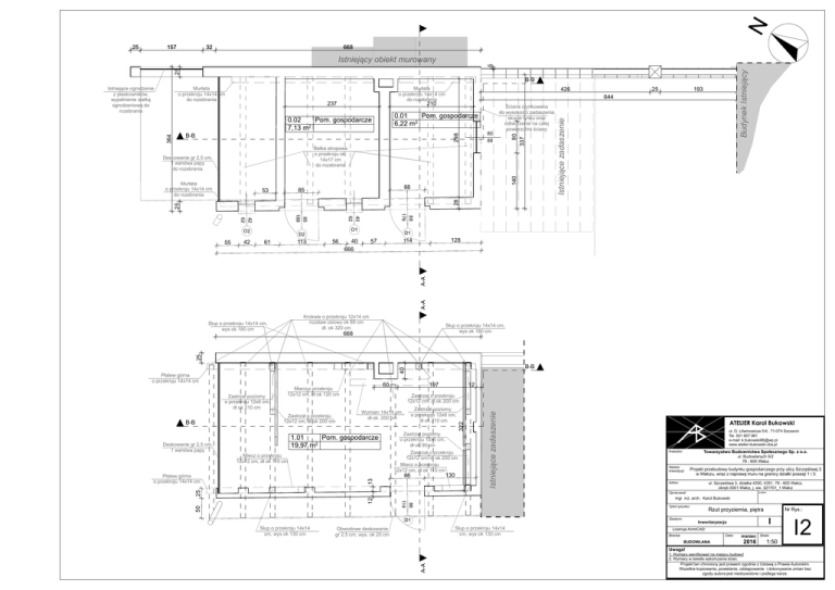
I2 Rzut Przyziemia, Piętra

Transkrypt

I2 Rzut Przyziemia, Piętra
25
157
32
668
Budynek Istniejący
25
5
Istniejący obiekt murowany
B-B
Murłata
o przekroju 14x14 cm
do rozebrania
210
0.01
Pom. gospodarcze
6,22 m2
B-B
364
80
88
298
0.02
Pom. gospodarcze
7,13 m2
Ściana otynkowana
do wysokości zadaszenia
skucie tynku oraz
odtworzenie na całej
powierzchni ściany
Belka stropowa
o przekroju ok.
14x17 cm
do rozebrania
Deskowanie gr 2,5 cm,
1 warstwa papy
do rozebrania
Murłata
o przekroju 14x14 cm
do rozebrania
88
85
193
25
28
53
25
644
Istniejące zadaszenie
237
426
80
337
Murłata
o przekroju 14x14 cm
do rozebrania
140
Istniejące ogrodzenie
z płaskowników,
wypełnienie siatką
ogrodzeniową do
rozebrania
O1
D2
113
61
56
D1
128
114
57
40
666
A-A
A-A
42
88
176
55
40
62
85
188
42
62
O2
Krokwie o przekroju 12x14 cm
rozstaw osiowy ok 89 cm
dł. ok 320 cm
Słup o przekroju 14x14 cm,
wys ok 180 cm
Słup o przekroju 14x14 cm,
wys ok 180 cm
25
668
60
Miecz o przekroju
12x12 cm, dł ok 120 cm
Miecz o przekroju
12x12 cm, dł ok 110 cm
Zastrzał poziomy
o przekroju 12x6 cm,
dł ok 90 cm
Zastrzał o przekroju
12x12 cm, dł ok 200 cm
Miecz o przekroju
12x12 cm, dł ok 110 cm
130
86
25
13
Płatew górna
o przekroju 14x14 cm
Zastrzał poziomy
o przekroju 12x6 cm,
dł ok 210 cm
Wymian 14x14 cm,
dł ok. 200 cm
1.01
Pom. gospodarcze
19,97 m2
Deskowanie gr 2,5 cm,
1 warstwa papy
12
Istniejące zadaszenie
Zastrzał o przekroju
12x12 cm, dł ok 200 cm
197
Zastrzał o przekroju
12x12 cm, dł ok 200 cm
322
Zastrzał poziomy
o przekroju 12x6 cm,
dł ok 210 cm
B-B
B-B
40
Płatew górna
o przekroju 14x14 cm
ATELIER Karol Bukowski
ul. G. Litwinowicza 5/4; 71-074 Szczecin
Tel. 501 657 981
e-mail: [email protected]
www.atelier-bukowski.cba.pl
Inwestor:
Towarzystwo Budownictwa Społecznego Sp. z o.o.
ul. Budowlanych 9/2
78 - 600 Wałcz
Nazwa
inwestycji:
Projekt przebudowy budynku gospodarczego przy ulicy Szczęśliwej 3
w Wałczu, wraz z naprawą muru na granicy działki posesji 1 i 3.
Adres:
ul. Szcześliwa 3, działka 4350, 4351, 78 - 600 Wałcz,
obręb 0001 Wałcz, j. ew. 321701_1 Wałcz
podpis:
50
mgr inż. arch. Karol Bukowski
86
114
12
Opracował:
Tytuł rysunku:
Stadium:
D1
Słup o przekroju 14x14
cm, wys ok 130 cm
Obwodowe deskowanie
gr 2,5 cm, wys. ok 20 cm
Nr Rys.:
I
Inwentaryzacja
Licencja ArchiCAD:
Branża:
Data:
BUDOWLANA
marzec
2016
Skala:
I2
1:50
Uwaga!
1. Wymiary weryfikować na miejscu budowy!
2. Wymiary w świetle wykończenia ścian.
A-A
Słup o przekroju 14x14
cm, wys ok 130 cm
Rzut przyziemia, piętra
Projekt ten chroniony jest prawem zgodnie z Ustawą o Prawie Autorskim.
Wszelkie kopiowanie, powielanie, odstępowanie i dokonywanie zmian bez
zgody autora jest niedozwolone i podlega karze.