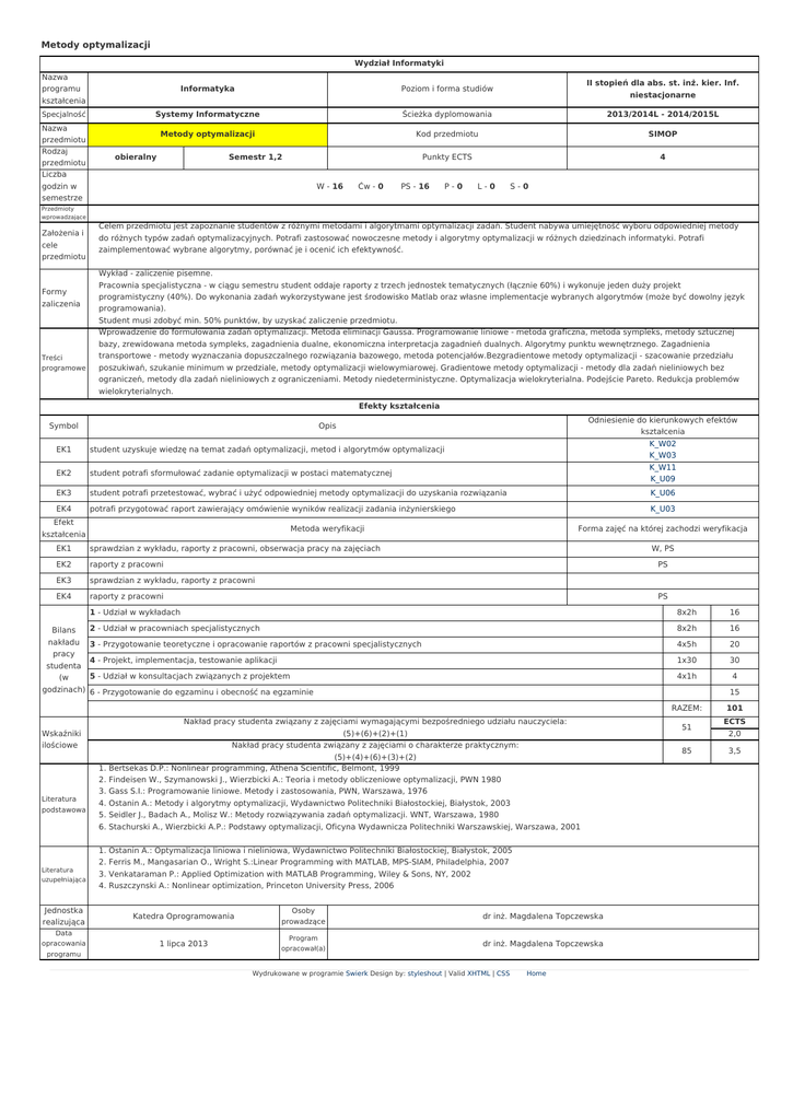
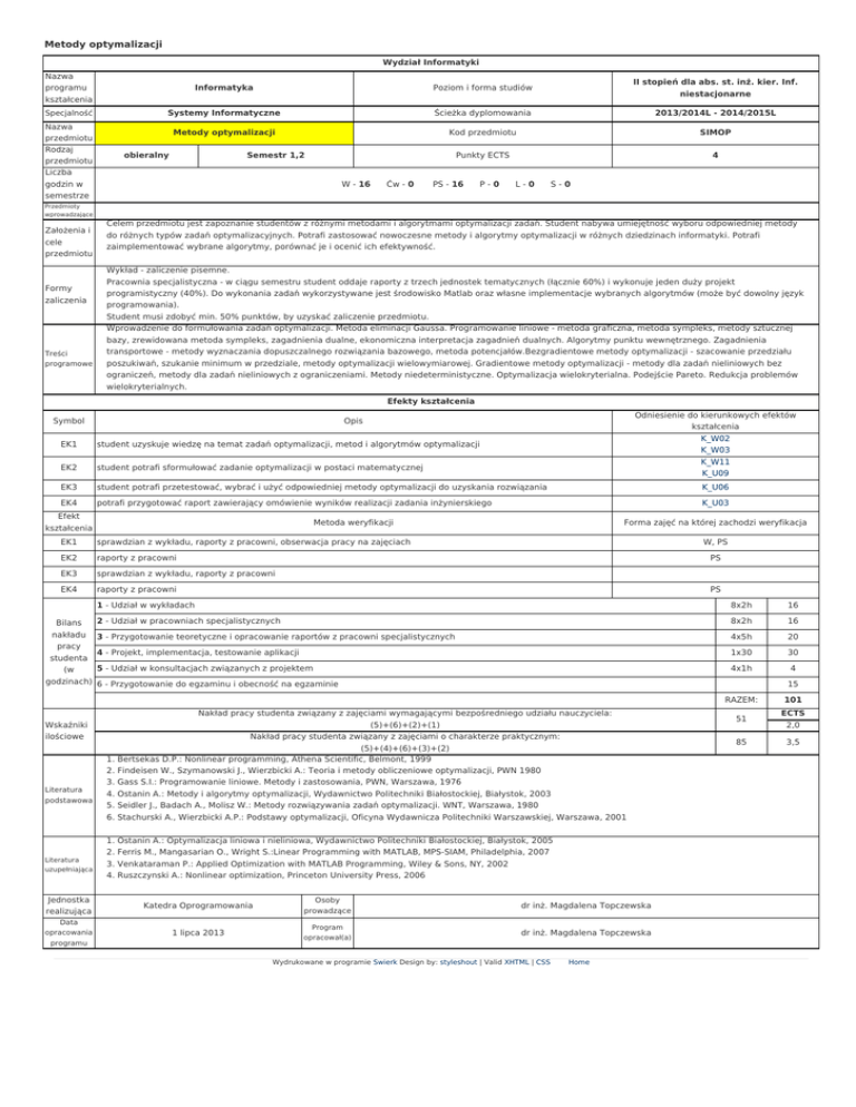
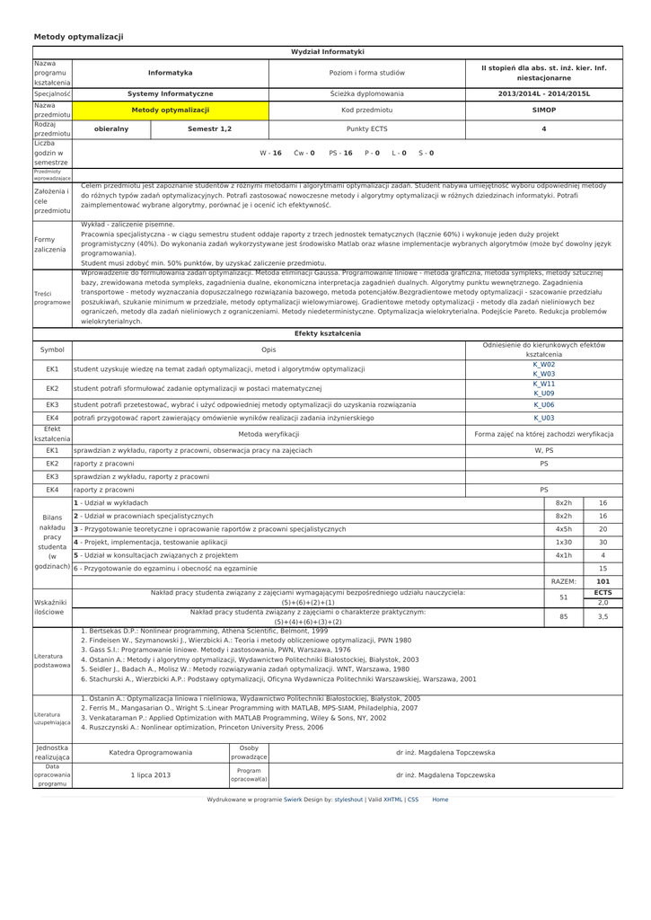
Metody optymalizacji - Wydział Informatyki

Transkrypt

Metody optymalizacji - Wydział Informatyki
Metody optymalizacji
Wydział Informatyki
Nazwa
programu
kształcenia
Informatyka
Poziom i forma studiów
II stopień dla abs. st. inż. kier. Inf.
niestacjonarne
Specjalność
Systemy Informatyczne
Ścieżka dyplomowania
2013/2014L - 2014/2015L
Metody optymalizacji
Kod przedmiotu
SIMOP
Punkty ECTS
4
Nazwa
przedmiotu
Rodzaj
przedmiotu
obieralny
Semestr 1,2
Liczba
godzin w
semestrze
W - 16 Ćw - 0 PS - 16 P - 0 L - 0 S - 0
Przedmioty
wprowadzające
Założenia i
cele
przedmiotu
Formy
zaliczenia
Treści
programowe
Celem przedmiotu jest zapoznanie studentów z różnymi metodami i algorytmami optymalizacji zadań. Student nabywa umiejętność wyboru odpowiedniej metody
do różnych typów zadań optymalizacyjnych. Potrafi zastosować nowoczesne metody i algorytmy optymalizacji w różnych dziedzinach informatyki. Potrafi
zaimplementować wybrane algorytmy, porównać je i ocenić ich efektywność.
Wykład - zaliczenie pisemne.
Pracownia specjalistyczna - w ciągu semestru student oddaje raporty z trzech jednostek tematycznych (łącznie 60%) i wykonuje jeden duży projekt
programistyczny (40%). Do wykonania zadań wykorzystywane jest środowisko Matlab oraz własne implementacje wybranych algorytmów (może być dowolny język
programowania).
Student musi zdobyć min. 50% punktów, by uzyskać zaliczenie przedmiotu.
Wprowadzenie do formułowania zadań optymalizacji. Metoda eliminacji Gaussa. Programowanie liniowe - metoda graficzna, metoda sympleks, metody sztucznej
bazy, zrewidowana metoda sympleks, zagadnienia dualne, ekonomiczna interpretacja zagadnień dualnych. Algorytmy punktu wewnętrznego. Zagadnienia
transportowe - metody wyznaczania dopuszczalnego rozwiązania bazowego, metoda potencjałów.Bezgradientowe metody optymalizacji - szacowanie przedziału
poszukiwań, szukanie minimum w przedziale, metody optymalizacji wielowymiarowej. Gradientowe metody optymalizacji - metody dla zadań nieliniowych bez
ograniczeń, metody dla zadań nieliniowych z ograniczeniami. Metody niedeterministyczne. Optymalizacja wielokryterialna. Podejście Pareto. Redukcja problemów
wielokryterialnych.
Efekty kształcenia
Symbol
Odniesienie do kierunkowych efektów
kształcenia
K_W02
K_W03
Opis
EK1
student uzyskuje wiedzę na temat zadań optymalizacji, metod i algorytmów optymalizacji
EK2
student potrafi sformułować zadanie optymalizacji w postaci matematycznej
K_W11
K_U09
EK3
student potrafi przetestować, wybrać i użyć odpowiedniej metody optymalizacji do uzyskania rozwiązania
K_U06
EK4
potrafi przygotować raport zawierający omówienie wyników realizacji zadania inżynierskiego
Efekt
kształcenia
EK1
sprawdzian z wykładu, raporty z pracowni, obserwacja pracy na zajęciach
EK2
raporty z pracowni
EK3
sprawdzian z wykładu, raporty z pracowni
EK4
raporty z pracowni
Bilans
nakładu
pracy
studenta
(w
godzinach)
K_U03
Metoda weryfikacji
Forma zajęć na której zachodzi weryfikacja
W, PS
PS
PS
1 - Udział w wykładach
8x2h
16
2 - Udział w pracowniach specjalistycznych
8x2h
16
3 - Przygotowanie teoretyczne i opracowanie raportów z pracowni specjalistycznych
4x5h
20
4 - Projekt, implementacja, testowanie aplikacji
1x30
30
5 - Udział w konsultacjach związanych z projektem
4x1h
6 - Przygotowanie do egzaminu i obecność na egzaminie
RAZEM:
Nakład pracy studenta związany z zajęciami wymagającymi bezpośredniego udziału nauczyciela:
(5)+(6)+(2)+(1)
Wskaźniki
ilościowe
Literatura
podstawowa
Literatura
uzupełniająca
4
15
1.
2.
3.
4.
5.
6.
Nakład pracy studenta związany z zajęciami o charakterze praktycznym:
(5)+(4)+(6)+(3)+(2)
Bertsekas D.P.: Nonlinear programming, Athena Scientific, Belmont, 1999
Findeisen W., Szymanowski J., Wierzbicki A.: Teoria i metody obliczeniowe optymalizacji, PWN 1980
Gass S.I.: Programowanie liniowe. Metody i zastosowania, PWN, Warszawa, 1976
Ostanin A.: Metody i algorytmy optymalizacji, Wydawnictwo Politechniki Białostockiej, Białystok, 2003
Seidler J., Badach A., Molisz W.: Metody rozwiązywania zadań optymalizacji. WNT, Warszawa, 1980
Stachurski A., Wierzbicki A.P.: Podstawy optymalizacji, Oficyna Wydawnicza Politechniki Warszawskiej, Warszawa, 2001
1.
2.
3.
4.
Ostanin A.: Optymalizacja liniowa i nieliniowa, Wydawnictwo Politechniki Białostockiej, Białystok, 2005
Ferris M., Mangasarian O., Wright S.:Linear Programming with MATLAB, MPS-SIAM, Philadelphia, 2007
Venkataraman P.: Applied Optimization with MATLAB Programming, Wiley & Sons, NY, 2002
Ruszczynski A.: Nonlinear optimization, Princeton University Press, 2006
Jednostka
realizująca
Katedra Oprogramowania
Osoby
prowadzące
dr inż. Magdalena Topczewska
Data
opracowania
programu
1 lipca 2013
Program
opracował(a)
dr inż. Magdalena Topczewska
Wydrukowane w programie Świerk Design by: styleshout | Valid XHTML | CSS Home
51
85
101
ECTS
2,0
3,5