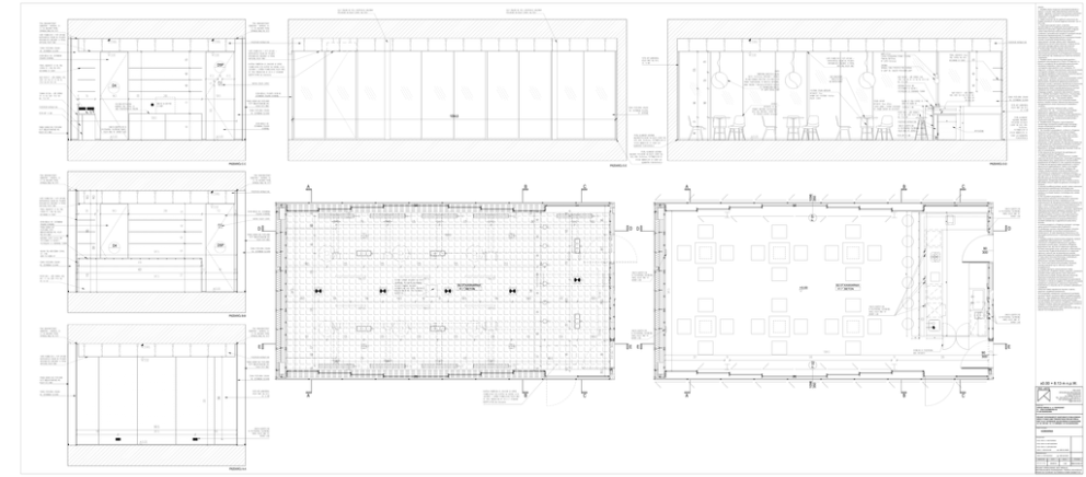
0.00 = 8.13 m npW

Transkrypt

0.00 = 8.13 m npW
UWAGI:
1.
oparciu o rysunki i opisy dokumentacji wykonawczej
obiektu , zgodnie z warunkami technicznymi wykonania i
2.
PW-A-02)
3.
4.
dokumentacji wykonawczej Wykonawca powinien
5.
uzgodnione z Projektantem i Inwestorem.
6.
7.
Nadzorem Autorskim i Inwestorem, potwierdzonej na
8.
osobne porozumienie.
9.
propozycje, w takim terminie, aby decyzja Architekta nie
10.
11.
przedstwione Architektowi w celu uzyskania akceptacji.
12.
nadzoru, drugi pozostanie w biurze architekta w celu
transport.
13.
dokumentacji warsztatowej i technologii, prac
budowlanych oraz procedura ich akceptacji zostanie
Inwestora.
14.
wykonawczych do akceptacji Architekta i Inwestora (nie
uzgodnienia bez wezwania, w takim terminie, aby
terminie.
15.
16.
Autorski.
17.
18.
19.
20.Pochwyty wszystkich balustrad montowane
21.
22.
Wykonawca balustrad oraz Wykonawy innych
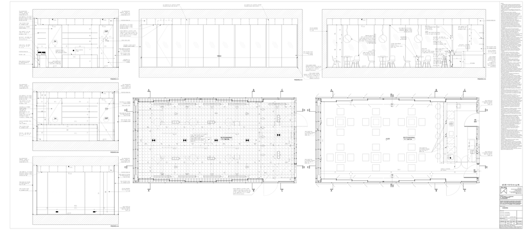
B2.07 KAWIARNIA
61,7 BETON
_ 0,00
+
B2.07 KAWIARNIA
61,7 BETON
w projekcie.
23.
24.
25.W przypadku dostraczenia rysunku zamiennego,
26.
PRO ARTE
"PRO ARTE"
02-541 WARSZAWA
UL. NARBUTTA 42 m10
TEL. (022) 848 00 21, (022) 848 00 77
mail: [email protected]
[email protected]
INWESTOR:
UL. JANA KAZIMIERZA 62
01-248 WARSZAWA
PROJEKT WYKONAWCZY SANITARIATU PUBLICZNEGO
KAWIARNIA
PROJEKTANT:
STUD. ARCH. M. MATUSZEWSKA
STUD. ARCH. K. SZPICMACHER
ARCH. J. GROCHULSKI
upr. NR St-124/85
ARCH. S. STEFANOWICZ
upr. NR St-572/81
UMOWA NR
ZMW/12/2011/I3/AK/I
DATA
03/2012
SKALA
RYSUNEK
1:20
PBW-W-B2.07