E P.B.W.
Transkrypt
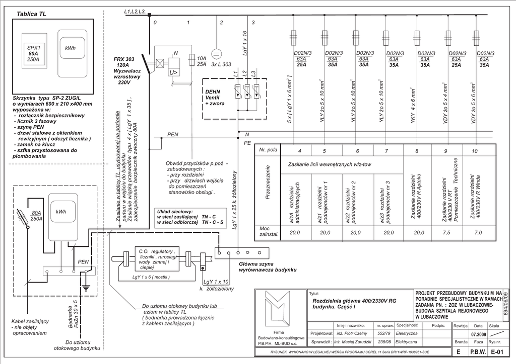
E P.B.W.
L1,L2,L3, 3 PEN D02N/3 63A 35A D02N/3 63A 25A D02N/3 63A 35A YDY ¿o 5 x 6 mm 2 YDY ¿o 5 x 4 mm 2 YKY 4 x 6 mm 2 2 D02N/3 63A 35A YLY ¿o 5 x 10 mm YLY ¿o 5 x 10 mm 2 2 D02N/3 63A 35A 2 D02N/3 63A 35A 5 x [ LgY 1 x 6 mm ] L3 DEHN Ventil + zwora N PEN PE C.O. regulatory , liczniki , ruroci¹gi wody zimnej i ciep³ej Moc zainstal. 7 8 20,0 20,0 20,0 Zasilanie rozdzielni 400/230V R Apteka wlz3 rozdzielni podnajemców nr 3 20,0 20,0 9 10 7,5 Zasilanie rozdzielni 400/230V R Winda 6 wlz2 rozdzielni podnajemców nr 2 wlz1 rozdzielni podnajemców nr 1 wlzA rozdzielni administracyjnych Uk³ad sieciowy: w sieci zasilaj¹cej TN - C w sieci odbiorczej TN - C - S 5 Zasilanie linii wewnêtrznych wlz-tow Przeznaczenie Obwód przycisków p.po¿ zabudowanych : - przy rozdzielni - przy drzwiach wejœcia do pomieszczeñ stanowisko obslugi . 4 Zasilanie rozdzielni 400/230 V RT Pomieszczenie Techniczne Nr. pola LgY 1 x 25 k. ¿ó³tozielony kWh U> L1 FRX 303 120A Wyzwalacz wzrostowy 230V D02N/3 63A 25A 10A 25A 3x L 303 YLY ¿o 5 x 10 mm N Skrzynka typu SP-2 ZUGiL o wymiarach 600 x 210 x400 mm wyposa¿ona w: - roz³¹cznik bezpiecznikowy - licznik 3 fazowy - szynê PEN - drzwi stalowe z okienkiem rewizyjnym ( odczyt licznika ) - zamek na klucz - szfka przystosowana do plombowania 80A 250A 2 kWh Zasilanie w tablicy TL usytuowanej na poziomie parteru w wejœciu do budynku Zasilanie wi¹zk¹ przewodów typu 4 x [ LgY 1 x 35 ] , zabezpieczenie bezpiecznik zw³oczny 80A SPX1 80A 250A 1 LgY 1 x 16 0 L2 Tablica TL 7,0 G³ówna szyna wyrównawcza budynku LgY 1 x 10 k. ¿ó³tozielony Kabel zasilaj¹cy - nie objêty opracowaniem Bednarka FeZn 30 x 5 Tytu³: Do uziomu otokowego budynku Rozdzielnia g³ówna 400/2330V RG budynku. Czêœæ I Do uziomu otokowy budynku lub uziom w tablicy TL ( bednarka prowadzona ³¹cznie z kablem zasilaj¹cym ) Imiê i nazwisko: Firma Budowlano-konsultingowa P.B.P.H. ML-BUD s.c. PROJEKT PRZEBUDOWY BUDYNKU M NA PORADNIE SPECJALISTYCZNE W RAMACH ZADANIA PN. : ZOZ W LUBACZOWIEBUDOWA SZPITALA REJONOWEGO W LUBACZOWIE nr. upraw. Specjalnoœæ Projektowal: in¿. Piotr Czelny 552/79 Elektryczna Sprawdzi³ : in¿. Maciej Zarudzki 235/98 Elektryczna RYSUNEK WYKONANO W LEGALNEJ WERSJI PROGRAMU COREL 11 Seria DR11WRP-1938961-SUE Podpis: Rewizja Data Skala 07.2009 Bran¿a E Faza Rys.nr. P.B.W. E-01 894/06/09 LgY 1 x 6 ( mostki ) L1,L2,L3, P302 30mA 25A P302 30mA 25A S301 B,10A S301 B,16A YLY ¿o 3 x 2,5 YDY ¿o 5 x 1,5 S301 B,10A N S301 B,16A S301 B,16A YLY ¿o 3 x 2,5 S301 B,10A S301 B,10A YDY ¿o 5 x 1,5 YDY ¿o 5 x 1,5 S301 B,10A L3 S301 B,16A YDY ¿o 3 x 2,5 L2 YDY ¿o 3 x 2,5 L1 PE 24 1,0 1,0 26 27 28 29 Obwody gniazd wtyczkowych - ogólnych Oœwietlenie pomieszczenie rezerwa Oœwietlenie pomieszcz. 0.6 , 0.5 , 0.9 , 0.8 ,0.7 , 1,0 Oœwietlenie pomieszcz. 0.10 , 0,18 + napêd drzwi rozsuwanych 1,0 Oœwietlenie pomieszcz. 0.13 , 0.14 , 0.15 , 0.16 ,0.17 , Moc zainstal. Oœwietlenie pomieszcz. 0,3 , 01 , 02 oraz zasilanie drzwi rozsuwanych Przeznaczenie Obwody oœwietlenia podstawowego awaryjnego i ewakuacji 25 1,0 ,0 2,0 Gniazda wtyczkowe pomieszczenie 0.6 REJESTRACJA 2,0 2,0 2,0 Tytu³: Rozdzielnia g³ówna 400/2330V RG budynku. Czêœæ II Imiê i nazwisko: Firma Budowlano-konsultingowa P.B.P.H. ML-BUD s.c. PROJEKT PRZEBUDOWY BUDYNKU M NA PORADNIE SPECJALISTYCZNE W RAMACH ZADANIA PN. : ZOZ W LUBACZOWIEBUDOWA SZPITALA REJONOWEGO W LUBACZOWIE nr. upraw. Specjalnoœæ Projektowal: in¿. Piotr Czelny 552/79 Elektryczna Sprawdzi³ : in¿. Maciej Zarudzki 235/98 Elektryczna RYSUNEK WYKONANO W LEGALNEJ WERSJI PROGRAMU COREL 11 Seria DR11WRP-1938961-SUE Podpis: Rewizja Data Skala 07.2009 Bran¿a E Faza Rys.nr. P.B.W. E-02 894/06/09 23 Gniazda wtyczkowe typu DATA 22 Gniazda wtyczkowe ogólne 21 Gniazda wtyczkowe pomieszczenie 0.17 , 0.13 20 Gniazda wtyczkowe pomieszczenie 0.1 ,0.3 , ,0.10 , Nr. pola L1,L2,L3, S 301 B,10A S 301 B,10A S 301 B,10A 3 FR3 A-0-B 2 4 N K3 AZ-B 35 Parter Piêtra Obwody przycisków ster. oœwietleniem na klatce schodowej Parter Piêtra 36 37 Oœwietlenie wejœæ do budynku ( Wejœcie D zasilane z rozdzielni N 38 39 R.Wymiennik ) Oœwietlenie wejœcia Oœwietlenie wejœcia A do budynku oraz nr. policyjny Wejœcie C1 Zasilanie obwodów oœwietlenia , klatki schodowej l Wejœcie C Przeznaczenie Oœwietlenie klatki schodowej wejœcie A K4 SM320 230V;4z Czujnik zmierzchowy 33 6 Wejœcie B 32 YDY ¿o 3 x 1,5 YDY ¿o 3 x 1,5 31 B YDY ¿o 3 x 1,5 30 YDY ¿o 5 x 2,5 YDY ¿o 5 x 1,5 4 Nr. pola 1 K2 0047 07 1 - 10 min K1 SM320 230V;2z 5 YDY ¿o 3 x 1,5 4 L YDY ¿o 3 x 2.5 YDY ¿o 3 x 2.5 YDY ¿o 3 x 2.5 N Tytu³: Rozdzielnia g³ówna 400/2330V RG budynku. Czêœæ III Imiê i nazwisko: Firma Budowlano-konsultingowa P.B.P.H. ML-BUD s.c. PROJEKT PRZEBUDOWY BUDYNKU M NA PORADNIE SPECJALISTYCZNE W RAMACH ZADANIA PN. : ZOZ W LUBACZOWIEBUDOWA SZPITALA REJONOWEGO W LUBACZOWIE nr. upraw. Specjalnoœæ Projektowal: in¿. Piotr Czelny 552/79 Elektryczna Sprawdzi³ : in¿. Maciej Zarudzki 235/98 Elektryczna RYSUNEK WYKONANO W LEGALNEJ WERSJI PROGRAMU COREL 11 Seria DR11WRP-1938961-SUE Podpis: Rewizja Data Skala 07.2009 Bran¿a E Faza Rys.nr. P.B.W. E-03 894/06/09 Moc zainstal. 27 28 5. Koñcówki przewodów linkowych okuæ zaciskami rurkowymi 6. Odejœcie z ochronnika do szyny wyrównawczej wykonaæ przewodem LgY 1 x 25 REZERWA 7. Przewody wyprowadzone do góry u³o¿yæ pod tynk 8. W dolnej czêœci rozdzielni nale¿y zabudowaæ urz¹dzenia informatyczne i telefoniczne 9. Kable oraz przewody nale¿y w rozdzielni u³o¿yæ w oddzielnych korytach grzebieniowych Data 10. Pomiêdzy aparatami nale¿y zachowaæ przerwy na chodzenie Obwody teletechniczne oraz informatyczne 35 Wprowadzenie kabli i przewodów S,301,B ,10A S,301,B ,10A S,301,B ,10A S,301,B ,10A 23 24 X 6 x ZUG10 32,33 K3 AZ-B 21 22 K4 SM320 230V;4z 30,31 20 S,301,B ,10A 10 S,301,B ,10A 9 S,301,B ,16A DON/K 63A 35A S,301,B ,10A 7 X 4 x ZUG10 25 26 P302 30mA 25A 6 DON/K 63A 25A 8 DON/K 63A 35A S,301,B ,10A 5 DON/K 63A 35A P302 30mA 25A DON/K 63A 35A K1 SM320 ;230V;2z K2 0047 07;1-10 min 4. Kolory przewodów zgodnie z PNE DON/K 63A 35A 3 36,37,38 Wprowadzenie przewodów informatycznych oraz telefonicznych Rewizja 07.2009 Faza Skala Rys.nr. P.B.W. E-04 894/06/09 2. Rozdzielniê nale¿y odrutowaæ przewodem : - typu LgY 1 x 35 - pole zasilaj¹ce - typu LgY 1 x 16 - obwody ochronnika - typu LgY 1 x 10 - pola 4 ,5 ,6 ,7 ,8 ,9 ,10 - typu LgY 1 x 2,5 - pola odp³ywowe DEHN Ventil TNC 2 4 1 .Pod rozdzielnia oko³o 0,30 m nad posadzk¹ nale¿y osadziæ szynê wyrównawcza 3 x L303 1 DON/K 63A 25A Lokalna szyna wyrównawcza typu DEHN MINI Uwagi monta¿owe . Obwody przycisków p.po¿ S,301,B ,16A 0,3m Tytu³: Podpis: Bran¿a E PROJEKT PRZEBUDOWY BUDYNKU M NA PORADNIE SPECJALISTYCZNE W RAMACH ZADANIA PN. : ZOZ W LUBACZOWIEBUDOWA SZPITALA REJONOWEGO W LUBACZOWIE Elektryczna Rozdzielnia g³ówna 400/2330V RG budynku. Czêœæ III 552/79 Elektryczna nr. upraw. Specjalnoœæ Projektowal: in¿. Piotr Czelny 235/98 Imiê i nazwisko: Sprawdzi³ : in¿. Maciej Zarudzki RYSUNEK WYKONANO W LEGALNEJ WERSJI PROGRAMU COREL 11 Seria DR11WRP-1938961-SUE Firma Budowlano-konsultingowa P.B.P.H. ML-BUD s.c. LgY 1 x 25 mm u³o¿ony w scianie z rozdzielni do szyny X 10 x ZUG10 FR3 A-0-B 0 S,301,B ,16A PE DO 10 25 S,301,B ,10A FRX 303 100A + wyzwalacz zanikowy 230V S,301,B ,16A Rozdzielnia 400/230V “RPS” Obudowa typu PB-U-600/10 wymiar : - rozdzielni 1000 x 600 x 247 mm - wnêki 985 x 565 x 240 mm oko³o 1.5 m Szkic monta¿u rozdzielni i szyny wyrównawczej L1,L2,L3, 0 1 P302 30mA 25A L1 L2 S301 B,10A S301 B,16A YLY ¿o 3 x 2,5 N N S301 B,16A YLY ¿o 3 x 2,5 S301 B,10A S301 B,10A YDY ¿o 5 x 1,5 YDY ¿o 5 x 1,5 S301 B,10A YDY ¿o 5 x 1,5 FR 303 100 PE PE 5 6 8 1,0 1,0 1,0 2,0 Linia wlz A wykonana wi¹zk¹ przewodów typu 5 x [ LgY 1 x 6 ] przewody u³o¿one w oddzielnych rurach instalacyjnych 2,0 Tytu³: Rozdzielnia administracyjna 400/2330V RA 1 . Piêtro I Imiê i nazwisko: Firma Budowlano-konsultingowa P.B.P.H. ML-BUD s.c. PROJEKT PRZEBUDOWY BUDYNKU M NA PORADNIE SPECJALISTYCZNE W RAMACH ZADANIA PN. : ZOZ W LUBACZOWIEBUDOWA SZPITALA REJONOWEGO W LUBACZOWIE nr. upraw. Specjalnoœæ Projektowal: in¿. Piotr Czelny 552/79 Elektryczna Sprawdzi³ : in¿. Maciej Zarudzki 235/98 Elektryczna RYSUNEK WYKONANO W LEGALNEJ WERSJI PROGRAMU COREL 11 Seria DR11WRP-1938961-SUE Podpis: Rewizja Data Skala 07.2009 Bran¿a E Faza Rys.nr. P.B.W. E-05 894/06/09 1,0 rezerwa Obwody gniazd wtyczkowych - ogólnych Oœwietlenie pomieszczenie rezerwa Obwody oœwietlenia podstawowego awaryjnego i ewakuacji 7 Gniazda wtyczkowe pomieszczenie 1.7 , 1.8 , 1.9 , 1.10 4 Gniazda wtyczkowe pomieszczenie 1.15 , 1.6 3 Oœwietlenie pomieszcz. 1.6 , 1.11 , 1.12 , 1.13 - 2 Oœwietlenie pomieszcz. 1.5 , 1.4 ,1.9 , 1.8 ,1.7 , 1.10 WskaŸnik obecnoœci napiêcia 1 Oœwietlenie pomieszcz 1.2 , 1.1 , Moc zainstal. 0 Zasilanie z linii wlzA rozdzielni administracyjnych pole nr 4 w rozdzielni RG Nr. pola Przeznaczenie LZG-25/10 Szczegó³ przejœcia lini i WLZ - tu przez rozdzielnie . Przy³¹czenie rozdzielni bez przecinania lini WLZ z wykorzystaniem listwy LZG-25/10 wykonanie 21 Odga³êŸnik instalacyjny 5 torowy LZG-25/10 wykonanie 21 3 S301,B,10A 2 1 S301,B,10A Wprowadzenie linii WLZ - tu S301,B,10A S301,B,10A 0 4 5 6 S301,B,16A FR 303 100A P302 30mA 25A S301,B,16A Wyrowadzenie linii WLZ - tu £K-713 Rozmieszczenie aparatów w obudowie rozdzielni 7 8 Obudowa podtynkowa Ekinoxe TX 2 x 18 wymiar wnêki 404 x 402 x 100mm Linia WLZ z³ozona z przewodów typu 5 x [ LgY 1 x 6 ] ka¿dy z przewodów u³o¿ony w oddzielnej rurze ochronnej Obwody teletechniczne oraz internet Obudowa podtynkowa Ekinoxe TX 3 x 18 wymiar : - wnêki 404 x 552 x 100mm - rozdzielni 425 x 610 x 96 mm Tytu³: Rozdzielnia administracyjna 400/2330V RA 1 . Elewacja Imiê i nazwisko: Firma Budowlano-konsultingowa P.B.P.H. ML-BUD s.c. PROJEKT PRZEBUDOWY BUDYNKU M NA PORADNIE SPECJALISTYCZNE W RAMACH ZADANIA PN. : ZOZ W LUBACZOWIEBUDOWA SZPITALA REJONOWEGO W LUBACZOWIE nr. upraw. Specjalnoœæ Projektowal: in¿. Piotr Czelny 552/79 Elektryczna Sprawdzi³ : in¿. Maciej Zarudzki 235/98 Elektryczna RYSUNEK WYKONANO W LEGALNEJ WERSJI PROGRAMU COREL 11 Seria DR11WRP-1938961-SUE Podpis: Rewizja Data Skala 07.2009 Bran¿a E Faza Rys.nr. P.B.W. E-06 894/06/09 oko³o 1,7 m Szkic monta¿u rozdzielni Szczegó³ wprowadzenia lini i WLZ - tu do rozdzielni . X1 7 x ZUG 2,5 K1 SM3202Z FR1 S301,C,2A X4 7 x ZUG 2,5 S301,B,10A 10 Linia WLZ z³ozona z przewodów typu 5 x [ LgY 1 x 6 ] ka¿dy z przewodów u³o¿ony w oddzielnej rurze ochronnej 16 Obwody teletechniczne oraz internet X7 7 x ZUG 2,5 K7 SM3202Z FR7 S301,C,0,3A 13 X6 7 x ZUG 2,5 K6 SM3202Z FR6 S301,C,0,3A K4 SM3202Z S301,B,16A FR4 8 Szkic monta¿u rozdzielni 17 Obudowa podtynkowa Ekinoxe TX 3 x 18 wymiar : - wnêki 404 x 702 x 100mm - rozdzielni 425 x 760 x 96 mm Tytu³: Rozdzielnia administracyjna 400/2330V RA 2 . Elewacja Imiê i nazwisko: Firma Budowlano-konsultingowa P.B.P.H. ML-BUD s.c. PROJEKT PRZEBUDOWY BUDYNKU M NA PORADNIE SPECJALISTYCZNE W RAMACH ZADANIA PN. : ZOZ W LUBACZOWIEBUDOWA SZPITALA REJONOWEGO W LUBACZOWIE nr. upraw. Specjalnoœæ Projektowal: in¿. Piotr Czelny 552/79 Elektryczna Sprawdzi³ : in¿. Maciej Zarudzki 235/98 Elektryczna RYSUNEK WYKONANO W LEGALNEJ WERSJI PROGRAMU COREL 11 Seria DR11WRP-1938961-SUE Podpis: Rewizja Data Skala 07.2009 Bran¿a E Faza Rys.nr. P.B.W. E-08 894/06/09 Wprowadzenie linii WLZ - tu 7 Obudowa podtynkowa Ekinoxe TX 2 x 18 wymiar wnêki 404 x 402 x 100mm oko³o 1,7 m 15 6 12 X5 7 x ZUG 2,5 K5 SM3202Z FR5 S301,C,0,3A 11 S301,B,16A 5 S301,C,0,3A S301,B,10A 4 P302 30mA 25A X3 7 x ZUG 2,5 S301,B,10A 3 K3 SM3202Z S301,B,10A 2 FR3 S301,B,10A 1 S301,C,1A K2 SM3202Z FR2 S301,C,1A 0 X2 7 x ZUG 2,5 FR 303 100A £K-713 Rozmieszczenie aparatów w obudowie rozdzielni L1,L2,L3, 1 S301 C ; 2,0A P302 30mA 25A S301 B,16A 6 - FR1 2,0 S301 C ; 0,3A 4 K2 SM320 230V;2z 11 N K3 SM320 230V;2z N K4 SM320 230V;2z 12 N K1 SM320 230V;2z PE X1 13 1 2 3 4 5 7 14 YKSLY 10 x 1,5 YKSL 5 x 0,75 W2 W3 typ TD-1000/250HS typ TD-1000/250HS 230V , 125W , 0,5A 230V , 125W , 0,5A W4 typ TD-250/100HS 230V , 24W , 0,11A £¹cznik 1 biegunowy dla zdalnego z³¹czenia wentylatora L N PE 2,0 1 2 V M S301 C ; 0,3A 6 Sterowanie prac¹ wentylatorów przewietrzania pomieszczeñ S301 C ; 0,3A 4 x LIP 1000F + RU41F k. czerwony 4 2 2 N YKSLY 10 x 1,5 YKSLY 5 x 0,75 10 A-0-B 2 N W1 typ TD-400/355 230V , 345W, 1,53A 1,0 S301 C ; 0,3A 8 Oœwietlenie strych 1,0 1,0 7 Gniazda wtyczkowe pomieszczenie 2.1 , 2.5 , 2.4 , 1,0 A-0-B 4 A-0-B K1 SM320 230V;2z Obwody gniazd wtyczkowych - ogólnych Oœwietlenie pomieszczenie rezerwa Obwody oœwietlenia podstawowego awaryjnego i ewakuacji 2 Stanowisko w rejestracji poziom parteru 5 FR1 A-0-B FR4 Gniazda wtyczkowe pomieszczenie 2.7 , 2.8 , 2.9 , 2.10 4 Oœwietlenie pomieszcz. 2.5 , 2.4 ,2.9 , 2.8 ,2.7 , 2.10 Oœwietlenie pomieszcz. 2.6 , 2.11 , 2.12 , 2.13 Moc zainstal. 3 Oœwietlenie pomieszcz 2.2 , 2.1 , WskaŸnik obecnoœci napiêcia Zasilanie z linii wlzA rozdzielni administracyjnych pole nr 4 w rozdzielni RG Wentylator kana³owy wyposa¿ony w termiczne wyposa¿enie uzwojenia przed przeci¹¿eniem 4 x LIP 1000F + RU41F k. czerwony 4 2 4 FR2 A-0-B 2 FR3 4 A-0-B YKSLY 10 x 1,5 FRA-0-B Nr. pola 15 N K7 SM320 230V;2z 16 17 N KSM320 230V;2z N 18 Tytu³: Przeznaczenie Sterowanie prac¹ wentylatorów przewietrzania pomieszczeñ Moc zainstal. W6 typ TD-250/100HS 230V , 24W ; 0,11A W7 typ TD-250/100HS 230V , 24W ; 0,11A Rozdzielnia administracyjna 400/2330V RA 2 . Piêtro II Obwód rezerwowy Imiê i nazwisko: Firma Budowlano-konsultingowa P.B.P.H. ML-BUD s.c. PROJEKT PRZEBUDOWY BUDYNKU M NA PORADNIE SPECJALISTYCZNE W RAMACH ZADANIA PN. : ZOZ W LUBACZOWIEBUDOWA SZPITALA REJONOWEGO W LUBACZOWIE nr. upraw. Specjalnoœæ Projektowal: in¿. Piotr Czelny 552/79 Elektryczna Sprawdzi³ : in¿. Maciej Zarudzki 235/98 Elektryczna RYSUNEK WYKONANO W LEGALNEJ WERSJI PROGRAMU COREL 11 Seria DR11WRP-1938961-SUE Podpis: Rewizja Data Skala 07.2009 Bran¿a E Faza Rys.nr. P.B.W. E-07 894/06/09 PE K6 SM320 230V;2z YKSLY 5 x 0,5 YKSLY 5 x 0,5 N N YKSLY 5 x 0,5 K5 SM320 230V;2z W5 typ TD-500/160HS 230V , 24W , 0,11A Przeznaczenie 2 4 A-0-B Linia wlz- A wykonana wi¹zk¹ przewodów typu 5 x [ LgY 1 x 6 ] przewody u³o¿one w oddzielnych rurach instalacyjnych 1 2 FR3 PE 0 4 FR2 S301 B,10A YDY ¿o 3 x 1.5 YLY ¿o 3 x 2,5 YDY ¿o 5 x 1,5 S301 B,16A PE Nr. pola S301 C ; 2,0A 4 2 N N 2 YKSLY 5 x 0,75 S301 B,10A Schemat sterowania wentylatorami przewietrzania pomieszczeñ S301 C ; 0,3A A-0-B YLY ¿o 3 x 2,5 S301 B,10A S301 B,10A YDY ¿o 5 x 1,5 YDY ¿o 5 x 1,5 S301 B,10A S301 C ; 1,0A FR1 L2 FR 303 100 S301 C ; 1,0A YKSLY 5 x 0,75 L1 YKSLY 5 x 0,75 0 L1,L2,L3, 0 1 P302 30mA 25A L1 L2 S301 B,10A S301 B,16A N N S301 B,16A YLY ¿o 3 x 2,5 S301 B,10A YLY ¿o 3 x 2,5 S301 B,10A YDY ¿o 5 x 1,5 Licznik energii czynnej 3 fazowy YDY ¿o 5 x 1,5 FR 303 100 YDY ¿o 5 x 1,5 LZG-25/10 PE Moc zainstal. - 4 5 1,0 1,0 7 1,0 8 Obwody gniazd wtyczkowych - ogólnych Gniazda wtyczkowe pomieszczenie 1, Obwody oœwietlenia podstawowego awaryjnego i ewakuacji 6 1,0 2,0 rezerwa 3 Gniazda wtyczkowe pomieszczenie 2 Oœwietlenie . Przeznaczenie Pomiar energii - sublicznik 1 Oœwietlenie , 0 WskaŸnik obecnoœci napiêcia Nr. pola Zasilanie z linii wlzA rozdzielni administracyjnych pole nr 5(6)(7) w rozdzielni RG Linia WLZ 1 wykonana 2 przewodem typu YLY 5 x 10 mm przewód u³o¿ony w ró¿e instalacyjnej PE 2,0 Rozdzielnia - lokalizacja Obwody oœwietlenia Obwody gniazd wtyczkowych Tytu³: Uwagi Rozdzielnia najemcy parter L1 L2 Rozdzielnia Podnajemcy 400/2330V R “1n” . Piêtro I Rozdzielnia najemcy piêtro I L2 L3 Imiê i nazwisko: Rozdzielnia najemcy piêtro II L3 L1 Firma Budowlano-konsultingowa P.B.P.H. ML-BUD s.c. PROJEKT PRZEBUDOWY BUDYNKU M NA PORADNIE SPECJALISTYCZNE W RAMACH ZADANIA PN. : ZOZ W LUBACZOWIEBUDOWA SZPITALA REJONOWEGO W LUBACZOWIE nr. upraw. Specjalnoœæ Projektowal: in¿. Piotr Czelny 552/79 Elektryczna Sprawdzi³ : in¿. Maciej Zarudzki 235/98 Elektryczna RYSUNEK WYKONANO W LEGALNEJ WERSJI PROGRAMU COREL 11 Seria DR11WRP-1938961-SUE Podpis: Rewizja Data Skala 07.2009 Bran¿a E Faza Rys.nr. P.B.W. E-09 894/06/09 Proponowany podzia³ obci¹¿enia faz w rozdzielniach na poszczególnych piêtrach w celu zachowania równomiernoœci obci¹¿eñ fazowych Szczegó³ przejœcia lini i WLZ - tu przez rozdzielnie . Przy³¹czenie rozdzielni bez przecinania lini WLZ z wykorzystaniem listwy LZG-25/10 wykonanie 21 2 3 1 S301,B,10A Licznik energii czynnej 3 fazowy S301,B,10A S301,B,10A 0 4 6 S301,B,16A FR 303 100A P302 30mA 25A S301,B,16A Odga³êŸnik instalacyjny 5 torowy LZG-25/10 wykonanie 21 £K-713 Rozmieszczenie aparatów w obudowie rozdzielni 7 8 Obudowa podtynkowa Ekinoxe TX 2 x 18 wymiar wnêki 404 x 552 x 100mm Obwody teletechniczne i internet 5 Linia WLZ z³ozona z przewodów typu 5 x [ LgY 1 x 6 ] ka¿dy z przewodów u³o¿ony w oddzielnej rurze ochronnej Rezerwa Szkic monta¿u rozdzielni Tytu³: Rozdzielnia Podnajemcy 400/2330V R “1n” . Elewacja Imiê i nazwisko: Firma Budowlano-konsultingowa P.B.P.H. ML-BUD s.c. PROJEKT PRZEBUDOWY BUDYNKU M NA PORADNIE SPECJALISTYCZNE W RAMACH ZADANIA PN. : ZOZ W LUBACZOWIEBUDOWA SZPITALA REJONOWEGO W LUBACZOWIE nr. upraw. Specjalnoœæ Projektowal: in¿. Piotr Czelny 552/79 Elektryczna Sprawdzi³ : in¿. Maciej Zarudzki 235/98 Elektryczna RYSUNEK WYKONANO W LEGALNEJ WERSJI PROGRAMU COREL 11 Seria DR11WRP-1938961-SUE Podpis: Rewizja Data Skala 07.2009 Bran¿a E Faza Rys.nr. P.B.W. E-10 894/06/09 oko³o 1,7 m Obudowa podtynkowa Ekinoxe TX 3 x 18 wymiar : - wnêki 404 x 552 x 100mm - rozdzielni 425 x 610 x 96 mm L1,L2,L3, 0 1 P302 30mA 25A L1 L2 S301 B,10A S301 B,16A N N S301 B,16A YLY ¿o 3 x 2,5 YDY ¿o 5 x 1,5 YDY ¿o 5 x 1,5 S301 B,10A YLY ¿o 3 x 2,5 S301 B,10A YDY ¿o 5 x 1,5 Licznik energii czynnej 3 fazowy FR 303 100 PE PE - 4 5 1,0 Oœwietlenie . 1,0 7 1,0 1,0 2,0 2,0 Tytu³: Rozdzielnia Podnajemcy 400/2330V R “2n” . Piêtro II Imiê i nazwisko: Firma Budowlano-konsultingowa P.B.P.H. ML-BUD s.c. 8 Obwody gniazd wtyczkowych - ogólnych Gniazda wtyczkowe pomieszczenie 1, Obwody oœwietlenia podstawowego awaryjnego i ewakuacji 6 rezerwa 3 Gniazda wtyczkowe pomieszczenie 2 Oœwietlenie , WskaŸnik obecnoœci napiêcia 1 PROJEKT PRZEBUDOWY BUDYNKU M NA PORADNIE SPECJALISTYCZNE W RAMACH ZADANIA PN. : ZOZ W LUBACZOWIEBUDOWA SZPITALA REJONOWEGO W LUBACZOWIE nr. upraw. Specjalnoœæ Projektowal: in¿. Piotr Czelny 552/79 Elektryczna Sprawdzi³ : in¿. Maciej Zarudzki 235/98 Elektryczna RYSUNEK WYKONANO W LEGALNEJ WERSJI PROGRAMU COREL 11 Seria DR11WRP-1938961-SUE Podpis: Rewizja Data Skala 07.2009 Bran¿a E Faza Rys.nr. P.B.W. E-11 894/06/09 Moc zainstal. Zasilanie z linii wlzA rozdzielni administracyjnych pole nr 4 w rozdzielni RG 0 Pomiar energii - subliczniki Przeznaczenie Linia WLZ 1 wykonana 2 przewodem typu YLY 5 x 10 mm przewód u³o¿ony w ró¿e instalacyjnej Nr. pola Szczegó³ wprowadzenia lini i WLZ - tu do rozdzielni . 2 3 1 S301,B,10A S301,B,10A Rezerwa S301,B,10A 0 4 6 S301,B,16A FR 303 100A P302 30mA 25A S301,B,16A Licznik energii czynnej 3 fazowy £K-713 Rozmieszczenie aparatów w obudowie rozdzielni 7 8 Obudowa podtynkowa Ekinoxe TX 2 x 18 wymiar wnêki 404 x 402 x 100mm Obwody teletechniczne i internet 5 Linia WLZ z³ozona z przewodów typu 5 x [ LgY 1 x 6 ] ka¿dy z przewodów u³o¿ony w oddzielnej rurze ochronnej Obudowa podtynkowa Ekinoxe TX 2 x 18 wymiar : - wnêki 404 x 402 x 100mm - rozdzielni 425 x 460 x 96 mm Tytu³: Rozdzielnia Podnajemcy 400/2330V R “2n” . Elewacja Imiê i nazwisko: Firma Budowlano-konsultingowa P.B.P.H. ML-BUD s.c. PROJEKT PRZEBUDOWY BUDYNKU M NA PORADNIE SPECJALISTYCZNE W RAMACH ZADANIA PN. : ZOZ W LUBACZOWIEBUDOWA SZPITALA REJONOWEGO W LUBACZOWIE nr. upraw. Specjalnoœæ Projektowal: in¿. Piotr Czelny 552/79 Elektryczna Sprawdzi³ : in¿. Maciej Zarudzki 235/98 Elektryczna RYSUNEK WYKONANO W LEGALNEJ WERSJI PROGRAMU COREL 11 Seria DR11WRP-1938961-SUE Podpis: Rewizja Data Skala 07.2009 Bran¿a E Faza Rys.nr. P.B.W. E-12 894/06/09 oko³o 1,7 m Szkic monta¿u rozdzielni Rozdzielnia najemcy “APTEKA” Zasilanie rozdzielni “Apteka” kabel YKY 4 x 6mm Linia WLZ 1 rozdzielni podnajemców 5 x [ LgY 1 x 6mm ] Linia WLZ 2 rozdzielni podnajemców 5 x [ LgY 1 x 6mm ] Linia WLZ 3 rozdzielni podnajemców 5 x [ LgY 1 x 6mm ] Przejœcie przez dylatacje w rurach PCV Przejœcie przez œcianê oddzielenia po¿arowego - przegroda p.po¿ typu HILTI Otwór 100-170mm Masa CP363 Linia WLZ rozdzielni administracyjnych 5 x [ LgY 1 x 6mm ] Rozdzielnia 400/230V RG g³ówna budynku Wewnêtrzne przy³¹cze wykonane wi¹zka przewodów typu 4 x [ LgY 1 x 35 ] u³o¿onej w pojedynczej rórze ochronnej KR 100 + bednarka stalowa ocynkowana 35 x 5 mm Zasilanie rozdzielni RT POm techniczne przewód YDY ¿o 5 x 4 mm Przejœcie przez œcianê oddzielenia po¿arowego - przegroda p.po¿ typu HILTI Otwór 100x250 masa CP 636 Rozdzielnia 400/230VRT Pomieszczenie techniczne Tablica TL Skrzynka typu SP-2 ZUGiL o wymiarach 600 x 210 x400 mm Szkic monta¿u rozdzielni i szyny wyrównawczej Tablica TL Rozdzielnia 400/230V “RPS” Obudowa typu PB-U-600/10 wymiar : - rozdzielni 1000 x 600 x 247 mm - wnêki 985 x 565 x 240 mm Przycisk P.poz PAW 1 i PAW 2 bednarka stalowa ocynkowana FeZn 30 x 5mm oko³o 1.5 m kWh Rura ochron na typu KR 125 wprowadzenie kabla zasilaj¹cego typu YAKY 4 x 120 PE LgY 1 x 16 mm u³o¿ony w scianie z rozdzielni do szyny 0,3m Oko³o 1,7m SPX1 80A 250A Przycisk P.poz PAW 3 Lokalna szyna wyrównawcza typu DEHN MINI Wprowadzenie do budynku w rurze ochronnej typu KR 125 AROT : - kabla zasilaj¹cego YAKY 4 x 120 - bednarki stalowej ocynkowanej FeZn 35 x 5 mm ( “masa” uziomu otokowego budynku ) Tytu³: Rozmieszczenie rozdzielni w budynku . Parter Imiê i nazwisko: Firma Budowlano-konsultingowa P.B.P.H. ML-BUD s.c. PROJEKT PRZEBUDOWY BUDYNKU M NA PORADNIE SPECJALISTYCZNE W RAMACH ZADANIA PN. : ZOZ W LUBACZOWIEBUDOWA SZPITALA REJONOWEGO W LUBACZOWIE nr. upraw. Specjalnoœæ Projektowal: in¿. Piotr Czelny 552/79 Elektryczna Sprawdzi³ : in¿. Maciej Zarudzki 235/98 Elektryczna RYSUNEK WYKONANO W LEGALNEJ WERSJI PROGRAMU COREL 11 Seria DR11WRP-1938961-SUE Podpis: Rewizja Data 894/06/09 Przycisk P.poz PAW 4 Rozdzielnia najemcy R 01 Skala 07.2009 Bran¿a E Faza P.B.W Rys.nr. E - 13 Linia WLZ 2 rozdzielni podnajemców 5 x [ LgY 1 x 6mm ] Linia WLZ 3 rozdzielni podnajemców 5 x [ LgY 1 x 6mm ] Rozdzielnia najemcy R13 Linia WLZ 1 rozdzielni podnajemców 5 x [ LgY 1 x 6mm ] Przejœcie przez dylatacje w rurach PCV Linia WLZ rozdzielni administracyjnych 5 x [ LgY 1 x 6mm ] Rozdzielnia administracyjna 400/230V RA1 Tytu³: Rozmieszczenie rozdzielni w budynku . Piêtro I Imiê i nazwisko: Firma Budowlano-konsultingowa P.B.P.H. ML-BUD s.c. PROJEKT PRZEBUDOWY BUDYNKU M NA PORADNIE SPECJALISTYCZNE W RAMACH ZADANIA PN. : ZOZ W LUBACZOWIEBUDOWA SZPITALA REJONOWEGO W LUBACZOWIE nr. upraw. Specjalnoœæ Projektowal: in¿. Piotr Czelny 552/79 Elektryczna Sprawdzi³ : in¿. Maciej Zarudzki 235/98 Elektryczna RYSUNEK WYKONANO W LEGALNEJ WERSJI PROGRAMU COREL 11 Seria DR11WRP-1938961-SUE Podpis: Rewizja Data 894/06/09 Rozdzielnia najemcy R12 Rozdzielnia najemcy R11 Skala 07.2009 Bran¿a E Faza P.B.W Rys.nr. E - 14 Rozdzielnia najemcy R21 Rozdzielnia najemcy R22 Zasilanie wentylatorów kana³owych zabudowanych w poddaszu budynku Obwody nr 20,21,22,23 Rozdzielnia administracyjna 400/230V RA2 Tytu³: Rozmieszczenie rozdzielni w budynku . Piêtro II Imiê i nazwisko: Firma Budowlano-konsultingowa P.B.P.H. ML-BUD s.c. PROJEKT PRZEBUDOWY BUDYNKU M NA PORADNIE SPECJALISTYCZNE W RAMACH ZADANIA PN. : ZOZ W LUBACZOWIEBUDOWA SZPITALA REJONOWEGO W LUBACZOWIE nr. upraw. Specjalnoœæ Projektowal: in¿. Piotr Czelny 552/79 Elektryczna Sprawdzi³ : in¿. Maciej Zarudzki 235/98 Elektryczna RYSUNEK WYKONANO W LEGALNEJ WERSJI PROGRAMU COREL 11 Seria DR11WRP-1938961-SUE Podpis: Rewizja Data 894/06/09 Rozdzielnia najemcy R23 Przejœcie przez dylatacje w rurach PCV Skala 07.2009 Bran¿a E Faza P.B.W Rys.nr. E - 15 A.2 A.4 A.2 Ob nr 38 A.4 EW2 A.1 A.3 Rozdzielnia g³owna 400/230V budynku E .1 A.3 Ob nr 31 A.3 Ob nr 33 A.2 Ob nr 20 A.2 Oprawa nastropowa typu GEMMA nr kat 11-013/218 CA : 2 x 18W wraz z Ÿród³em œwiat³a Fluo T8 TRIMAX G13 , IP20 ; wymiar 638x336x80 mm A.3 Oprawa nastropowa typu GEMMA nr kat 11-013/218 CA : 2 x 18W , IP20 ; wymiar 638x336x80 mm wraz z Ÿród³em œwiat³a Fluo T8 TRIMAX G13 + modu³ AW 1,5 godzinny A.4 Oprawa nastropowa typu LEADER nr kat 21-043/218 : 2 x 18W wraz z Ÿród³em œwiat³a Fluo T8 TRIMAX G13 EW3 EW3 EW4 Oprawa zwieszona do oko³o 2,80m A.1 A.2 EW1 EW4 EW4 , IP65 ; wymiar 670x170x95 mm A.4 Oprawa typu CARINA 2 254+ 2QR111 ; wraz z Ÿród³em œwiat³a Oprawa typu LOGICA ATCT 8W SE 1P ; wraz z Ÿród³em œwiat³a oraz piktogram “DO WYJŒCIA ” montowana w stropie lub w œcianie bocznej n.p nad dzrwiami Oprawa typu LOGICA ATCT 24W SE 1P + SIGN 2S ; wraz z Ÿród³em œwiat³a oraz piktogram “DO WYJŒCIA ” Oprawa typu LOGICA ATCT 24W SE 1P ; wraz z Ÿród³em œwiat³a , montowana w stropie lub w œcianie bocznej Oprawa typu LOGICA ATCT 11W SE 1P ; AUTODIMMING wraz z Ÿród³em œwiat³a , montowana w zadaszeniu wejœcia do budynku A.4 A.4 Ob nr 35 Wy³¹cznik pod tynkowy 1 biegunowy typ LIP 1000F PROJEKT PRZEBUDOWY BUDYNKU M NA PORADNIE SPECJALISTYCZNE W RAMACH Instalacja oœwietlenia podstawowego ZADANIA PN. : ZOZ W LUBACZOWIEBUDOWA SZPITALA REJONOWEGO i ewakuacji . Parter W LUBACZOWIE Tytu³: Przycisk pod tynkowy “ŒWIAT£O” typ LIP 1010F Wy³¹cznik pod tynkowy œwiecznikowy typ LIP 5000F Wy³¹cznik pod tynkowy schodowy typ LIP 6000F Wy³¹cznik pod tynkowy krzy¿owy typ LIP 7000 Imiê i nazwisko: Firma Budowlano-konsultingowa P.B.P.H. ML-BUD s.c. nr. upraw. Specjalnoœæ Projektowal: in¿. Piotr Czelny 552/79 Elektryczna Sprawdzi³ : in¿. Maciej Zarudzki 235/98 Elektryczna RYSUNEK WYKONANO W LEGALNEJ WERSJI PROGRAMU COREL 11 Seria DR11WRP-1938961-SUE Podpis: Rewizja Data 894/06/09 Oprawa typu - nr policyjny EW2 A.1 , IP20 ; wymiar 1248x336x80 mm EW1 1. Oprawa E1 zwieszona , wysokoœæ monta¿u oko³o H = 2,2m 2. Instalacje wykonaæ pod tynk , zejœcia do wy³¹czników wykonaæ pod tynk 3. Wysokoœæ monta¿u wy³¹czników : - wy³¹czniki w WC 1,2 nad posadzk¹ - wy³¹czniki oœwietlenia 1,3 m nad posadzk¹ 4. Obwody oœwietlenia nale¿y wykonaæ przewodem YDY ¿o 5 x1,5 oraz YDY ¿o 3 x 1,5 A.1 EW2 Oprawa nastropowa typu GEMMA nr kat 11-013/258 CA : 2 x 36W wraz z Ÿród³em œwiat³a Fluo T8 TRIMAX G13 E .1 Uwagi monta¿owe A.4 Oznaczenia graficzne A.1 A.1 EW1 EW3 A.4 EW3 E .1 Ob nr 32 A.1 A.1 Ob. nr 11 i 13/RT Ob nr 30 A.3 A.1 EW3 A.3 Ob nr 37 EW3 A.4 A.3 EW3 A.3 A.4 A.3 Ob. nr 12/RT EW3 Ob nr 21 A.1 A.3 A.1 Ob. nr 22 EW1 Ob. nr 14/RT Rozdzielnia 400/230V RT “Pomieszczenie techniczne” Zasilana z rozdz. RG pole nr 9 A.3 Ob nr 23 Ob nr 20 Ob. nr 10/RT A.1 A.4 A.1 EW4 EW3 A.1 EW1 A.3 EW3 A.1 Oprawa zwieszona do oko³o 2,80m EW1 EW3 EW1 EW1 Ob. nr 36 EW4 Skala 07.2009 Bran¿a E Faza P.B.W Rys.nr. E - 16 Ob nr 26 A Rozdzielnia g³owna 400/230V budynku A B Ob. nr 27, 28 Ob nr 25 “A” A Uwagi montazowe 1 . Instalacje gniazd wtyczkowych nale¿y prowadziæ : - w bruzdach pod tynk do gniazd osadzonych pod tynk - w bruzdach do œcian zewnêtrznych budynku i dalej do instalacji koryt poziomych B 2. Instalacjê gniazad wtyczkowych wykonaæ : - przewodem YDY ¿o 3 x 2,5 obwody prowadzone pod tynk - przewodem YLY ¿o 3 x 2,5 obwody prowadzone w korytkach B Koryto typu KS 130 x 60 osadzone 10 cm nad pod³og¹ Ob. nr 27, 28 A 3. Przed przyst¹pieniem do wykonywania instalacji informatycznych oraz telefonicznych nale¿y zweryfikowaæ typy zastosowanych gniazd telefonicznych i informatycznych z pracownikami s³u¿b teleinformatycznych obs³uguj¹cymi istniej¹ce sieci telefoniczne , informatyczne i sieæ internetow¹ . Sprawdzeniu podlegaj¹ zastosowane gniazda wtyczkowe oraz przewody Kana³a kablowy KS 130 x60 Puszka pod tynkowa pod typowy osprzêt o rozstawie œrub mocuj¹cych 60mm typ KD 35-50 lub KD2-50 Gniazdo wtyczkowe pod tynkowe obwodów 230V oraz informatyczne Przedzia³ dla prowadzenia obwodów telefonicznych Przedzia³ dla prowadzenia obwodów informatycznych w kanale separuj¹cym POD 25 x 18 Zestaw “ A “ gniazd wtyczkowych osadzonych w korytku KS 130 x 60 Gniazdo 4 x 2P+Z typu DATA ( z blokad¹ ) w ramce podwójnej czerwonej Gniazdo 4 x 2P+Z ; typu LIP GWP-132PF w ramce podwójnej bia³ej Dwa gniazda komputerowe ; typu GKP-28F5E w ramce podwójnej zó³tej Dwa gniazda telefoniczne dwukrotne GTP-26F w ramce podwójnej zielonej . Tytu³: Oznaczenia graficzne A Gniazdo wtyczkowe typu GWP-132PF zasilanie mocowane 1,6 m nad posadzk¹ w odleg³oœci oko³o 0,7-0,8 m od umywalki B Gniazdo wtyczkowe typu GWP-132PF w pomieszczeniu zaplecza socjalnego mocowane pod szafkami oraz nad blatem sto³u Gniazdo wtyczkowe typu GWP-132PF mocowane 0,2 m nad posadzk¹ Instalacja gniazd wtyczkowych Parter Imiê i nazwisko: Firma Budowlano-konsultingowa P.B.P.H. ML-BUD s.c. PROJEKT PRZEBUDOWY BUDYNKU M NA PORADNIE SPECJALISTYCZNE W RAMACH ZADANIA PN. : ZOZ W LUBACZOWIEBUDOWA SZPITALA REJONOWEGO W LUBACZOWIE nr. upraw. Specjalnoœæ Projektowal: in¿. Piotr Czelny 552/79 Elektryczna Sprawdzi³ : in¿. Maciej Zarudzki 235/98 Elektryczna RYSUNEK WYKONANO W LEGALNEJ WERSJI PROGRAMU COREL 11 Seria DR11WRP-1938961-SUE Podpis: Rewizja Data 894/06/09 Przedzia³ dla prowadzenia obwodów 230V wydzielony przegroda PO60 K Skala 07.2009 Bran¿a E Faza P.B.W Rys.nr. E - 17 A.1 A.2 A.2 EW3 A.1 EW1 Oprawa zwieszona do oko³o 2,80m A.1 EW3 A.1 EW3 EW3 A.1 A.1 A.1 Ob. nr 3 A.1 A.3 A.3 Ob nr 3 A.1 EW3 A.3 A.1 Rozdzielnia RA-1 400/230V EW2 Ob nr 4 A.2 EW3 EW3 A.1 A.1 A.3 A.3 Obwody nr 11 i 13 rozdzielnia RT A.1 A.3 EW1 Uwagi monta¿owe Ob nr 2 A.1 Oprawa nastropowa typu GEMMA nr kat 11-013/258 CA : 2 x 36W wraz z Ÿród³em œwiat³a Fluo T8 TRIMAX G13 , IP20 ; wymiar 1248x336x80 mm A.2 Oprawa nastropowa typu GEMMA nr kat 11-013/218 CA : 2 x 18W wraz z Ÿród³em œwiat³a Fluo T8 TRIMAX G13 , IP20 ; wymiar 638x336x80 mm A.3 Oprawa nastropowa typu GEMMA nr kat 11-013/218 CA : 2 x 18W , IP20 ; wymiar 638x336x80 mm wraz z Ÿród³em œwiat³a Fluo T8 TRIMAX G13 + modu³ AW 1,5 godzinny A.4 Oprawa nastropowa typu LEADER nr kat 21-043/218 : 2 x 18W wraz z Ÿród³em œwiat³a Fluo T8 TRIMAX G13 EW3 A.1 A.2 EW2 EW3 EW4 Obwody nr 31 i 33 zasilane z rozdzielni g³ównej RG zabudowanej na parterze budynku , IP65 ; wymiar 670x170x95 mm Oprawa typu CARINA 2 254+ 2QR111 ; wraz z Ÿród³em œwiat³a Oprawa typu - nr policyjny EW1 Oprawa zwieszona do oko³o 2,80m 1. Instalacje wykonaæ pod tynk , zejœcia do wy³¹czników wykonaæ pod tynk 2. Wysokoœæ monta¿u wy³¹czników : - wy³¹czniki w WC 1,2 nad posadzk¹ - wy³¹czniki oœwietlenia 1,3 m nad posadzk¹ 3. Obwody oœwietlenia nale¿y wykonaæ przewodem YDY ¿o 5 x1,5 oraz YDY ¿o 3 x 1,5 Oprawa typu LOGICA ATCT 8W SE 1P ; wraz z Ÿród³em œwiat³a oraz piktogram “DO WYJŒCIA ” montowana w stropie lub w œcianie bocznej n.p nad dzrwiami Oprawa typu LOGICA ATCT 24W SE 1P + SIGN 2S ; wraz z Ÿród³em œwiat³a oraz piktogram “DO WYJŒCIA ” Oprawa typu LOGICA ATCT 24W SE 1P ; wraz z Ÿród³em œwiat³a , montowana w stropie lub w œcianie bocznej Oprawa typu LOGICA ATCT 11W SE 1P ; AUTODIMMING wraz z Ÿród³em œwiat³a , montowana w zadaszeniu wejœcia do budynku Wy³¹cznik pod tynkowy 1 biegunowy typ LIP 1000F PROJEKT PRZEBUDOWY BUDYNKU M NA PORADNIE SPECJALISTYCZNE W RAMACH Instalacja oœwietlenia podstawowego ZADANIA PN. : ZOZ W LUBACZOWIEBUDOWA SZPITALA REJONOWEGO i ewakuacji . Piêtro I W LUBACZOWIE Tytu³: Przycisk pod tynkowy “ŒWIAT£O” typ LIP 1010F Wy³¹cznik pod tynkowy œwiecznikowy typ LIP 5000F Wy³¹cznik pod tynkowy schodowy typ LIP 6000F Wy³¹cznik pod tynkowy krzy¿owy typ LIP 7000 Imiê i nazwisko: Firma Budowlano-konsultingowa P.B.P.H. ML-BUD s.c. nr. upraw. Specjalnoœæ Projektowal: in¿. Piotr Czelny 552/79 Elektryczna Sprawdzi³ : in¿. Maciej Zarudzki 235/98 Elektryczna RYSUNEK WYKONANO W LEGALNEJ WERSJI PROGRAMU COREL 11 Seria DR11WRP-1938961-SUE Podpis: Rewizja Data 894/06/09 E .1 EW1 Oznaczenia graficzne A.1 EW3 A.1 EW3 EW3 A.1 Oprawa zwieszona do oko³o 2,80m Skala 07.2009 Bran¿a E Faza P.B.W Rys.nr. E - 18 19 Ob nr 6 Rozdzielnia RA-1 400/230V A Ob nr 7 Ob. nr 7 A Uwagi montazowe 1 . Instalacje gniazd wtyczkowych nale¿y prowadziæ w bruzdach pod tynk do gniazd osadzonych pod tynk 2. Instalacjê gniazd wtyczkowych wykonaæ przewodem YDY ¿o 3 x 2,5 obwody prowadzone pod tynk Oznaczenia graficzne A Gniazdo wtyczkowe typu GWP-132PF zasilanie mocowane 1,6 m nad posadzk¹ w odleg³oœci oko³o 0,7-0,8 m od umywalki B Gniazdo wtyczkowe typu GWP-132PF w pomieszczeniu zaplecza socjalnego mocowane pod szafkami oraz nad blatem sto³u Tytu³: Instalacja gniazd wtyczkowych Piêtro I Imiê i nazwisko: Firma Budowlano-konsultingowa P.B.P.H. ML-BUD s.c. PROJEKT PRZEBUDOWY BUDYNKU M NA PORADNIE SPECJALISTYCZNE W RAMACH ZADANIA PN. : ZOZ W LUBACZOWIEBUDOWA SZPITALA REJONOWEGO W LUBACZOWIE nr. upraw. Specjalnoœæ Projektowal: in¿. Piotr Czelny 552/79 Elektryczna Sprawdzi³ : in¿. Maciej Zarudzki 235/98 Elektryczna RYSUNEK WYKONANO W LEGALNEJ WERSJI PROGRAMU COREL 11 Seria DR11WRP-1938961-SUE Podpis: Rewizja Data 894/06/09 Gniazdo wtyczkowe typu GWP-132PF mocowane 0,2 m nad posadzk¹ Skala 07.2009 Bran¿a E Faza P.B.W Rys.nr. E - 19 A.1 A.2 A.2 EW3 A.1 EW1 Oprawa zwieszona do oko³o 2,80m A.1 EW3 A.1 EW3 EW3 A.1 A.1 A.1 Ob. nr 3 A.1 A.3 A.3 EW3 A.1 Ob nr 3 EW3 A.3 A.1 A.1 Rozdzielnia RA-2 400/230V EW2 Ob nr 4 A.2 EW3 A.1 Ob nr 2 A.3 Obwody nr 11 i 13 rozdzielnia RT A.1 A.3 EW1 Ob nr 2 Oprawa nastropowa typu GEMMA nr kat 11-013/218 CA : 2 x 18W wraz z Ÿród³em œwiat³a Fluo T8 TRIMAX G13 A.4 Oprawa nastropowa typu LEADER nr kat 21-043/218 : 2 x 18W wraz z Ÿród³em œwiat³a Fluo T8 TRIMAX G13 EW3 EW4 Oprawa zwieszona do oko³o 2,80m , IP65 ; wymiar 670x170x95 mm Obwody nr 31 i 33 zasilane z rozdzielni g³ównej RG zabudowanej na parterze budynku Oprawa typu CARINA 2 254+ 2QR111 ; wraz z Ÿród³em œwiat³a Oprawa typu - nr policyjny EW2 A.1 A.2 Oprawa nastropowa typu GEMMA nr kat 11-013/218 CA : 2 x 18W , IP20 ; wymiar 638x336x80 mm wraz z Ÿród³em œwiat³a Fluo T8 TRIMAX G13 + modu³ AW 1,5 godzinny EW1 EW3 , IP20 ; wymiar 638x336x80 mm A.3 E .1 EW3 , IP20 ; wymiar 1248x336x80 mm Oprawa typu LOGICA ATCT 8W SE 1P ; wraz z Ÿród³em œwiat³a oraz piktogram “DO WYJŒCIA ” montowana w stropie lub w œcianie bocznej n.p nad dzrwiami Oprawa typu LOGICA ATCT 24W SE 1P + SIGN 2S ; wraz z Ÿród³em œwiat³a oraz piktogram “DO WYJŒCIA ” Oprawa typu LOGICA ATCT 24W SE 1P ; wraz z Ÿród³em œwiat³a , montowana w stropie lub w œcianie bocznej Oprawa typu LOGICA ATCT 11W SE 1P ; AUTODIMMING wraz z Ÿród³em œwiat³a , montowana w zadaszeniu wejœcia do budynku Wy³¹cznik pod tynkowy 1 biegunowy typ LIP 1000F PROJEKT PRZEBUDOWY BUDYNKU M NA PORADNIE SPECJALISTYCZNE W RAMACH Instalacja oœwietlenia podstawowego ZADANIA PN. : ZOZ W LUBACZOWIEBUDOWA SZPITALA REJONOWEGO i ewakuacji . Piêtro II W LUBACZOWIE Tytu³: Przycisk pod tynkowy “ŒWIAT£O” typ LIP 1010F Wy³¹cznik pod tynkowy œwiecznikowy typ LIP 5000F Imiê i nazwisko: Wy³¹cznik pod tynkowy schodowy typ LIP 6000F Wy³¹cznik pod tynkowy krzy¿owy typ LIP 7000 Uwagi monta¿owe 1. Oprawa E1 zwieszona , wysokoœæ monta¿u oko³o H = 2,2m 2. Instalacje wykonaæ pod tynk , zejœcia do wy³¹czników wykonaæ pod tynk 3. Wysokoœæ monta¿u wy³¹czników : - wy³¹czniki w WC 1,2 nad posadzk¹ - wy³¹czniki oœwietlenia 1,3 m nad posadzk¹ 4. Obwody oœwietlenia nale¿y wykonaæ przewodem YDY ¿o 5 x1,5 oraz YDY ¿o 3 x 1,5 Firma Budowlano-konsultingowa P.B.P.H. ML-BUD s.c. nr. upraw. Specjalnoœæ Projektowal: in¿. Piotr Czelny 552/79 Elektryczna Sprawdzi³ : in¿. Maciej Zarudzki 235/98 Elektryczna RYSUNEK WYKONANO W LEGALNEJ WERSJI PROGRAMU COREL 11 Seria DR11WRP-1938961-SUE Podpis: Rewizja Data 894/06/09 A.2 Oprawa nastropowa typu GEMMA nr kat 11-013/258 CA : 2 x 36W wraz z Ÿród³em œwiat³a Fluo T8 TRIMAX G13 EW1 A.1 A.1 A.1 EW3 EW3 Oznaczenia graficzne A.1 Oprawa zwieszona do oko³o 2,80m Skala 07.2009 Bran¿a E Faza P.B.W Rys.nr. E - 20 Ob nr 6 Rozdzielnia RA-2 400/230V Ob nr 7 A Ob. nr 7 A Uwagi montazowe 1 . Instalacje gniazd wtyczkowych nale¿y prowadziæ w bruzdach pod tynk do gniazd osadzonych pod tynk 2. Instalacjê gniazd wtyczkowych wykonaæ przewodem YDY ¿o 3 x 2,5 obwody prowadzone pod tynk A Gniazdo wtyczkowe typu GWP-132PF zasilanie mocowane 1,6 m nad posadzk¹ w odleg³oœci oko³o 0,7-0,8 m od umywalki B Gniazdo wtyczkowe typu GWP-132PF w pomieszczeniu zaplecza socjalnego mocowane pod szafkami oraz nad blatem sto³u Tytu³: Instalacja gniazd wtyczkowych Piêtro II Gniazdo wtyczkowe typu GWP-132PF mocowane 0,2 m nad posadzk¹ Imiê i nazwisko: Firma Budowlano-konsultingowa P.B.P.H. ML-BUD s.c. PROJEKT PRZEBUDOWY BUDYNKU M NA PORADNIE SPECJALISTYCZNE W RAMACH ZADANIA PN. : ZOZ W LUBACZOWIEBUDOWA SZPITALA REJONOWEGO W LUBACZOWIE nr. upraw. Specjalnoœæ Projektowal: in¿. Piotr Czelny 552/79 Elektryczna Sprawdzi³ : in¿. Maciej Zarudzki 235/98 Elektryczna RYSUNEK WYKONANO W LEGALNEJ WERSJI PROGRAMU COREL 11 Seria DR11WRP-1938961-SUE Podpis: Rewizja Data 894/06/09 Oznaczenia graficzne Skala 07.2009 Bran¿a E Faza P.B.W Rys.nr. E - 21 A A A Przy³¹czenie metaliczne projektowanego uziomu otokowego do uziomu istniej¹cego A Do g³ównej szyny wyrównawczej przy rozdzielni 400/230V RG Do lokalnej szyny wyrównawczej przy rozdzielni 400/230V RT Pom. techniczne Przy³¹czenie metaliczne projektowanego uziomu otokowego do uziomu istniej¹cego A A Przy³¹czenie metaliczne projektowanego uziomu otokowego do uziomu istniej¹cego A Czêœæ istniej¹cego uziomu do zdemontowania przy wykonywaniu prac budowlanych Oznaczenia graficzne . istniej¹cy uziom otokowy budynku wykonany bednarka ocynkowana osadzona w ziemi Tytu³: Instalacja odgromowa -dach Imiê i nazwisko: Firma Budowlano-konsultingowa P.B.P.H. ML-BUD s.c. PROJEKT PRZEBUDOWY BUDYNKU M NA PORADNIE SPECJALISTYCZNE W RAMACH ZADANIA PN. : ZOZ W LUBACZOWIEBUDOWA SZPITALA REJONOWEGO W LUBACZOWIE nr. upraw. Specjalnoœæ Projektowal: in¿. Piotr Czelny 552/79 Elektryczna Sprawdzi³ : in¿. Maciej Zarudzki 235/98 Elektryczna RYSUNEK WYKONANO W LEGALNEJ WERSJI PROGRAMU COREL 11 Seria DR11WRP-1938961-SUE Podpis: Rewizja Data 894/06/09 projektowany uziom otokowy budynku wykonany bednarka ocynkowana FeZn 30 x 5 osadzona w ziemi na g³êbokoœci 0,8m w odleg³oœci 1,2 od fundamentu Skala 07.2009 Bran¿a E Faza P.B.W Rys.nr. E - 22 Szczegó³ A Dach krytu blach¹ stalowa trapezow¹ Przy³¹czenie masy dachu przewodem stalowym ocynkowany o œrednicy 8 mm Zacisk krzy¿owy 01081 Po³¹czenie masy rynien do zwodu poziomego - po³¹czenie wykonane przez zacisk krzy¿owy oraz do rynny zaciskiem rynnowym nr 10011 Warstwa ocieplenia budynku Zwód pionowy wykonany z drutu stalowego ocynkowanego prowadzonego w rurze z PCV osadzonej w warstwie ocieplenia Skrzynka probiercza na elewacji nr 30020 - po³¹czenie uziomu otokowego budynku Odcinek bednarki 20 x 4mm Tytu³: Szczegó³ wykonania zejœcia zwodem pionowym do uziomu otokowego Imiê i nazwisko: Firma Budowlano-konsultingowa P.B.P.H. ML-BUD s.c. PROJEKT PRZEBUDOWY BUDYNKU M NA PORADNIE SPECJALISTYCZNE W RAMACH ZADANIA PN. : ZOZ W LUBACZOWIEBUDOWA SZPITALA REJONOWEGO W LUBACZOWIE nr. upraw. Specjalnoœæ Projektowal: in¿. Piotr Czelny 552/79 Elektryczna Sprawdzi³ : in¿. Maciej Zarudzki 235/98 Elektryczna RYSUNEK WYKONANO W LEGALNEJ WERSJI PROGRAMU COREL 11 Seria DR11WRP-1938961-SUE Podpis: Rewizja Data 894/06/09 Przy³¹czenie zwodu do uziomu otokowego - wykonane przez lutowanie Skala 07.2009 Bran¿a E Faza P.B.W Rys.nr. E - 23 L1,L2,L3, 1 P303 30mA 25A S301 B,16A S301 B,16A S303 B,20A K1 SM320 230V;2z 2 4 N N 4 K3 AZ-B 5 5,0 11 13 14 Parter 0,5 Piêtra 0,8 Parter - Rozdzielnia 400/2330V RT pomieszczenie techniczne Do uziomu otokowy budynku ( bednarka prowadzona od uziomu otokowego rys nr E-22 ) Imiê i nazwisko: Firma Budowlano-konsultingowa P.B.P.H. ML-BUD s.c. l 15 Oœwietlenie wejœæ D do budyn Obwody przycisków ster. oœwietleniem na klatce schodowej Tytu³: LgY 1 x 6 ( mostki ) YDY ¿o 3 x 1,5 12 Oœwietlenie klatki schodowej wejœcie D Zasilanie obwodów oœwietlenia , klatki schodowej 6 Oœwietlenie wejœcia Ddo budynku oraz nr. policyjny 2,0 10 YDY ¿o 3 x 1,5 4 Gniazda wtyczkowe 400/230V pom. technicznego Przeznaczenie Oœwietlenie pom. technicznego 0,5 3 Gniazda wtyczkowe 230V pom. technicznego LgY 1 x 10 k. ¿ó³tozielony Moc zainstal. 2 YDY ¿o 3 x 2,5 PE 5 B YDY ¿o 3 x 1,5 YDY ¿o 5 x 2,5 YDY ¿o 5 x 1,5 4 N Nr. pola 1 K2 0047 07 1 - 10 min YDY ¿o 5x4 YDY ¿o 3 x 2,5 YDY ¿o 3 x 2,5 Uk³ad sieciowy: w sieci zasilaj¹cej TN - C - S w sieci odbiorczej TN - C - S YDY ¿o 5 x 1,5 L Lokalna szyna wyrównawcza budynku C.O. regulatory , liczniki , ruroci¹gi wody zimnej i ciep³ej A-0-B 3x L 303 LgY 1 x 10 k. ¿ó³tozielony Zasilanie z rozdzielni 400/230V RG - pole nr 9 ; YDY¿o 5 x 4 , - zabezpieczenie bezpiecznik zw³oczny 25A FR 303 100A 3 FR3 L3 Piêtra - 0,4 - PROJEKT PRZEBUDOWY BUDYNKU M NA PORADNIE SPECJALISTYCZNE W RAMACH ZADANIA PN. : ZOZ W LUBACZOWIEBUDOWA SZPITALA REJONOWEGO W LUBACZOWIE nr. upraw. Specjalnoœæ Projektowal: in¿. Piotr Czelny 552/79 Elektryczna Sprawdzi³ : in¿. Maciej Zarudzki 235/98 Elektryczna RYSUNEK WYKONANO W LEGALNEJ WERSJI PROGRAMU COREL 11 Seria DR11WRP-1938961-SUE Podpis: Rewizja Data Skala 07.2009 Bran¿a E Faza Rys.nr. P.B.W. E-24 894/06/09 P302 30mA 25A S301 B,10A S 301 B,10A S 301 B,10A Czujnik zmierzchowy 0 oko³o 1.5 m PE S,301,B ,10A 12,13 FR3 A-0-B 10,11 K3 AZ-B Obudowa podtynkowa Ekinoxe TX 2 x 18 wymiar : - wnêki 404 x 402 x 100mm - rozdzielni 460 x 425 x 96 mm LgY 1 x 10mm u³o¿ony w scianie z rozdzielni do szyny Lokalna szyna wyrównawcza typu DEHN MINI 0,3m 5 4 Szkic monta¿u rozdzielni i szyny wyrównawczej S,301,B ,10A S303,B20A 3 X 4 x ZUG10 P304 30mA 25A 2 S301,B,16A 1 S301,B,16A 0 K1 SM320 ;230V;2z K2 0047 07;1-10 min 3 x L303 P302 30mA 25A S,301,B ,10A FR 303 100A S301,B,10A Rozmieszczenie aparatów w obudowie rozdzielni 14,15 Uwagi monta¿owe . 1 .Pod rozdzielnia oko³o 0,30 m nad posadzk¹ nale¿y osadziæ szynê wyrównawcza 2. Rozdzielniê nale¿y odrutowaæ przewodem : - typu LgY 1 x 4 - pole zasilaj¹ce - typu LgY 1 x 4 - pola 5 - typu LgY 1 x 2,5 - pola odp³ywowe 4. Kolory przewodów zgodnie z PNE 6. Odejœcie z ochronnika do szyny wyrównawczej wykonaæ przewodem LgY 1 x 10 Tytu³: Rozdzielnia 400/2330V RT pomieszczenie techniczne Elewacja 7. Przewody wyprowadzone do góry u³o¿yæ pod tynk Imiê i nazwisko: Firma Budowlano-konsultingowa P.B.P.H. ML-BUD s.c. PROJEKT PRZEBUDOWY BUDYNKU M NA PORADNIE SPECJALISTYCZNE W RAMACH ZADANIA PN. : ZOZ W LUBACZOWIEBUDOWA SZPITALA REJONOWEGO W LUBACZOWIE nr. upraw. Specjalnoœæ Projektowal: in¿. Piotr Czelny 552/79 Elektryczna Sprawdzi³ : in¿. Maciej Zarudzki 235/98 Elektryczna RYSUNEK WYKONANO W LEGALNEJ WERSJI PROGRAMU COREL 11 Seria DR11WRP-1938961-SUE Podpis: Rewizja Data Skala 07.2009 Bran¿a E Faza Rys.nr. P.B.W. E-25 894/06/09 5. Koñcówki przewodów linkowych okuæ zaciskami rurkowymi