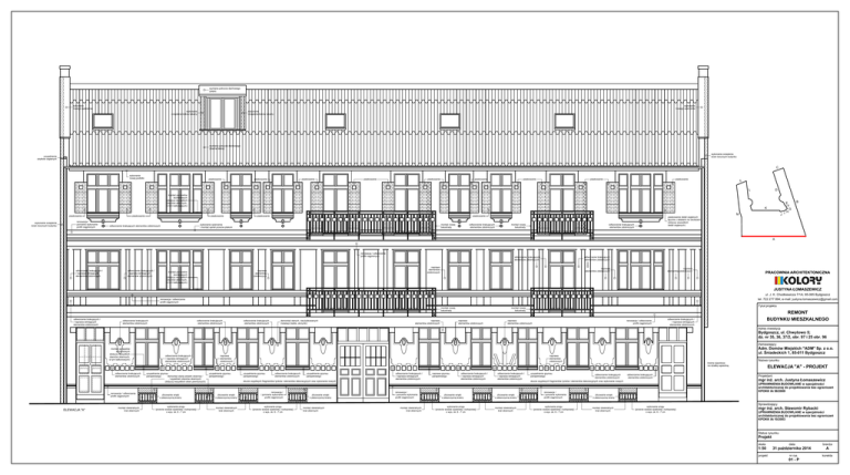
REMONT BUDYNKU MIESZKALNEGO ELEWACJA "A"

Transkrypt

REMONT BUDYNKU MIESZKALNEGO ELEWACJA "A"
wymiana pokrycia dachowego
(papa)
wykonanie
nowego opierzenia
wykonanie
nowego opierzenia
wykonanie
ocieplenia boków lukarny
wykonanie
ocieplenia boków lukarny
wymiana pokrycia dachowego
(blacha falista)
wykonanie ocieplenia
ścian bocznych budynku
uzupełnienie
ubytków ceglanych
C
wykonanie
nowej podbitki
piaskowanie
piaskowanie
piaskowanie
piaskowanie
piaskowanie
piaskowanie
piaskowanie
piaskowanie
piaskowanie
Ł
L
montaż parapetów
aluminiowych
(dotyczy wszystkich
otworów okiennych,
w tym balkonowych)
piaskowanie
wykonanie ocieplenia
ścian bocznych budynku
renowacja /
ponowne wykonanie
profili ciągnionych
E
F
G
H
I
J
K
piaskowanie
piaskowanie
piaskowanie
piaskowanie
wykonanie opierzenia
i montaż spirali przeciw ptakom
odtworzenie brakujących elementów zdobniczych
D
montaż nowej
balustrady
odtworzenie brakujących
elementów zdobniczych
montaż nowej
balustrady
M
piaskowanie detali ceglanych
łącznie z detalami na ościeżach
(dotyczy wszystkich
detali ceglanych)
odtworzenie brakujących
elementów zdobniczych
B
A
renowacja / odtworzenie
profili ciągnionych
odtworzenie brakujących /
/ naprawa istniejących
elementów zdobniczych
odtworzenie brakujących /
/ naprawa istniejących
elementów zdobniczych
odtworzenie brakujących
elementów zdobniczych
naprawa
elementów
zdobniczych
naprawa
elementów
zdobniczych
montaż parapetów
aluminiowych
(dotyczy wszystkich
otworów okiennych,
w tym balkonowych)
odtworzenie brakujących
elementów zdobniczych
naprawa
elementów zdobniczych
naprawa
elementów zdobniczych
PRACOWNIA ARCHITEKTONICZNA
JUSTYNA ŁOMASZEWICZ
ul. J. K. Chodkiewicza 7/1A; 85-065 Bydgoszcz
tel. 722 277 894; e-mail: [email protected]
renowacja / odtworzenie
profili ciągnionych
montaż nowej
balustrady
odtworzenie brakujących /
/ naprawa istniejących
elementów zdobniczych
odtworzenie brakujących
elementów zdobniczych
odtworzenie brakujących
elementów zdobniczych
odtworzenie brakujących
elementów zdobniczych
demontaż starych, nieużytkowanych
instalacji (kable, skrzynki)
naprawa
elementów zdobniczych
Tytuł projektu
montaż nowej
balustrady
naprawa
elementów zdobniczych
naprawa
elementów zdobniczych
renowacja / odtworzenie
profili ciągnionych
REMONT
BUDYNKU MIESZKALNEGO
odtworzenie brakujących /
/ naprawa istniejących
elementów zdobniczych
Adres inwestycji
Bydgoszcz, ul. Chwytowo 5;
dz. nr 35, 36, 37/2, obr. 97 i 25 obr. 96
Zamawiający
montaż parapetów
aluminiowych
(dotyczy wszystkich
otworów okiennych,
w tym balkonowych)
odtworzenie brakujących
elementów zdobniczych
renowacja / odtworzenie
profili ciągnionych
ELEWACJA "A"
montaż otwieralnych
krat okiennych
odtworzenie brakujących /
/ naprawa istniejących
elementów zdobniczych
uzupełnienie gzymsu
demontaż starej stolarki okiennej /
parapetowego
/ wypełnień otworów okiennych
(dotyczy wszystkich okien piwnicznych)
zlicowanie wnęki
z płaszczyzną ściany
wykonanie progu
(przeciw wodzie opadowej i roztopowej)
o wys. ok. 6 - 7 cm
naprawa
elementów
zdobniczych
uzupełnienie gzymsu
parapetowego
naprawa
elementów
zdobniczych
uzupełnienie gzymsu
parapetowego
odtworzenie brakujących
elementów zdobniczych
uzupełnienie gzymsu
parapetowego
skucie osypliwych fragmentów tynków i elementów dekoracyjnych oraz wykonanie nowych
zlicowanie wnęki
z płaszczyzną ściany
montaż otwieralnych
krat okiennych
Adm. Domów Miejskich "ADM" Sp. z o.o.
ul. Śniadeckich 1, 85-011 Bydgoszcz
renowacja /
/ ponowne wykonanie
profili ciągnionych
wykonanie progu
(przeciw wodzie opadowej i roztopowej)
o wys. ok. 6 - 7 cm
zlicowanie wnęki
z płaszczyzną ściany
montaż otwieralnych
krat okiennych
odtworzenie brakujących /
/ naprawa istniejących
elementów zdobniczych
renowacja /
/ ponowne wykonanie
profili ciągnionych
montaż otwieralnych
krat okiennych
naprawa gzymsu
parapetowego
odtworzenie brakujących /
/ naprawa istniejących
elementów zdobniczych
zlicowanie wnęki
z płaszczyzną ściany
wykonanie progu
(przeciw wodzie opadowej i roztopowej)
o wys. ok. 6 - 7 cm
odtworzenie brakujących /
/ naprawa istniejących
elementów zdobniczych
zlicowanie wnęki
z płaszczyzną ściany
montaż otwieralnych
krat okiennych
uzupełnienie gzymsu
parapetowego
brama wjazdowa
na działkę sąsiednią
odtworzenie brakujących
elementów zdobniczych
odtworzenie brakujących
elementów zdobniczych
skucie osypliwych fragmentów tynków i elementów dekoracyjnych oraz wykonanie nowych
renowacja /
/ ponowne wykonanie
profili ciągnionych
wykonanie progu
(przeciw wodzie opadowej i roztopowej)
o wys. ok. 6 - 7 cm
Nazwa rysunku
ELEWACJA "A" - PROJEKT
Projektant
mgr inż. arch. Justyna Łomaszewicz
UPRAWNIENIA BUDOWLANE w specjalności
architektonicznej do projektowania bez ograniczeń
KPOKK IA 58/2009
zlicowanie wnęki
z płaszczyzną ściany
montaż otwieralnych
krat okiennych
wykonanie progu
(przeciw wodzie opadowej i roztopowej)
o wys. ok. 6 - 7 cm
Sprawdzający
mgr inż. arch. Sławomir Rybacki
UPRAWNIENIA BUDOWLANE w specjalności
architektonicznej do projektowania bez ograniczeń
KPOKK IA 10/2003
Status rysunku
Projekt
skala
data
branża
1:50
31 października 2014
A
projekt
nr rys.
01 - P
korekta