PLAN INSTALACJI ODGROMOWEJ - RZUT DACHU

Transkrypt

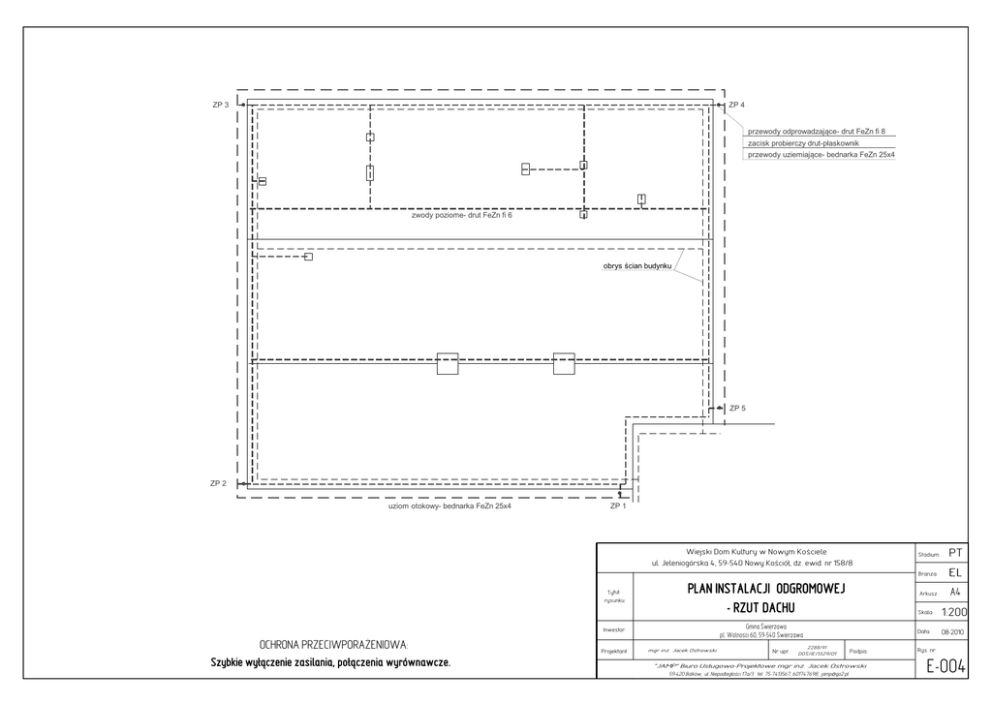
PLAN INSTALACJI ODGROMOWEJ - RZUT DACHU
ZP 3
ZP 4
przewody odprowadzające- drut FeZn fi 8
zacisk probierczy drut-płaskownik
przewody uziemiające- bednarka FeZn 25x4
zwody poziome- drut FeZn fi 6
obrys ścian budynku
ZP 5
ZP 2
uziom otokowy- bednarka FeZn 25x4
ZP 1
Wiejski Dom Kultury w Nowym Kościele
Stadium:
PT
Branża:
EL
Arkusz:
A4
ul. Jeleniogórska 4, 59-540 Nowy Kościół, dz. ewid. nr 158/8
Tytuł
rysunku:
PLAN INSTALACJI ODGROMOWEJ
- RZUT DACHU
Gmina Świerzawa
pl. Wolnosci 60, 59-540 Świerzawa
Inwestor:
OCHRONA PRZECIWPORAŻENIOWA:
Szybkie wyłączenie zasilania, połączenia wyrównawcze.
Projektant:
mgr inż. Jacek Ostrowski
Nr upr.:
2288/91
DOŚ/IE/1329/01
Podpis:
"JAMP" Biuro Usługowo-Projektowe mgr inż. Jacek Ostrowski
59-420 Bolków, ul. Niepodległości 17a/3 tel. 75-7413567, 601747698, [email protected]
Skala:
1:200
Data:
08-2010
Rys. nr:
E-004