Schody terenowe SCH 2_Etap_I_31

Transkrypt

Schody terenowe SCH 2_Etap_I_31
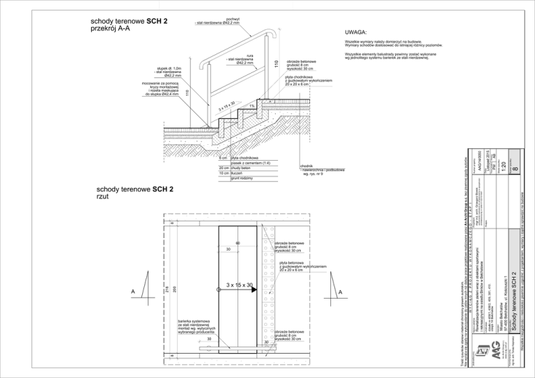
200
216
A
Projektant:
8
30
6 cm
płyta chodnikowa
piasek z cementem (1:4)
20 cm chudy beton
10 cm tłuczeń
grunt rodzimy
30
60
barierka systemowa
ze stali nierdzewnej
montaż wg. wytycznych
wybranego producenta
30
chodnik
- nawierzchnia i podbudowa
wg. rys. nr 9
schody terenowe SCH 2
rzut
obrzeże betonowe
grubość 8 cm
wysokość 30 cm
płyta betonowa
z guzkowatym wykończeniem
20 x 20 x 6 cm
3 x 15 x 30
A
obrzeże betonowe
grubość 8 cm
wysokość 30 cm
Schody terenowe SCH 2
Tytuł rysunku:
Miasto Bełchatów
97-400 Bełchatów, ul. Kościuszki 1
Podpis:
Wszelkie niezgodności i nieścisłości pisemnie uzgodnić z projektantem; wymiary i rzędne sprawdzić na budowie
mgr inż. arch. Tomasz Kacprowicz
Koordynacja proj.:
An Archi Group s.c.
www.a-ag.com.pl
Inwestor:
działki nr 408/1, 408/2, 409, 381, 410.
obręb 14 Bełchatów
Lokalizacja:
uprawnienia budowlane do projektowania w specjalności
architektonicznej nr UAN-VI-1227/315/87
8
Numer rysunku:
1:20
Skala rysunku:
PW
AB
Faza projektu: Branża:
Listopad 2015
Data:
AAG/14/0050
Numer projektu:
0
mgr inż. arch. Grzegorz Borek
x3
Rewitalizacja terenów zieleni wraz z obiektami sportowymi
i rekreacyjnymi na osiedlu Binków w Bełchatowie
15
Nazwa zadania:
3x
110
słupek dł. 1,0m
- stal nierdzewna
Ø42,2 mm
obrzeże betonowe
grubość 8 cm
wysokość 30 cm
Jednostka proj.:
mocowanie za pomocą
kryzy montażowej
i rozeta maskująca
do słupka Ø42,4 mm
110
rura
- stal nierdzewna
Ø42,2 mm
Treść rysunków stanowi materiał chroniony prawem autorskim.
Nie wyraża się zgody na wykorzystanie do celów innych niż dalsze prace projektowe realizowane przez An Archi Group s.c. bez pisemnej zgody autorów.
WYCIĄG Z PROJEKTU WYKONAWCZEGO - ETAP I
8
schody terenowe SCH 2
przekrój A-A
pochwyt
- stal nierdzewna Ø42,2 mm
UWAGA:
Wszelkie wymiary należy domierzyć na budowie.
Wymiary schodów dostosować do istniącej różnicy poziomów.
Wszystkie elementy balustrady powinny zostać wykonane
wg jednolitego systemu barierek ze stali nierdzewnej.
płyta chodnikowa
z guzkowatym wykończeniem
20 x 20 x 6 cm
1%