MegaCAD-OJ BUD OSTATECZNY 3.PRT - BIP

Transkrypt

MegaCAD-OJ BUD OSTATECZNY 3.PRT - BIP
2
2
2
2
2
2
2
1
1
2
2
2
3
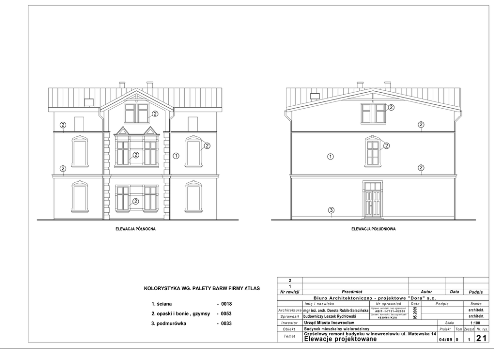
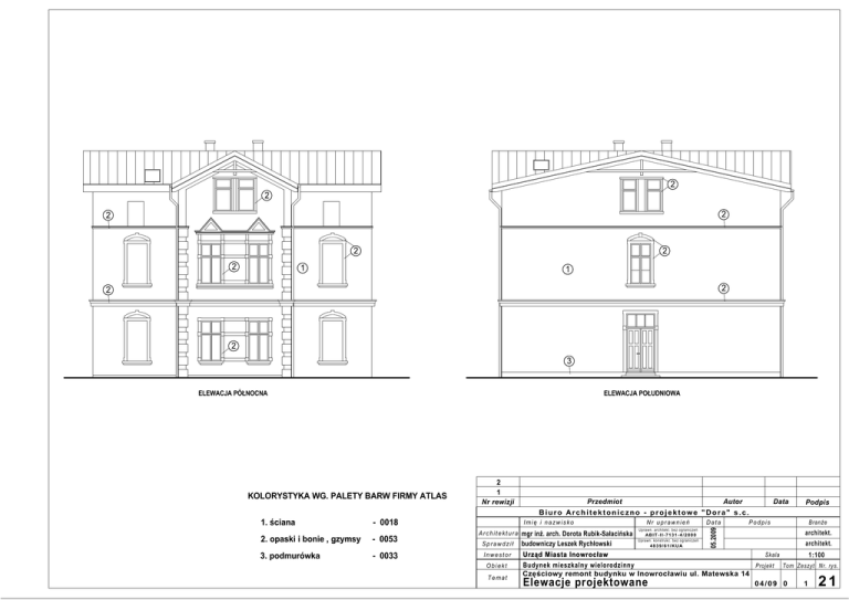
ELEWACJA PÓŁNOCNA
ELEWACJA POŁUDNIOWA
1. ściana
2. opaski i bonie , gzymsy
3. podmurówka
- 0018
- 0053
- 0033
Przedmiot
Autor
Biuro Architektoniczno - projektowe "Dora" s.c.
Imię i nazwisko
A r c h i t e k t u r a mgr inŜ. arch. Dorota Rubik-Sałacińska
Nr uprawnień
Data
Uprawn. architekt. bez ograniczeń
05.2009
KOLORYSTYKA WG. PALETY BARW FIRMY ATLAS
2
1
Nr rewizji
ABIT -I I-71 31-4 /200 0
Uprawn. konstrukc. bez ograniczeń
Podpis
Data
Podpis
BranŜe
architekt.
architekt.
Sprawdził
budowniczy Leszek Rychłowski
Inwestor
Urząd Miasta Inowrocław
Skala
1:100
Budynek mieszkalny wielorodzinny
Projekt Tom Zeszyt Nr. rys.
Częściowy remont budynku w Inowrocławiu ul. Matewska 14
04/09 0
1
Obiekt
Temat
Elewacje projektowane
4839/61/KUA
21