Drukuj broszurę

Transkrypt

Drukuj broszurę
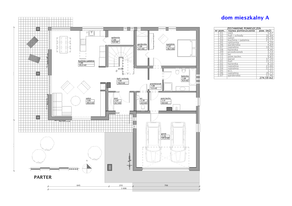
dom mieszkalny A
spiżarnia
1.05
4,4 m2
garderoba
1.06
4,7 m2
sypialnia
1.07
18,7 m2
kuchnia i jadalnia
1.04
23,2 m2
985
±0,00
łazienka
1.08
8,5 m2
hall i schody
1.02
16,8 m2
salon
1.03
29,4 m2
sień
1.01
5,7 m2
przedsionek
1.09
3,5 m2
wc
1.10
2,5 m2
pom.techn.
1.11
9,8 m2
540
garaż
1.12
37,2 m2
N
5
4
3
2
1
0
PARTER
645
255
1 606
706
nr pom..
1.01
1.02
1.03
1.04
1.05
1.06
1.07
1.08
1.09
1.10
1.11
1.12
2.01
2.02
2.03
2.04
2.05
2.06
2.07
ZESTAWIENIE POMIESZCZEŃ
nazwa pomieszczenie
pow. (m2)
sień
5,67
hall i schody
16,84
salon
29,38
kuchnia i jadalnia
23,17
spiżarnia
4,39
garderoba
4,69
sypialnia
18,70
łazienka
8,46
przedsionek
3,54
wc
2,49
pom.techn.
9,83
garaż
37,20
hall
15,15
łazienka
8,10
sypialnia
23,66
sypialnia
22,22
w.c.
1,51
sypialnia
26,73
garderoba
12,86
274,59 m2
dom mieszkalny A
10
9
7
8
6
garderoba
2.07
12,9 m2
5
11
4
12
3
13
2
1
14
15
sypialnia
2.03
23,7 m2
705
16
17
+3,00
sypialnia
2.06
26,7 m2
hall
2.01
15,1 m2
łazienka
2.02
8,1 m2
w.c.
2.05
1,5 m2
543
sypialnia
2.04
22,2 m2
N
5
4
3
2
1
0
PODDASZE
903
552
nr pom..
1.01
1.02
1.03
1.04
1.05
1.06
1.07
1.08
1.09
1.10
1.11
1.12
2.01
2.02
2.03
2.04
2.05
2.06
2.07
ZESTAWIENIE POMIESZCZEŃ
nazwa pomieszczenie
pow. (m2)
sień
5,67
hall i schody
16,84
salon
29,38
kuchnia i jadalnia
23,17
spiżarnia
4,39
garderoba
4,69
sypialnia
18,70
łazienka
8,46
przedsionek
3,54
wc
2,49
pom.techn.
9,83
garaż
37,20
hall
15,15
łazienka
8,10
sypialnia
23,66
sypialnia
22,22
w.c.
1,51
sypialnia
26,73
garderoba
12,86
274,59 m2
dom mieszkalny B
sypialnia
1.07
17,1 m2
sypialnia
1.06
14,8 m2
nr pom..
1.01
1.02
1.03
1.04
1.05
1.06
1.07
1.08
1.09
1.10
1.11
1.12
1.13
spiżarnia
1.05
1,5 m2
kuchnia i jadalnia
1.04
24,1 m2
przedsionek
1.09
6,1 m2
hall
1.02
6,3 m2
985
sypialnia
1.08
10,4 m2
±0,00
łazienka
1.11
6,4 m2
pom.techn.
1.12
5,1 m2
sień
1.01
6,3 m2
1 525
wc
1.10
2,1 m2
salon
1.03
29,9 m2
540
garaż
1.13
37,3 m2
N
0
PARTER
706
255
1 606
645
1
2
3
4
5
ZESTAWIENIE POMIESZCZEŃ
nazwa pomieszczenie
pow. (m2)
sień
6,27
hall
6,30
salon
29,93
kuchnia i jadalnia
24,09
spiżarnia
1,52
sypialnia
14,76
sypialnia
17,13
sypialnia
10,40
przedsionek
6,11
wc
2,09
łazienka
6,43
pom.techn.
5,12
garaż
37,32
167,47 m2