A3 - RZUT DACHU

Transkrypt

A3 - RZUT DACHU
+2.96
0.5% Rd 130
0.5% Rd 130
5
1006
7°
642
622
Rs 90
obróbka blacharska
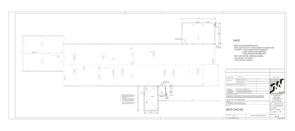
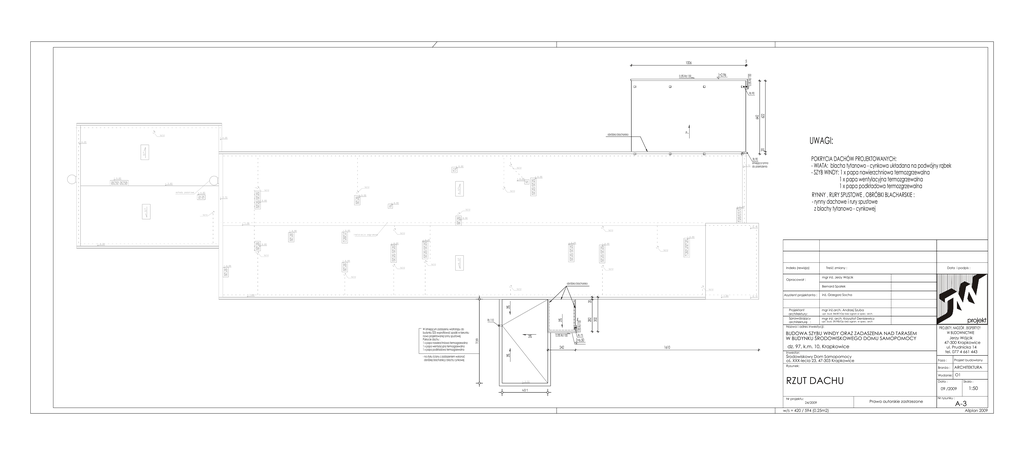
UWAGI:
20
%C12
POKRYCIA DACHÓW PROJEKTOWANYCH:
- WIATA: blacha tytanowo - cynkowa układana na podwójny rąbek
- SZYB WINDY: 1 x papa nawierzchniowa termozgrzewalna
1 x papa wentylacyjna termozgrzewalna
1 x papa podkładowa termozgrzewalna
RYNNY , RURY SPUSTOWE , OBRÓBKI BLACHARSKIE :
- rynny dachowe i rury spustowe
z blachy tytanowo - cynkowej
Rs 90
istniejąca rynna
do przełożenia
%C12
%C12
%C12
%C12
%C12
%C12
%C12
%C12
%C12
%C12
%C12
%C12
Indeks (rewizja)
%C12
%C12
Opracował :
obróbka blacharska
%C12
Data i podpis :
Treść zmiany :
mgr inż. Jerzy Wójcik
Bernard Spałek
%C12
inż. Grzegorz Socha
W istniejącym zadaszeniu wiatrołapu do
budynku ŚDS wyprofilować spadki w kierunku
nowo projektowanej rynny spustowej
Pokrycie dachu :
1 x papa nawierzchniowa termozgrzewalna
1 x papa wentylacyjna termozgrzewalna
1 x papa podkładowa termozgrzewalna
0.5% Rd 100
242
3%
- na styku ściany z zadaszeniem wykonać
obróbkę blacharską z blachy cynkowej
3%
mgr inż.arch. Andrzej Szuba
Projektant
upr. bud. 84/87/Op bez ogran.w spec. arch.
architektury:
Sprawdzający
mgr inż. arch. Krzysztof Denisiewicz
upr. bud. 39/98/Op bez ogran. w spec. arch
architekturę :
Nazwa i adres inwestycji:
282
302
3%
Rs 110
0.5% Rd 100
3%
20
Asystent projektanta :
BUDOWA SZYBU WINDY ORAZ ZADASZENIA NAD TARASEM
W BUDYNKU ŚRODOWISKOWEGO DOMU SAMOPOMOCY
Rs 75
+6.50
1610
dz. 97, k.m. 10, Krapkowice
Inwestor:
Środowiskowy Dom Samopomocy
oś. XXX-lecia 23, 47-303 Krapkowice
Rysunek:
RZUT DACHU
Nr projektu:
24/2009
w/s = 420 / 594 (0.25m2)
PROJEKTY, NADZÓR , EKSPERTYZY
W BUDOWNICTWIE
Jerzy Wójcik
47-300 Krapkowice
ul. Prudnicka 14
tel. 077 4 661 443
Faza :
Projekt budowlany
Branża :
ARCHITEKTURA
Wydanie:
O1
Data :
Skala :
1:50
09 /2009
Prawa autorskie zastrzezone
Nr rysunku :
A-3
Allplan 2009