Transmiter optyczny mo418 Terra, mo428 – instrukcja użytkownika

Transkrypt

Transmiter optyczny mo418 Terra, mo428 – instrukcja użytkownika
Transmiter optyczny mo418 Terra, mo428 – instrukcja użytkownika
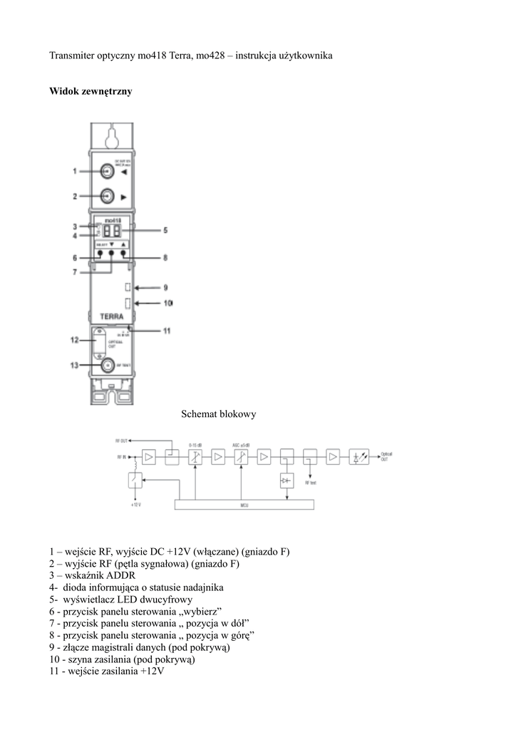
Widok zewnętrzny
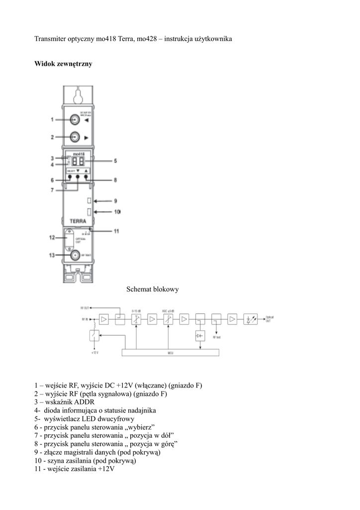
Schemat blokowy
1 – wejście RF, wyjście DC +12V (włączane) (gniazdo F)
2 – wyjście RF (pętla sygnałowa) (gniazdo F)
3 – wskaźnik ADDR
4- dioda informująca o statusie nadajnika
5- wyświetlacz LED dwucyfrowy
6 - przycisk panelu sterowania „wybierz”
7 - przycisk panelu sterowania „ pozycja w dół”
8 - przycisk panelu sterowania „ pozycja w górę”
9 - złącze magistrali danych (pod pokrywą)
10 - szyna zasilania (pod pokrywą)
11 - wejście zasilania +12V
12- wyście optyczne - SC/APC
13– wyjście testowe RF (gniazdo F)
Ustawienia domyślne
A1: Tłumik 0
AL: Automatic Gain Control: OF (Wyłączona)
UE: Napięcie zewnętrzne 12V: OF (Wyłączone)
Konfiguracja:
W celu konfiguracji parametrów urządzenia należy wybrać przycisk SELECT.
Przy pomocy przycisków: 'góra'▲ i 'dół' ▼przełączamy się pomiędzy poszczególnymi
parametrami:
[A1] tłumik sygnału RF: użyj przycisków 'góra'▲ i 'dół' ▼aby ustawić wartość tłumika (0…15 dB,
krok 1 dB)
[AL] AGC gain: ▼ OF - AGC jest wyłączone;
▲ ON AGC – AGC jest włączone.
Automatyczne wyrównanie poziomu sygnału RF celem uzyskania stałego wysterowania lasera:
błąd “E3” (Brak AGC):
[UE] - wyjście DC +12V (włączane) (gniazdo F): ▼ OF: 0V; ▲ ON: 12V
[rF] ▲ Wejście sygnału RF
[L1] ▲ Nadajnik lasera 1;
[L2] ▲ Nadajnik lasera 2;
[U1] ▲ Wskaźnik napięcia zewnętrznego DC, wejście RF;
[U2] ▲ Wskaźnik napięcia zasilania 12V;
[U3] ▲ Wskaźnik wewnętrznego napięcia zasilania 5V;
[tE] ▲ Wskazuje temperaturę wewnątrz urządzenia;
E- prawidłowa praca transmitera (dioda w kolorze zielonym).
Uwaga!
W przypadku kiedy dioda świeci się na czerwono, informuje użytkownika o problemie:
E1 – napięcie 5V poza zakresem
E2 – napięcie 12V poza zakresem
E3- brak AGC
E4- niski poziom sygnału RF
E5- wysoki poziom sygnału RF
E6- niskie napięcie zewnętrzne
E7- przegrzanie
E8-Starzenie się lasera LD1
E9-Starzenie się lasera LD2
Specyfikacja techniczna:
Nazwa
Kod
mo418 4D31
mo428 4D31
R82522
R82523
Liczba wyjść optycznych
1
2
Poziom wyjściowy lasera [dBm]
1x6
2x6
Długość fali [nm]
1310 ± 10
Typ lasera
DFB
Zakres częstotliwości wejściowych RF[MHz]
47-2400
Poziom sygnału wejściowego RF[dBμV]
70-85
Impedancja wej. [Ω]
75
Regulacja poziomu wzmocnienia [dB]
0...-15 z krokiem 1
Zakres AGC [dB]
±5
Zakres
częstotliwości [dBμV]
Pętla sygnałowa
RF
47-2400
Tłumienie [dB]
<1
Płaskość charakterystyki
[dB]
Tłumienie odbić [dB]
TV naziemna
± 1.0
18 dB/40 MHz -1.5 dB/oct (47-950 MHz); ≥ 10 dB do 1750 MHz; ≥ 7
dB do 2400 MHz
CSO [dB]
> 60
CTB [dB]
> 62
C/N [dB]
> 51
Zasilanie przedwzmacniacza ant.
DC 12V/0.4A
Napięcie zasilania [V]
Pobór prądu [A]
Zakres temperatur pracy [ºC]
Wymiary [mm]
Masa [kg]
DC 12±1
0,35 max
0,4 max
0...+50
198x107,5x36
0,9