doczz
  • Wejść
  • Rejestracja
Katalog

010 Strefy pożarowe - I piętro

download Reklamacja

Transkrypt

010 Strefy pożarowe - I piętro
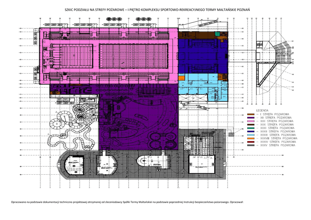
SZKIC PODZIAŁU NA STREFY POŻAROWE – I PIĘTRO KOMPLEKSU SPORTOWO-REKREACYJNEGO TERMY MALTAŃSKIE POZNAŃ
Opracowano na podstawie dokumentacji techniczno projektowej otrzymanej od zleceniodawcy Spółki Termy Maltańskiei na podstawie poprzedniej Instrukcji bezpieczeństwa pożarowego. Opracował:

Podobne dokumenty

Termy Maltańskie: inwestycja priorytetowa dla miasta

Termy Maltańskie: inwestycja priorytetowa dla miasta

Bardziej szczegółowo

Tak będą wyglądać Termy Maltańskie

Tak będą wyglądać Termy Maltańskie

Bardziej szczegółowo

Poznań Nowe Miasto, ul. Zdrojowa

Poznań Nowe Miasto, ul. Zdrojowa

Bardziej szczegółowo

oświadczenie opiekuna grupy

oświadczenie opiekuna grupy

Bardziej szczegółowo

pobierz plik - Strona główna

pobierz plik - Strona główna

Bardziej szczegółowo

Oświadczenie opiekuna grupy

Oświadczenie opiekuna grupy

Bardziej szczegółowo

ZLECENIE ORGANIZACJI PRZYJĘCIA DLA DZIECI W

ZLECENIE ORGANIZACJI PRZYJĘCIA DLA DZIECI W

Bardziej szczegółowo

pobierz - Strona główna

pobierz - Strona główna

Bardziej szczegółowo

Termy Maltańskie wypełniają baseny wodą

Termy Maltańskie wypełniają baseny wodą

Bardziej szczegółowo

PRAKTYKA W STREFACH REKREACJI, SAUN I SPA

PRAKTYKA W STREFACH REKREACJI, SAUN I SPA

Bardziej szczegółowo

ZAŁĄCZNIK NR 1 W poniższej tabeli zawarte są

ZAŁĄCZNIK NR 1 W poniższej tabeli zawarte są

Bardziej szczegółowo

Ogólnopolskie Zawody Pływackie o Puchar KS Warta

Ogólnopolskie Zawody Pływackie o Puchar KS Warta

Bardziej szczegółowo
2026 © doczz.pl
O nas | DMCA / GDPR | Nadużycie