SPECYFIKACJA MEBLI – III PARTIA DOSTAWY

Transkrypt

SPECYFIKACJA MEBLI – III PARTIA DOSTAWY
SPECYFIKACJA MEBLI – III PARTIA DOSTAWY
Lp.
Rysunek poglądowy
WYS
[cm]
SZER
[cm]
GŁ
[cm]
OPIS
Ilość
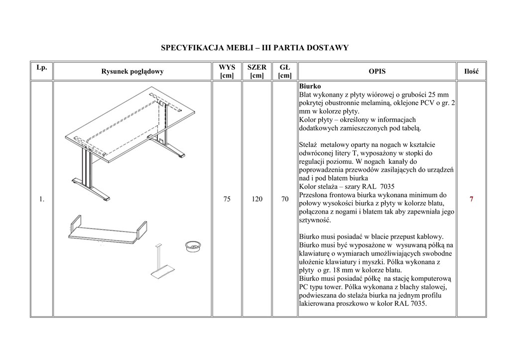
Biurko
Blat wykonany z płyty wiórowej o grubości 25 mm
pokrytej obustronnie melaminą, oklejone PCV o gr. 2
mm w kolorze płyty.
Kolor płyty – określony w informacjach
dodatkowych zamieszczonych pod tabelą.
1.
75
120
70
Stelaż metalowy oparty na nogach w kształcie
odwróconej litery T, wyposażony w stopki do
regulacji poziomu. W nogach kanały do
poprowadzenia przewodów zasilających do urządzeń
nad i pod blatem biurka
Kolor stelaża – szary RAL 7035
Przesłona frontowa biurka wykonana minimum do
połowy wysokości biurka z płyty w kolorze blatu,
połączona z nogami i blatem tak aby zapewniała jego
sztywność.
Biurko musi posiadać w blacie przepust kablowy.
Biurko musi być wyposażone w wysuwaną półką na
klawiaturę o wymiarach umożliwiających swobodne
ułożenie klawiatury i myszki. Pólka wykonana z
płyty o gr. 18 mm w kolorze blatu.
Biurko musi posiadać półkę na stację komputerową
PC typu tower. Pólka wykonana z blachy stalowej,
podwieszana do stelaża biurka na jednym profilu
lakierowana proszkowo w kolor RAL 7035.
7
Blat wykonany z płyty wiórowej o grubości 25 mm
pokrytej obustronnie melaminą, oklejone PCV o gr. 2
mm w kolorze płyty.
Kolor płyty – określony w informacjach
dodatkowych zamieszczonych pod tabelą.
Stelaż metalowy oparty na nogach w kształcie
odwróconej litery T, wyposażony w stopki do
regulacji poziomu. W nogach kanały do
poprowadzenia przewodów zasilających do urządzeń
nad i pod blatem biurka
Kolor stelaża – szary RAL 7035
2.
75
140
70
Przesłona frontowa biurka wykonana minimum do
połowy wysokości biurka z płyty w kolorze blatu,
połączona z nogami i blatem tak aby zapewniała jego
sztywność
Biurko musi być wyposażone w wysuwaną półką na
klawiaturę o wymiarach umożliwiających swobodne
ułożenie klawiatury i myszki. Pólka wykonana z
płyty o gr. 18 mm w kolorze blatu.
Biurko musi posiadać półkę na stację komputerową
PC typu tower Pólka wykonana z blachy stalowej,
podwieszana do stelaża biurka na jednym profilu
lakierowana proszkowo w kolor RAL 7035.
17
Kontenerek biurowy podbiurkowy
3.
4.
58
58
43
43
45
45
- wykonany z płyty wiórowej pokryty obustronnie
melaminą,
- wieńce górne oraz dolne o gr. 25mm
- boki oraz półki o gr. 18mm,
- obrzeża oklejone PCV gr. 2 mm w kolorze płyty,
- 3 szuflady wyposażone w zamek centralny
- kółka umożliwiające przesuwanie,
- prowadnice metalowe, rolkowe z blokadą,
- uchwyty metalowe,
- kolor frontów i blatu – w kolorze blatu biurka z
poz. Nr 1 i poz. nr 2
- wykonany z płyty wiórowej pokryty obustronnie
melaminą,
- wieńce górne oraz dolne o gr. 25mm
- boki oraz półki o gr. 18mm,
- obrzeża oklejone PCV gr. 2 mm w kolorze płyty,
- 1 szuflada płytka,
- 1 szuflada głęboka,
- kółka umożliwiające przesuwanie,
- prowadnice metalowe, rolkowe z blokadą,
- uchwyty metalowe,
- kolor frontów i blatu – w kolorze blatu biurka z
poz. Nr 1 i poz nr 2
26
12
5.
200
100
43
szafa aktowa metalowa
2-drzwiowa,
drzwi z klamką obrotową i zamkiem, 4 półki
regulowane
Drzwi osadzone na zawiasach wewnętrznych
Wieniec szafy wykonany z blachy stalowej gr. 1,0
mm, wieniec dolny z blachy ocynkowanej, pozostałe
elementy z blachy gr. 0,8 mm.
22
malowana farbami proszkowymi
Kolor szary - RAL 7035
6.
200
100
43
szafa aktowo – ubraniowa metalowa
2-drzwiowa,
drzwi z klamką obrotową i zamkiem
Drzwi osadzone na zawiasach wewnętrznych
Wieniec szafy wykonany z blachy stalowej gr. 1,0
mm, wieniec dolny z blachy ocynkowanej, pozostałe
elementy z blachy gr. 0,8 mm.
15
malowana farbami proszkowymi,
w przedziale ubraniowym drążek na wieszaki.
Kolor szary - RAL 7035
7.
81
1100
43
nadstawka do szafy metalowej,
drzwi zamykane, 1 półka, na 2 rzędy segregatorów
Drzwi osadzone na zawiasach wewnętrznych
Wieniec szafy wykonany z blachy stalowej gr. 1,0
mm, wieniec dolny z blachy ocynkowanej, pozostałe
elementy z blachy gr. 0,8 mm.
Nadstawka musi posiadać tożsamą konstrukcję co
oferowane szafy, musi pochodzić z tej samej serii.
Ustawiana na wieńcu szafy, musi posiadać
20
możliwość przymocowania do szafy,
umożliwiającego jej zsunięcie.
malowana farbami proszkowymi
Kolor szary - RAL 7035
szafa kartotekowa metalowa
4 szufladowa szafa kartotekowa
Szuflada przystosowana na dwa rzędy kartotek o
formacie A5 poziomo
8.
130
55
63
Szuflady zainstalowane na teleskopowych prowadnicach
kulkowych zabezpieczeniem przed wypadaniem.
Szafa zamykana zamkiem.
Wieniec szafy wykonany z blachy stalowej gr. 1,0
mm, wieniec dolny z blachy ocynkowanej, pozostałe
elementy z blachy gr. 0,8 mm.
malowana farbami proszkowymi. Kolor szary - RAL 7035
2
Krzesła do poczekalni (ławki)
krzesła w szeregu wykonane z profilowanej sklejki
bukowej.
9.
Ławka na metalowej, malowanej proszkowo ramie.
Ławka wyposażona w wygodne podłokietniki o
drewnianych nakładkach.
Kolor ramy - szary
Kolor krzeseł - orzech
2
Krzesła do poczekalni (pojedyncze)
wykonane z profilowanej sklejki bukowej.
Stelaż metalowy, malowany proszkowo ramie.
Kolor ramy - szary
Kolor krzeseł - orzech
10.
5
Krzesło
miękkie tapicerowane krzesło
siedzisko i oparcie tkaniną 100% włókno
syntetyczne.
Kolor tkaniny do ustalenia z Zamawiającym
Stelaż w kolorze szarym.
11.
10
regały magazynowe
12.
200
95
43
metalowy skręcany, słupek i pólka malowane
proszkowo
Słupek RPG 40x40
pólka RPG
obciążenie półki max 100 kg
ilość półek 5
kolor RAL 7035
5
Zamawiający dopuszcza tolerancje wymiarów dostarczanych mebli - tolerancja wynosi +/- 2 cm, chyba, że w tabeli opisano inaczej.
UWAGA !!!
Zamawiający informuje, że kolor mebli (blatów biurek oraz biurek recepcyjnych i szaf z płyty), należy dopasować do drzwi i parapetów jakie
zostały zamontowane w siedzibie Zamawiającego. Drzwi firmy POLSKONE ETIUDA KOLOR ORZECH PREMIUM. Odcień należy
uzgodnić przed realizacją zamówienia.
Blaty biurek powinny posiadać klasę o podwyższonej ścieralności minimum B3 wg normy EN 14322 – potwierdzony odpowiednim
dokumentem. Klasa higieniczności E1.