Zx17 funkcjonalny dom parterowy z dachem spadzistym o

Transkrypt

Zx17 funkcjonalny dom parterowy z dachem spadzistym o
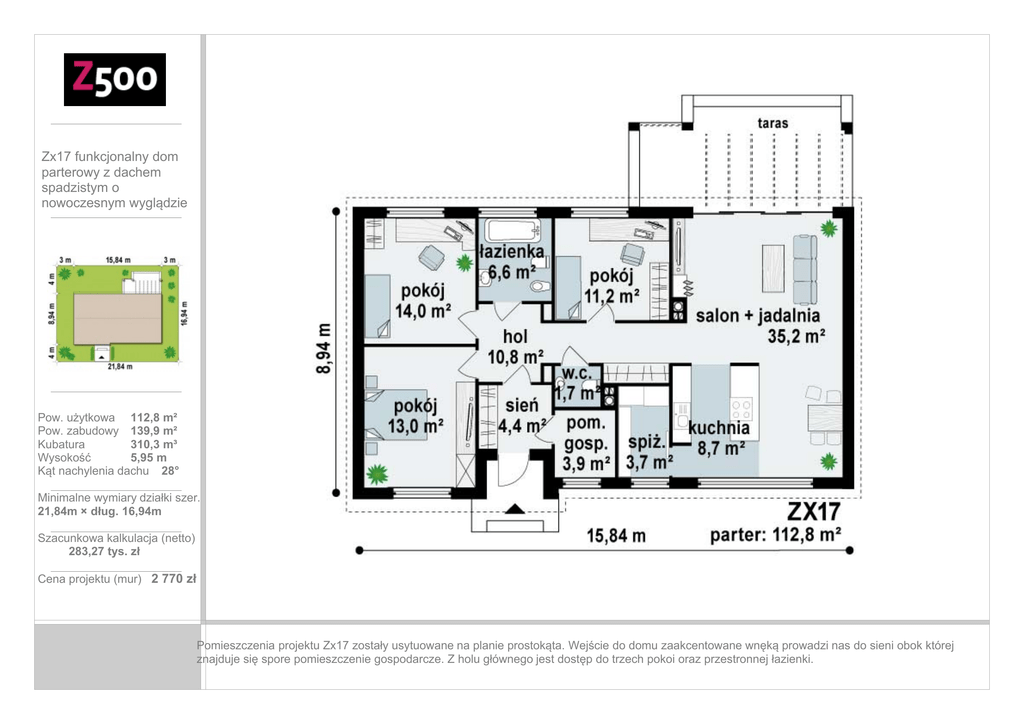
Zx17 funkcjonalny dom
parterowy z dachem
spadzistym o
nowoczesnym wyglądzie
Pow. użytkowa 112,8 m²
Pow. zabudowy 139,9 m²
Kubatura
310,3 m³
Wysokość
5,95 m
Kąt nachylenia dachu 28°
Minimalne wymiary działki szer.
21,84m × dług. 16,94m
Szacunkowa kalkulacja (netto)
283,27 tys. zł
Cena projektu (mur) 2 770 zł
Pomieszczenia projektu Zx17 zostały usytuowane na planie prostokąta. Wejście do domu zaakcentowane wnęką prowadzi nas do sieni obok której
znajduje się spore pomieszczenie gospodarcze. Z holu głównego jest dostęp do trzech pokoi oraz przestronnej łazienki.