BURMISTRZ MIASTA TARNOWSKIE GÓRY zaprasza do udziału w

Transkrypt

BURMISTRZ MIASTA TARNOWSKIE GÓRY zaprasza do udziału w
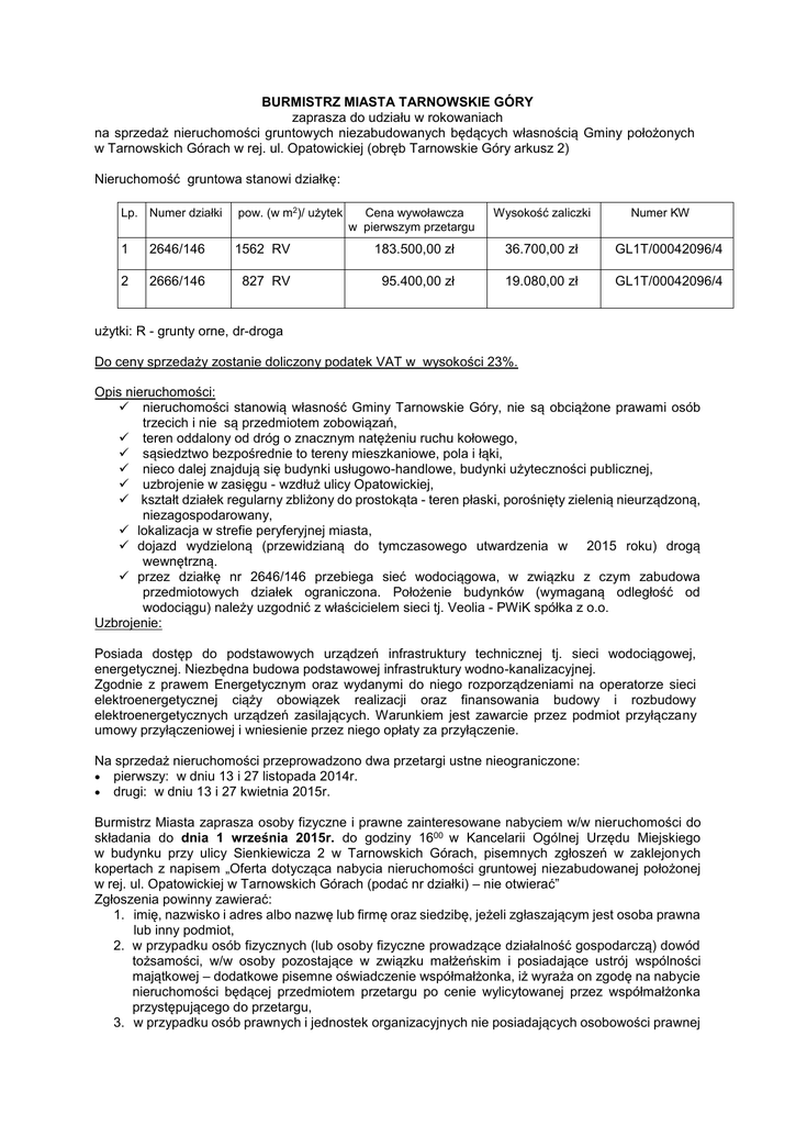
BURMISTRZ MIASTA TARNOWSKIE GÓRY
zaprasza do udziału w rokowaniach
na sprzedaż nieruchomości gruntowych niezabudowanych będących własnością Gminy położonych
w Tarnowskich Górach w rej. ul. Opatowickiej (obręb Tarnowskie Góry arkusz 2)
Nieruchomość gruntowa stanowi działkę:
Lp. Numer działki
pow. (w m2)/ użytek
Cena wywoławcza
w pierwszym przetargu
Wysokość zaliczki
1
2646/146
1562 RV
183.500,00 zł
36.700,00 zł
GL1T/00042096/4
2
2666/146
827 RV
95.400,00 zł
19.080,00 zł
GL1T/00042096/4
Numer KW
użytki: R - grunty orne, dr-droga
Do ceny sprzedaży zostanie doliczony podatek VAT w wysokości 23%.
Opis nieruchomości:
 nieruchomości stanowią własność Gminy Tarnowskie Góry, nie są obciążone prawami osób
trzecich i nie są przedmiotem zobowiązań,
 teren oddalony od dróg o znacznym natężeniu ruchu kołowego,
 sąsiedztwo bezpośrednie to tereny mieszkaniowe, pola i łąki,
 nieco dalej znajdują się budynki usługowo-handlowe, budynki użyteczności publicznej,
 uzbrojenie w zasięgu - wzdłuż ulicy Opatowickiej,
 kształt działek regularny zbliżony do prostokąta - teren płaski, porośnięty zielenią nieurządzoną,
niezagospodarowany,
 lokalizacja w strefie peryferyjnej miasta,
 dojazd wydzieloną (przewidzianą do tymczasowego utwardzenia w 2015 roku) drogą
wewnętrzną.
 przez działkę nr 2646/146 przebiega sieć wodociągowa, w związku z czym zabudowa
przedmiotowych działek ograniczona. Położenie budynków (wymaganą odległość od
wodociągu) należy uzgodnić z właścicielem sieci tj. Veolia - PWiK spółka z o.o.
Uzbrojenie:
Posiada dostęp do podstawowych urządzeń infrastruktury technicznej tj. sieci wodociągowej,
energetycznej. Niezbędna budowa podstawowej infrastruktury wodno-kanalizacyjnej.
Zgodnie z prawem Energetycznym oraz wydanymi do niego rozporządzeniami na operatorze sieci
elektroenergetycznej ciąży obowiązek realizacji oraz finansowania budowy i rozbudowy
elektroenergetycznych urządzeń zasilających. Warunkiem jest zawarcie przez podmiot przyłączany
umowy przyłączeniowej i wniesienie przez niego opłaty za przyłączenie.
Na sprzedaż nieruchomości przeprowadzono dwa przetargi ustne nieograniczone:
 pierwszy: w dniu 13 i 27 listopada 2014r.
 drugi: w dniu 13 i 27 kwietnia 2015r.
Burmistrz Miasta zaprasza osoby fizyczne i prawne zainteresowane nabyciem w/w nieruchomości do
składania do dnia 1 września 2015r. do godziny 1600 w Kancelarii Ogólnej Urzędu Miejskiego
w budynku przy ulicy Sienkiewicza 2 w Tarnowskich Górach, pisemnych zgłoszeń w zaklejonych
kopertach z napisem „Oferta dotycząca nabycia nieruchomości gruntowej niezabudowanej położonej
w rej. ul. Opatowickiej w Tarnowskich Górach (podać nr działki) – nie otwierać”
Zgłoszenia powinny zawierać:
1. imię, nazwisko i adres albo nazwę lub firmę oraz siedzibę, jeżeli zgłaszającym jest osoba prawna
lub inny podmiot,
2. w przypadku osób fizycznych (lub osoby fizyczne prowadzące działalność gospodarczą) dowód
tożsamości, w/w osoby pozostające w związku małżeńskim i posiadające ustrój wspólności
majątkowej – dodatkowe pisemne oświadczenie współmałżonka, iż wyraża on zgodę na nabycie
nieruchomości będącej przedmiotem przetargu po cenie wylicytowanej przez współmałżonka
przystępującego do przetargu,
3. w przypadku osób prawnych i jednostek organizacyjnych nie posiadających osobowości prawnej
4.
5.
6.
7.
8.
aktualny wypis z właściwego dla danego podmiotu rejestru, pełnomocnictwo, dowód tożsamości
osób reprezentujących podmiot,
Datę sporządzenia zgłoszenia,
Oświadczenie, że zgłaszający zapoznał się z warunkami rokowań i przyjmuje te warunki bez
zastrzeżeń,
Proponowaną cenę (podając numer działki) i sposób zapłaty,
Kserokopię wpłaty zaliczki pobieranej w celu zabezpieczenia kosztów w przypadku uchylenia się
od zawarcia umowy,
Podpis zgłaszającego (osoby upoważnionej do składania oświadczeń woli w imieniu oferenta).
Pełnomocnicy osób fizycznych oraz osoby fizyczne umocowane do działania w imieniu osób prawnych
winni przedstawić notarialnie poświadczone pełnomocnictwo.
Warunkiem przystąpienia do rokowań jest
a) złożenie oferty,
b) wpłacenie w/w zaliczki - zaliczkę wnosi się na konto tut. Urzędu - ING Bank Śląski S.A. Nr
rachunku 68 1050 1230 1000 0090 3045 9466 do dnia 1 września 2015r,
c) obecność oferenta podczas otwarcia ofert na części jawnej rokowań,
Za dzień wniesienia zaliczki uważa się dzień wpływu na konto Urzędu Miejskiego.
Otwarcie zgłoszeń w obecności uczestników rokowań nastąpi w dniu 7 września 2015r. o godzinie:
 1200 poz. nr 1
 1400 poz. nr 2
w pokoju nr 40 w budynku przy ul. Sienkiewicza 2 w Tarnowskich Górach.
Oferentom, których oferta nie zostanie przyjęta wpłacona zaliczka zostanie zwrócona w ciągu trzech dni
roboczych od dnia zamknięcia lub odwołania rokowań przelewem na podane konto bankowe uczestnika
rokowań.
Zaliczki wpłacone przez nabywców wyłonionych w rokowaniach, zostaną zaliczone na poczet ceny
nabycia nieruchomości.
Zaliczka przepada, jeżeli nabywca uchyli się od podpisania aktu notarialnego w wyznaczonym terminie.
W terminie do 21 dni od daty podpisania protokołu z rokowań zostanie wyznaczony termin zawarcia
umowy sprzedaży.
Koszt zawarcia umowy notarialnej wraz z kosztami opłaty sądowej ponosi nabywca.
Wynegocjowana w rokowaniach cena (do której zostanie doliczony podatek VAT w wysokości 23%)
nieruchomości powinna być wpłacona na konto Urzędu Miejskiego przed zawarciem aktu notarialnego
(zgodnie z protokołem z przeprowadzonych rokowań) i znajdować się na koncie Urzędu trzy dni przed
podpisaniem umowy notarialnej.
Cudzoziemców wiążą przepisy ustawy z dnia 24.03.1920r.o nabywaniu nieruchomości przez
cudzoziemców (tekst jednolity Dz. U. z 2004r., Nr 167 poz. 1754 z późniejszymi zmianami),
Burmistrz Miasta zastrzega sobie prawo zamknięcia rokowań bez wybrania nabywcy nieruchomości.
Dodatkowych informacji udziela z-ca Naczelnika Wydziału Gospodarki Nieruchomościami Urzędu
Miejskiego w Tarnowskich Górach przy ul. Sienkiewicza 2 (I piętro pokój nr 55) lub pod numerem
telefonu (032) 39-33-717.