TOM V - ROZDZIAŁ I - Budynek szkoleniowy

Transkrypt

TOM V - ROZDZIAŁ I - Budynek szkoleniowy
Lider konsorcjum:
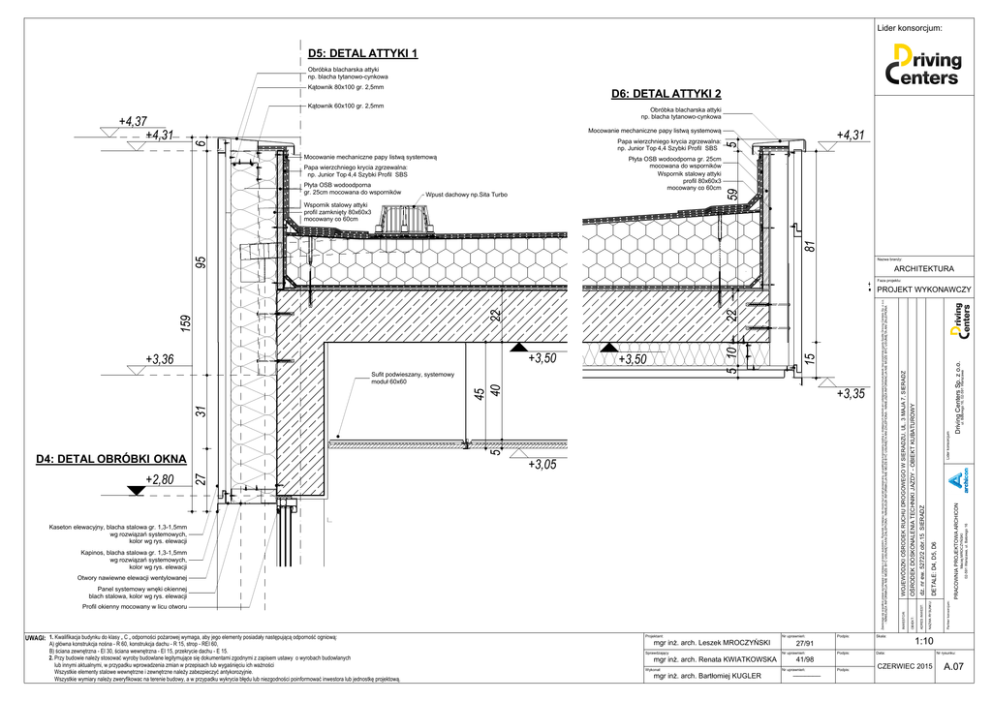
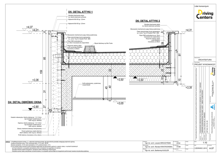
D5: DETAL ATTYKI 1
Obróbka blacharska attyki
np. blacha tytanowo-cynkowa
Kątownik 80x100 gr. 2,5mm
D6: DETAL ATTYKI 2
Kątownik 60x100 gr. 2,5mm
+4,37
+4,31
Obróbka blacharska attyki
np. blacha tytanowo-cynkowa
Mocowanie mechaniczne papy listwą systemową
Mocowanie mechaniczne papy listwą systemową
Płyta OSB wodoodporna gr. 25cm
mocowana do wsporników
Wspornik stalowy attyki
profil 80x60x3
mocowany co 60cm
Papa wierzchniego krycia zgrzewalna:
np. Junior Top 4,4 Szybki Profil SBS
Płyta OSB wodoodporna
gr. 25cm mocowana do wsporników
Wpust dachowy np.Sita Turbo
5
+4,31
59
6
Papa wierzchniego krycia zgrzewalna:
np. Junior Top 4,4 Szybki Profil SBS
95
81
Wspornik stalowy attyki
profil zamknięty 80x60x3
mocowany co 60cm
Nazwa branży:
ARCHITEKTURA
Faza projektu:
UWAGI: 1. Kwalifikacja budynku do klasy „ C „ odporności pożarowej wymaga, aby jego elementy posiadały następującą odporność ogniową:
A) główna konstrukcja nośna - R 60, konstrukcja dachu - R 15, strop - REI 60,
B) ściana zewnętrzna - EI 30, ściana wewnętrzna - EI 15, przekrycie dachu - E 15.
2. Przy budowie należy stosować wyroby budowlane legitymujące się dokumentami zgodnymi z zapisem ustawy o wyrobach budowlanych
lub innymi aktualnymi, w przypadku wprowadzenia zmian w przepisach lub wygaśnięciu ich ważności
Wszystkie elementy stalowe wewnętrzne i zewnętrzne należy zabezpieczyć antykorozyjnie.
Wszystkie wymiary należy zweryfikowac na terenie budowy, a w przypadku wykrycia błędu lub niezgodności poinformować inwestora lub jednostkę projektową.
Projektant:
mgr inż. arch. Leszek MROCZYŃSKI
Sprawdzający
mgr inż. arch. Renata KWIATKOWSKA
Wykonał:
mgr inż. arch. Bartłomiej KUGLER
Nr uprawnień:
Podpis:
Skala:
Podpis:
Data:
27/91
Nr uprawnień:
41/98
Nr uprawnień:
_______
Podpis:
ul. Batorego 16, 02-591 Warszawa
Driving Centers Sp. z o.o.
Maciej MROCZYŃSKI
02-591 Warszawa, ul. Batorego 16
Partner konsorcjum:
DETALE: D4, D5, D6
PRACOWNIA PROJEKTOWA ARCHICON
Lider konsorcjum
dz. nr ew. 5272/2 obr.15 SIERADZ
Profil okienny mocowany w licu otworu
NAZWA RYSUNKU:
Panel systemowy wnęki okiennej
blach stalowa, kolor wg rys. elewacji
OŚRODEK DOSKONALENIA TECHNIKI JAZDY - OBIEKT KUBATUROWY
+253
ADRES INWEST:
Otwory nawiewne elewacji wentylowanej
WOJEWÓDZKI OŚRODEK RUCHU DROGOWEGO W SIERADZU, UL. 3 MAJA 7, SIERADZ
Kapinos, blacha stalowa gr. 1,3-1,5mm
wg rozwiązań systemowych,
kolor wg rys. elewacji
OBIEKT:
Kaseton elewacyjny, blacha stalowa gr. 1,3-1,5mm
wg rozwiązań systemowych,
kolor wg rys. elewacji
INWESTOR:
27
+2,80
+3,05
- NINIEJSZA INFORMACJA NIE MOŻE BYĆ USUNIĘTA ANI ZALEPIONA - NINIEJSZA INFORMACJA NIE MOŻE BYĆ USUNIĘTA ANI ZALEPIONA - NINIEJSZA INFORMACJA NIE MOŻE BYĆ USUNIĘTA ANI ZALEPIONA
5
D4: DETAL OBRÓBKI OKNA
Zastrzega się wszelkie prawa wynikające z Ustawy o prawie autorskim. Rysunek niniejszy nie może być przerysowywany, uzupełniany,kopiowany żadną z dostępnych technik ani odstępowany komukolwiek bez pisemnej zgody Spółki Driving Centers Sp. z o.o.
45
40
+3,35
31
Sufit podwieszany, systemowy
moduł 60x60
+3,50
15
22
+3,50
+3,36
5 10
159
22
PROJEKT WYKONAWCZY
1:10
CZERWIEC 2015
Nr rysunku:
A.07