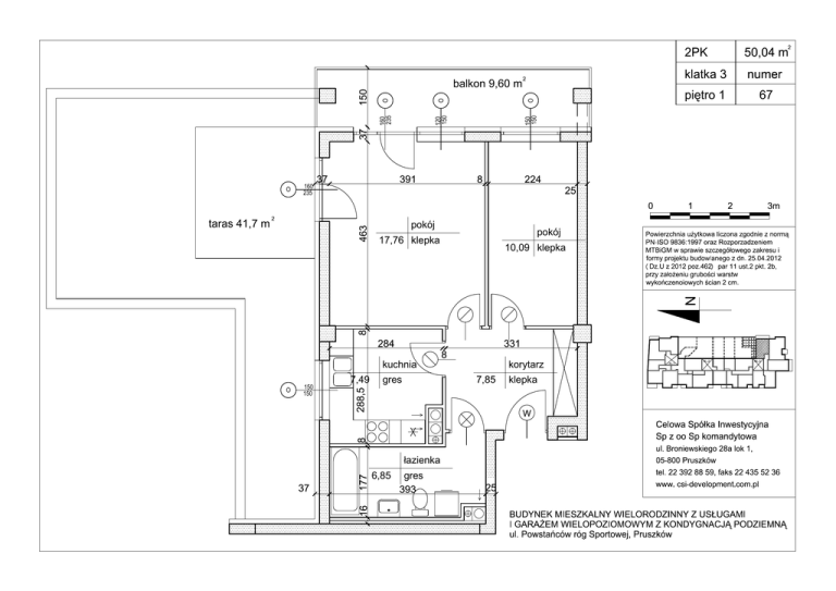
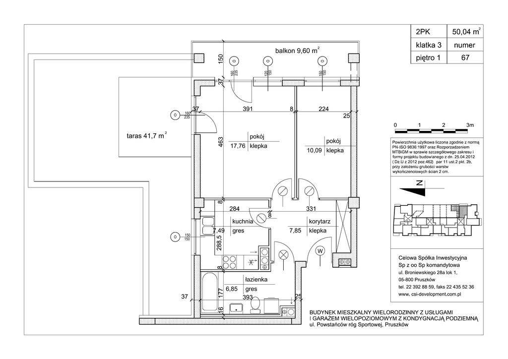
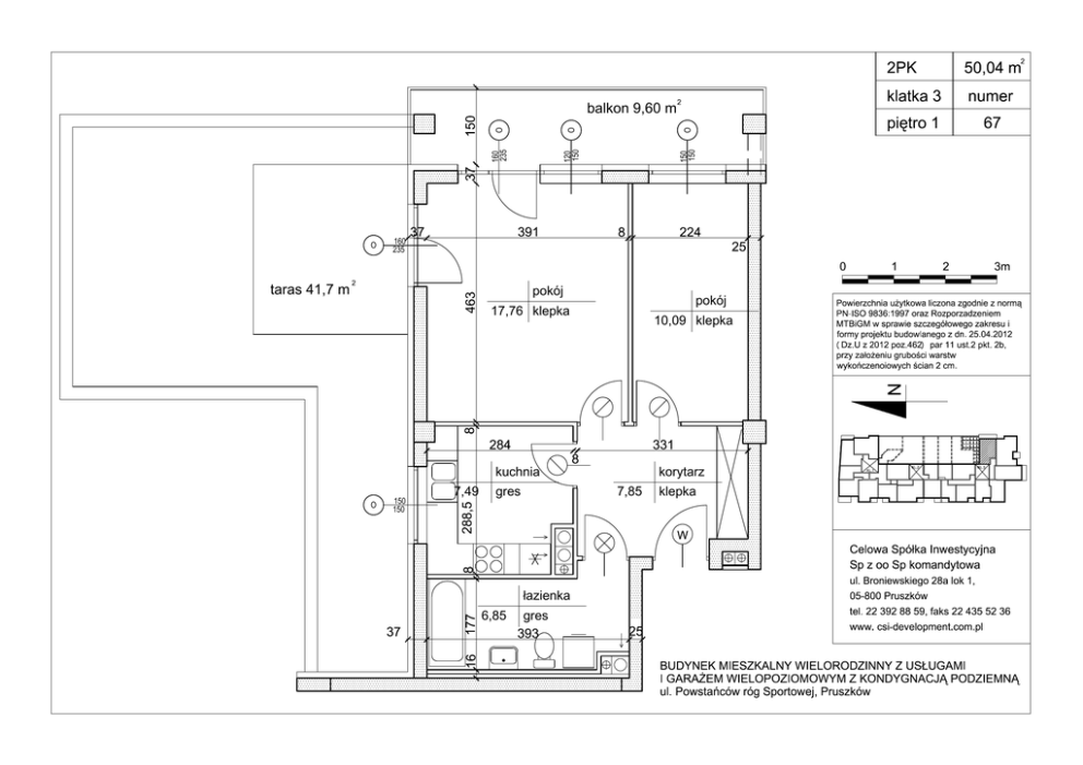
taras 41,7 m balkon 9,60 m

Transkrypt

taras 41,7 m balkon 9,60 m
O
O
O
120
150
150
150
O
160
235
balkon 9,60 m
160
235
taras 41,7 m
17,76 klepka
10,09 klepka
kuchnia
O
150
150
7,49
gres
6,85
korytarz
7,85
gres
klepka