rys 48 - szczegóły

Transkrypt

rys 48 - szczegóły
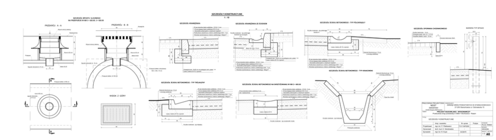
SZCZEGÓŁY KONSTRUKCYJNE
1 : 10
2%
30
10
8
22
30
KrawęŜnik bet. 15x30 cm na podsypce cem.-piask. 1:4
Ława z betonu B-15 z oporem
W-wa ścieralna beton asfaltowy 0/12,8 5 cm
W-wa wiąząca beton asfaltowy 0/16 6 cm
Geosiatka polipropylen.o sztywnych węzłach
Sączek drenarski śr. 15 cm
Beton B-20
15
15
15
Destrukt bitumiczny gr. 10 cm
z emulsją asfaltową
65
5
25
15
50
Beton B-20
Sączek drenarski śr.15 cm
15
Ława z betonu B-15 z oporem
5
Rura śr.50 cm
25
Przepust
2%
KrawęŜnik bet. 15x30 cm na podsypce cem.-piask. 1:4
Ława z betonu B-15 z oporem
128 x 128 x 14 cm
Warstwa wyrównawcza z betonu asfaltowego 50kg/m
W-wa ścieralna beton asfaltowy 0/12,8 5 cm
W-wa wiąząca beton asfaltowy 0/16 6 cm
Geosiatka polipropylen.o sztywnych węzłach
Podbudowa zasadnicza z betonu asfaltowego 0/20 7 cm
Warstwa wyrównawcza z betonu asfaltowego 50kg/m 2
Podbudowa zasadnicza z betonu asfaltowego 0/20 7 cm
Przepust Ŝelbet. skrzynkowy
beton B-15
190
Rura śr.50 cm
15
15
30
15
2%
SZCZEGÓŁ ŚCIEKU BETONOWEGO - TYP KRAKOWSKI
Destrukt bitumiczny gr. 10 cm
z emulsją asfaltową
SZCZEGÓŁ ŚCIEKU BETONOWEGO NA SKRZYśOWANIU W KM 2 + 665.00
1
40
SZCZEGÓŁ ŚCIEKU BETONOWEGO - TYP TRÓJKĄTNY
40
Przepust Ŝelbet. d=80 cm
:1
1
10
3
29
8
68
56
Podbudowa zasadnicza z betonu asfaltowego 0/20 7 cm
50
Warstwa wyrównawcza z betonu asfaltowego 50kg/m 2
2%
Warstwa wyrównawcza z betonu asfaltowego 50kg/m 2
2%
Płyta Eko 40x60
10
18
20
6%
:1
PRACOWNIA PROJEKTOWA
39
WIDOK Z GÓRY
50
W-wa ścieralna beton asfaltowy 0/12,8 5 cm
W-wa wiąząca beton asfaltowy 0/16 6 cm
Geosiatka polipropylen.o sztywnych węzłach
W-wa ścieralna beton asfaltowy 5 cm
Istn. nawierzchnia
12
rura d=50 cm
W-wa ścieralna beton asfaltowy 0/12,8 5 cm
W-wa wiąząca beton asfaltowy 0/16 6 cm
Geosiatka polipropylen.o sztywnych węzłach
Podbudowa zasadnicza z betonu asfaltowego 0/20 7 cm
15
Destrukt bitumiczny gr. 10 cm
z emulsją asfaltową
ŚWIDERSKI
59
25
20
8
15
PROJEKT BUDOWLANO - WYKONAWCZY
Przebudowa drogi powiatowej nr 0608 T Bronkowice - Rzepin
12
45
Ława z betonu B-15 z oporem
50
SZCZEGÓŁY KONSTRUKCYJNE
8
Korytko ściekowe - typ przykanalik mulda
Korytko ściekowe - typ trójkątny
TYTUŁ:
Korytko ściekowe - typ krakowski
Imię i nazwisko
44
Podsypka piaskowa
15
65
ZARZĄD DRÓG POWIATOWYCH W STARACHOWICACH
27-200 Starachowice ul. Ostrowiecka 15
64-605 Wargowo 88k/Poznania
TEMAT:
Ława z betonu B-15
50
ZAMAWIAJĄCY:
MOST
36
8
15
65
6%
2
Przepust Ŝelbet. d=100 cm
sączek drenarski
d=15 cm
14
8
ObrzeŜe betonowe 20x8
Wpust uliczny Ŝeliwny
Beton B-15 gr. 15 cm
22.5
Kostka betonowa 6 cm
Podsypka piask.-cem. (4 : 1) 3 cm
Pospółka stabiliz. mech. 10 cm
6%
26
26
10
70
Korytko ściekowe - typ półokrągły
30x50x8 wg szczegółu
2%
BARIERA TYP SP/04/D
SZCZEGÓŁ OPORNIKA CHODNIKOWEGO
75
31
2%
2%
Korytko ściekowe - typ półokrągły
50x50x14
75
Warstwa wyrównawcza z betonu asfaltowego 50kg/m 2
50
16
20
Nawierzchnia
45
30
7
Wpust uliczny Ŝeliwny
14
W-wa ścieralna beton asfaltowy 0/12,8 5 cm
W-wa wiąząca beton asfaltowy 0/16 6 cm
Geosiatka polipropylen.o sztywnych węzłach
Podbudowa zasadnicza z betonu asfaltowego 0/20 7 cm
30
KrawęŜnik
65
12
PRZEKRÓJ B - B
PRZEKRÓJ A - A
SZCZEGÓŁ ŚCIEKU BETONOWEGO - TYP PÓŁOKRĄGŁY
SZCZEGÓŁ KRAWĘśNIKA ZE ŚCIEKIEM
10
SZCZEGÓŁ KRAWĘśNIKA
7.5
SZCZEGÓŁ WPUSTU ULICZNEGO
NA PRZEPUŚCIE W KM 3 + 820.00, 3 + 920.00
Projektował:
mgr inŜ. P. Płatkiewicz
Opracował:
tech. bud. E. Sokołowska
Sprawdził:
mgr inŜ. R. Kupś
Nr upraw.
7131/118/P/2000
34/238/79
Podpis
STADIUM:
PROJ. BUD. - WYKONAWCZY
BRANśA:
DROGOWA
SKALA:
1:10
NR RYS.:
48