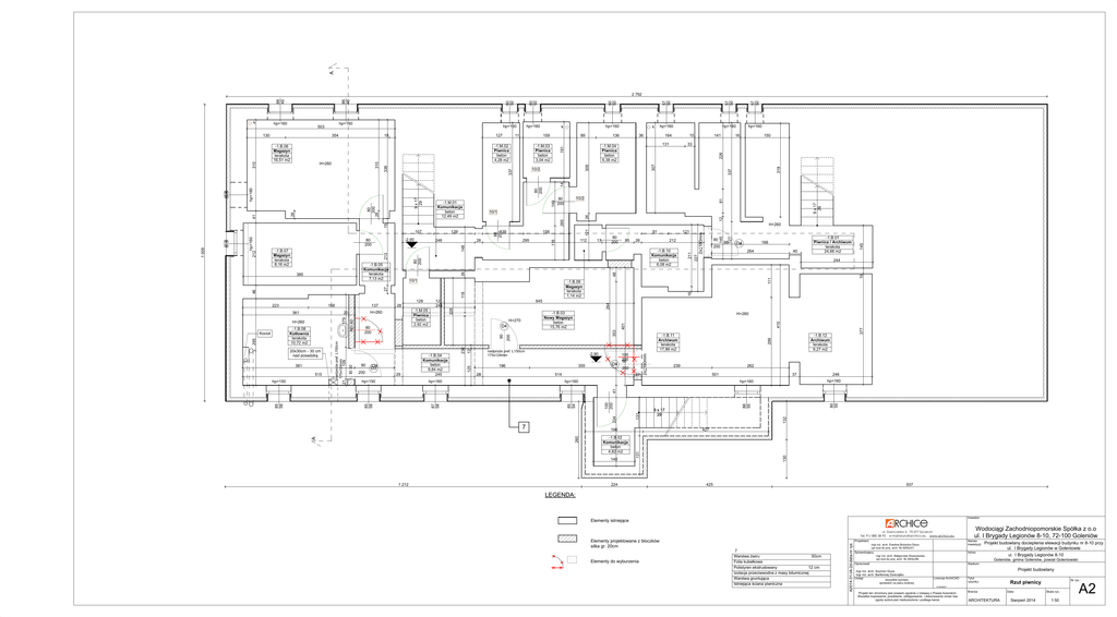
7 LEGENDA: Wodociągi Zachodniopomorskie Spółka z o.o ul. I

Transkrypt

7 LEGENDA: Wodociągi Zachodniopomorskie Spółka z o.o ul. I
A
57
50
57
50
36
164
15
131
-1.M.04
Piwnica
beton
6,38 m2
141
16
150
33
337
10/2
hp=160
226
-1.M.03
Piwnica
beton
3,04 m2
136
hp=160
307
-1.M.02
Piwnica
beton
4,28 m2
89
hp=160
319
159
57
50
60
50
60
50
11
k
309
H=260
127
hp=160
k
9 x 17
29
40
-1.B.01
Piwnica / Archiwum
terakota
24,66 m2
244
19
111
-2,90
186
355
28
145
127
145
2x 180mm
211
264
D4
100
200
90
200
514
27
hp=160
hp=160
299
-1.B.12
Archiwum
terakota
9,27 m2
262
501
37
246
hp=160
hp=160
-1.B.02
Komunikacja
beton
4,82 m2
140
1 212
80
55
88
55
132
427
131
196
260
224
425
937
LEGENDA:
Inwestor:
Elementy istniejące
ul. Garncarska 5; 70-377 Szczecin
Tel. 91/ 880 38 93 e-mail:[email protected] www.archico.eu
Elementy projektowane z bloczków
silka gr. 20cm
Elementy do wyburzenia
Projektant:
7
Warstwa żwiru
50cm
Folia kubełkowa
Polistyren ekstrudowany
12 cm
Izolacja przeciwwodna z masy bitumicznej
Warstwa gruntująca
Istniejąca ściana piwniczna
A2014.01-IA-2d-data-nr rys
A
9 x 17
29
130
7
131
100
200
234
85
58
41
hp=150
239
377
410
401
200
nadproże pref. L150cm
175x124mm
12
236
166
D4
-1.B.11
Archiwum
terakota
17,89 m2
2x 180mm
29
200
98
H=260
353
D4
90
134
D3
-1.B.03
Nowy Magazyn
beton
15,76 m2
H=270
-1.B.04
Komunikacja
beton
9,84 m2
245
90
264
645
85
54
21
200
212
16
118
515
hp=150
-1.M.05
Piwnica
beton
2,92 m2
80
200
90
12
244
87
58
381
128
85
58
109
20x30cm - 30 cm
nad posadzką
REI 60
179
-1.B.08
Kotłownia
terakota
10,72 m2
Kocioł
nadproże pref. L150cm
175x124mm
H=260
28
H=260
20
EI 30
361
26
-1.B.09
Magazyn
terakota
1,14 m2
125
137
95
48
26
10/1
228
158
80
200
13
121
-1.B.10
Komunikacja
beton
6,08 m2
27
46
223
112
116
295
91
227
80
200
26
148
246
H=260
156
80
200
213
-1.B.05
Komunikacja
terakota
7,13 m2
385
139
121
15
hp=160
212
-1.B.07
Magazyn
terakota
8,16 m2
12
26
10/1
139
-2,90
80
200
295
1 009
107
86
56
10/2
90
200
81
149
-1.M.01
Komunikacja
beton
12,49 m2
265
26
80
200
26
9 x 17
29
hp=160
41
86
56
80
200
14
310
-1.B.06
Magazyn
terakota
16,51 m2
19
hp=160
191
354
hp=160
337
130
60
50
hp=160
503
336
hp=160
310
k
86
45
88
45
2 792
Wodociągi Zachodniopomorskie Spółka z o.o
ul. I Brygady Legionów 8-10, 72-100 Goleniów
Nazwa
inwestycji:
mgr inż. arch. Ewelina Bożacka-Olsza
upr.bud do proj. arch Nr 69/Sz/01
Sprawdzający:
Adres:
mgr inż. arch. Małgorzata Straszewska
upr.bud do proj. arch Nr 59/Sz/99
Opracował:
Projekt budowlany docieplenia elewacji budynku nr 8-10 przy
ul. I Brygady Legionów w Goleniowie
ul. I Brygady Legionów 8-10
Goleniów, gmina Goleniów, powiat Goleniowski
Stadium:
mgr inż. arch. Szymon Guza
mgr inż. arch. Bartłomiej Dzieciątko
Uwagi:
wszystkie wymiary
Projekt budowlany
Licencja ArchiCAD:
sprawdzić na placu budowy
Tytuł
rysunku:
Nr rys.:
Rzut piwnicy
10-6048251
Projekt ten chroniony jest prawem zgodnie z Ustawą o Prawie Autorskim.
Wszelkie kopiowanie, powielanie, odstępowanie i dokonywanie zmian bez
zgody autora jest niedozwolone i podlega karze.
Branża:
ARCHITEKTURA
Data:
Sierpień 2014
Skala rys.:
1:50
A2