Z20 Wnioseko wydanie opinii dotyczącej lokalizacji i

Transkrypt

Z20 Wnioseko wydanie opinii dotyczącej lokalizacji i
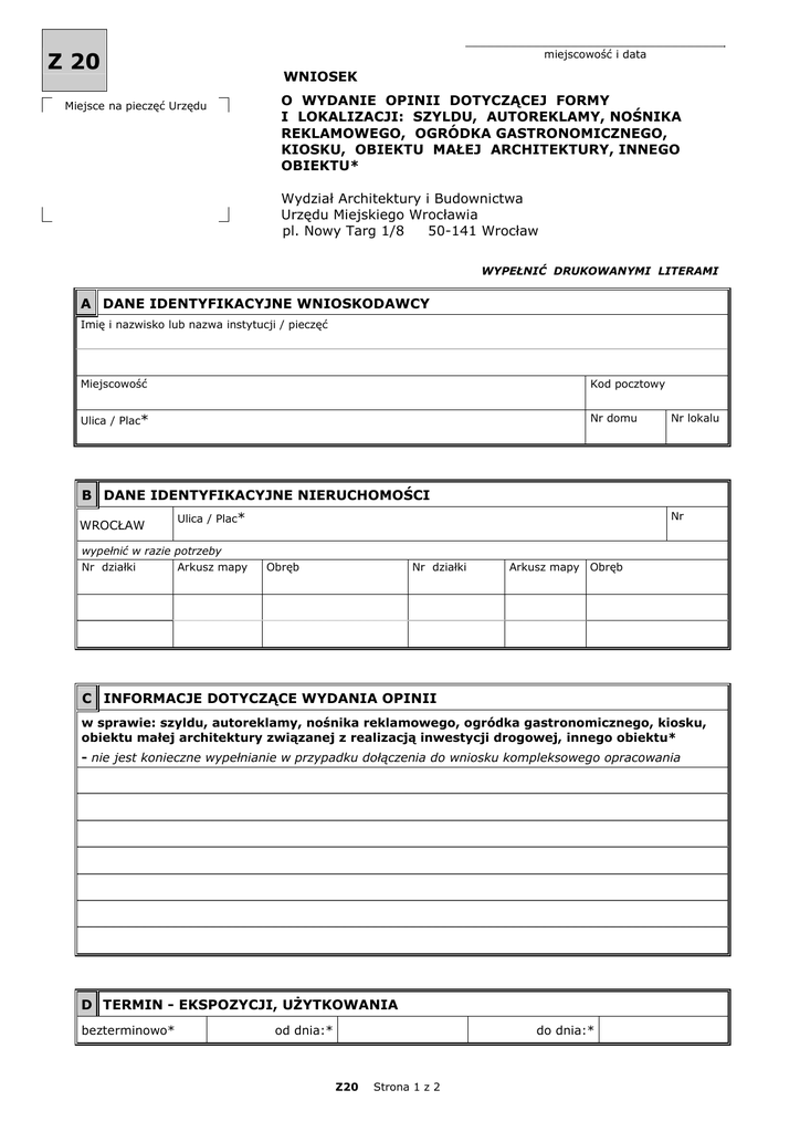
miejscowość i data
Z 20
WNIOSEK
Miejsce na pieczęć Urzędu
O WYDANIE OPINII DOTYCZĄCEJ FORMY
I LOKALIZACJI: SZYLDU, AUTOREKLAMY, NOŚNIKA
REKLAMOWEGO, OGRÓDKA GASTRONOMICZNEGO,
KIOSKU, OBIEKTU MAŁEJ ARCHITEKTURY, INNEGO
OBIEKTU*
Wydział Architektury i Budownictwa
Urzędu Miejskiego Wrocławia
pl. Nowy Targ 1/8
50-141 Wrocław
WYPEŁNIĆ DRUKOWANYMI LITERAMI
A DANE IDENTYFIKACYJNE WNIOSKODAWCY
Imię i nazwisko lub nazwa instytucji / pieczęć
Miejscowość
Kod pocztowy
Ulica / Plac*
Nr domu
Nr lokalu
B DANE IDENTYFIKACYJNE NIERUCHOMOŚCI
WROCŁAW
Nr
Ulica / Plac*
wypełnić w razie potrzeby
Nr działki
Arkusz mapy
Obręb
Nr działki
Arkusz mapy Obręb
C INFORMACJE DOTYCZĄCE WYDANIA OPINII
w sprawie: szyldu, autoreklamy, nośnika reklamowego, ogródka gastronomicznego, kiosku,
obiektu małej architektury związanej z realizacją inwestycji drogowej, innego obiektu*
- nie jest konieczne wypełnianie w przypadku dołączenia do wniosku kompleksowego opracowania
D TERMIN - EKSPOZYCJI, UśYTKOWANIA
bezterminowo*
od dnia:*
do dnia:*
Z20
Strona 1 z 2
E DO WNIOSKU DOŁĄCZAM:*
Ilość
1. fragment mapy z oznaczoną lokalizacją określający usytuowanie obiektu w terenie
2. projekt graficzny
3. lokalizację reklamy na elewacji
4.
5.
6.
UWAGI:
1. Opinie wydawane są na podstawie Zarządzeń Prezydenta Wrocławia:
a.
nr 749/07 z dnia 2 kwietnia 2007 r. z późniejszymi zmianami, w sprawie określenia zasad
udostępniania nieruchomości w celu umieszczania szyldów, autoreklam, nośników reklamowych,
b.
nr 4863/05 z dnia 7 marca 2005 r. z późniejszymi zmianami, w sprawie określania zasad
organizowania w sezonie letnim ogródków gastronomicznych na gruntach stanowiących
własność Gminy Wrocław i zarządzanych przez Gminę oraz w pasie drogowym dróg publicznych
zarządzanych przez Prezydenta Wrocławia.
2. W przypadku szyldu, autoreklamy naleŜy przedłoŜyć projekt graficzny oraz lokalizację na obiekcie.
3. Mapy oraz informacje o adresie geodezyjnym terenu inwestycji moŜna uzyskać w Zarządzie Geodezji
Kartografii i Katastru Miejskiego we Wrocławiu przy al. M. Kromera 44.
4. Opinia nie zwalnia z obowiązków wynikających z prawa budowlanego tzn. wystąpienia o pozwolenie
na budowę lub zgłoszenia zamiaru prowadzenia robót budowlanych.
podpis wnioskodawcy lub pełnomocnika
*
niepotrzebne skreślić
Z20
Strona 2 z 2