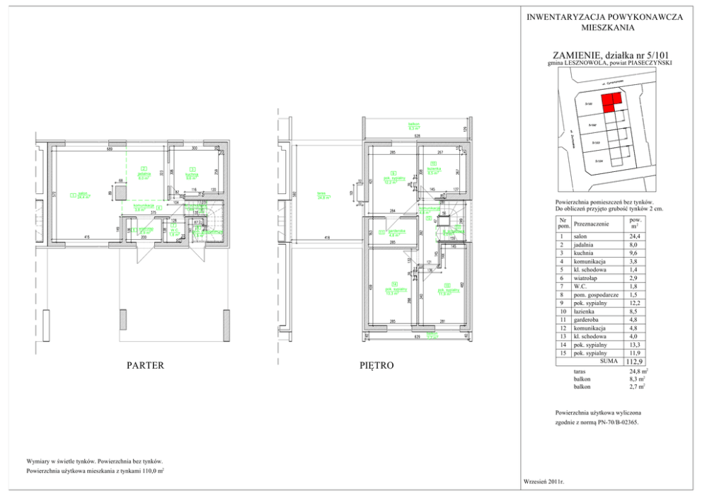
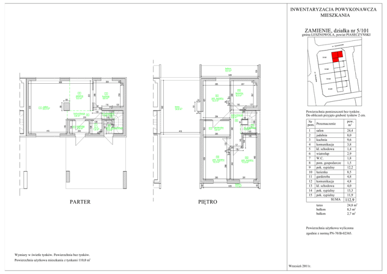
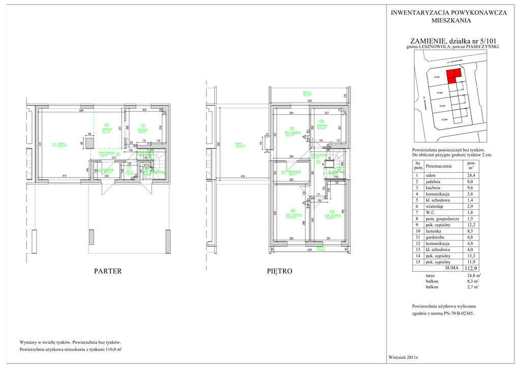
ZAMIENIE, działka nr 5/101 PARTER PIĘTRO

Transkrypt

ZAMIENIE, działka nr 5/101 PARTER PIĘTRO
INWENTARYZACJA POWYKONAWCZA
MIESZKANIA
ZAMIENIE, działka nr 5/101
gmina LESZNOWOLA, powiat PIASECZYŃSKI
balkon
8,3 m 2
2
jadalnia
8,0 m2
3
kuchnia
9,6 m 2
salon
1 24,4 m 2
9
pok. sypialny
12,2 m 2
10
łazienka
8,5 m 2
taras
24,8 m 2
komunikacja
3,8 m 2
6
kl. schodowa
1,4m 2 5
4
wiatrołap
2,9 m2
7
W.C.
1,8 m2
8
pom. gospodarcze
1,5 m2
11
13
kl. schodowa
2
4,0 m
garderoba
4,8 m 2
14
pok. sypialny
13,3 m 2
15
pok. sypialny
11,9 m 2
balkon
2,7 m 2
PARTER
Powierzchnia pomieszczeń bez tynków.
Do obliczeń przyjęto grubość tynków 2 cm.
komunikacja
4,8 m 2
12
Nr
pom. Przeznaczenie
1
2
3
4
5
6
7
8
9
10
11
12
13
14
15
PIĘTRO
salon
jadalnia
kuchnia
komunikacja
kl. schodowa
wiatrołap
W.C.
pom. gospodarcze
pok. sypialny
łazienka
garderoba
komunikacja
kl. schodowa
pok. sypialny
pok. sypialny
SUMA
taras
balkon
balkon
pow.
m2
24,4
8,0
9,6
3,8
1,4
2,9
1,8
1,5
12,2
8,5
4,8
4,8
4,0
13,3
11,9
112,9
24,8 m2
8,3 m2
2,7 m2
Powierzchnia użytkowa wyliczona
zgodnie z normą PN-70/B-02365.
Wymiary w świetle tynków. Powierzchnia bez tynków.
Powierzchnia użytkowa mieszkania z tynkami 110,0 m2
Wrzesień 2011r.