Corel DESIGNER 9.0 - technologia 2.dsf

Transkrypt

Corel DESIGNER 9.0 - technologia 2.dsf
C z e r p n ia s c ie n n a A 9 0 0 x 9 0 0
W y w ie w k a z p io n u k a n a liz a c y jn e g o
w y p ro w a d z o n a p o n a d d a c h
4 3
9 0
2 2 0
4 0 0
1 5
1 1 6 ,2 0
1 6 0
1 7
O tw o r m o n ta z o w y o w y m
9 0 P V C
P E 4 0
D o s ta w c a te c h n o lo g ii
W y k o n a w c a ro b o t
o 5 2
D o s ta w c a te c h n o lo g ii
1 5 0 s ta l
3 5 x 2 5 c m
2 2 5 P E
O tw o r m o n ta z o w y o w y m
W y k o n a w c a ro b o t
9 0
1 4 0
8 0 s ta l
6 3 P V C
9 0 P V C
F ilt r p o w ie t r z a o d lo t o w e g o o w y m ia r a c h
p o w ie r z c h n i c z y n n e j 4 0 0 x 5 0 0
3 5 x 2 5 c m
1 6
8 0 s ta l
8 0 s ta l
8 0 s ta l
L = 8 ,5 m
9 0 P V C
1 0 , S D R
4 7 0
i = 2 %
2 2 5 P E 1 0 0 , P N
9 0 P V C
P o w ie tr z e
9 3
9 5
1 5
1 1 6 ,, 4 0
1 1 6 ,2 0
7 5
7 5
O tw o r m o n ta z o w y 4 0 x 4 0
9
o 5 2
4 3
1 4 0
1 1 5 ,9 0
8
5
1 6 0
1 1 4 ,8 2
1 1 4 ,7 0
1 1 5 ,9 0
1 6 0
P E 4 0
1 7 0
1 2 5
1 1 5 ,9 0
L = 1 5 ,5 m
s y fo n
4 2 0
S z c z e g ó l "A "
S z c z e g ó l "A "
w o d a P E 4 0
i = 2 %
7 8 6
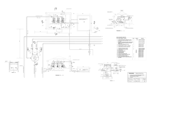
P o m p y p r o z n io w e B u s c h A q u a R 5 0 5 0 0 , V = 5 0 0 m
N = 1 1 ,0 k W
3 .
P o m p y tlo c z n e F ly g t C P 3 1 2 7 1 8 0 M T , K r z y w a 5 3 -4 3 3 0 0 -6 1 4 0 , q = 1 2 ,2 l/s , H = 1 0 ,0 m s l.w ., N = 4 ,7 k W ,
N P S H = 1 ,6 m .
9 8 0
2 .
l = 5 ,5 m
2 , 0 %
2 2 5 P E
1 6 0 P E
1 1 0 P E
C
D
W e n ty la to r W W S -5 0 - N = 5 7 0 W , V = 5 0 0 0 m
1 1 4 ,5 9
8 .
1 8
3
2
1 1 5 ,8 0
D
/h
1
R o z d z ie la c z s te r o w a n ia i k o n tr o li
2 8 5
1 ,5 % , l = 1 8 ,0 m
w o d a P E 4 0
1 6 0 P V C
1 8
/h
1 1 5 ,7 0
6 0
1 4 .
C z e r p n ia s c ie n n a ty p A
1 5 .
1 6 .
P r z e p u s tn ic a w ie lo p la s z c z y z n o w a
1 7 .
P o m p o w n ia p o s r e d n ia w g p r o je k tu s ie c i
Z a s u w y n o z o w e H A W L E z n a p e d e m e le k tr y c z n y m
ty p u A U M A
1 8 .
1 1 5 ,9 0
O tw o r m o n ta z o w y o w y m
W y r z u tn ia s c ie n n a ty p A
9 0 0 x 9 0 0
1
9 0 0 x 9 0 0
1
5 5 0 x 5 5 0
1
1
2
3 5 x 2 5 c m
1 5 0 x 6 ,3 S T A L
W y w ie w k a
1 1 5 ,7 0
1 1 5 ,8 0
5
2 2 5 P E 1 0 0 , P N
C
P rz e p u s t d la d w o c h k a b li z a s ila ja c y c h
2 4 0 0
1 0 , S D R 1 7
P rz e p u s t d la s a d y s y g n a liz a c y jn e j
1 1 5 ,8 0
P R Z E K R Ó J
D
- D
Z a s u w a k lin o w a z n a p e d e m
A u m a
1 4
1 1 5 ,0 8
2 2 5 P E
1 2 5
7 5
7 5
7 5
7 5
7 5
s ia t k a ig ie lito w a o o c z k a c h 5 m m
r u s z t d r e w n ia n y
1 8
1 0
1 x
1 x
1 1 0 P E
2 2 5 P E
1 6 0 P E
1 1 4 ,2 0
1 5 0 x 6 ,3 S T A L
1 1 4 ,8 0
4 5
1 1 4 ,1 0
3 1 0 0
1 1 5 ,6 8
2 2 5 P E
1 1 4 ,6 0
1 1 5 ,9 0
e le k try c z n y m
P r z e js c ia s z c z e ln e d la r u r o c ia g o w
w k o m o r z e z a s u w z fir m y I N T E G R A
ty p " P D -O R "
P o w ie tr z e D N 2 0 0
1 1 6 ,1 0
9 5
1 1 5 ,9 0
4 0 0
1 1 6 ,4 0
1 1 6 ,2 0
7 0
L = 6 ,5 m
D o z b io rn ik a u s re d n ia ja c e g o S 5
2 8 5
9 0 0
i = 1 %
1 1 3 ,8 0
D o z b io rn ik a u s re d n ia ja c e g o S 5
2 2 5 P E
1 1 4 ,3 0
5 0
1 6 0 P E
D o z b io rn ik a u s re d n ia ja c e g o S 5
1 1 0 P E
1 1 5 ,7 0
1 1 4 ,0 0
0
m a x
1 1 3 ,8 0
1 1
P r o je k to w a n ie , K o n s u lta c je , B u d o w a
0 5 - 5 0 0 P ia s e c z n o - C h y lic z k i, u l. M e la n ii 1 6
P R O K O B U D
1 1 3 ,0 0
m in
1 1 2 ,6 0
In w e s ty c ja :
K a n a liz a c ja s a n ita r n a d la m ie js c o w o s c i B o r e k , R e g ó w S ta r y , O le k s ó w
g m . G n ie w o s z o w . Z le w n ia s ta c ji p o d c iœ n ie n io w e j S P 1 .
O b ie k t :
S ta c ja p o d c iœ n ie n io w a S P 1 w
R y su n e k :
T e c h n o lo g ia
P ro je k ta n c i :
m g r in ¿ .M ir o s la w W n u k
m g r in ¿ . M a r c in P o d la s z e w s k i
P R Z E K R Ó J
C
- C
S p e c ja ln o s c :
m . O le k s ó w
N r u p ra w n ie n :
D a ta :
Z e n o n S u c h o ra
S ta d iu m
:
P r o je k t b u d o w la n o w y k o n a w c zy
in s t-in ¿ .
0 2 .2 0 0 9 r .
S k a la :
1 : 5 0
N r ry s .
in s t-in ¿ .
0 2 .2 0 0 9 r .
2
5 /L b /9 6
S p ra w d z a ja c y :
in ¿
P o d p is :
0 2 .2 0 0 9 r .
in s t-in ¿ .