Ankieta dla mieszkańców pgn Kluczewsko-1

Transkrypt

Ankieta dla mieszkańców pgn Kluczewsko-1
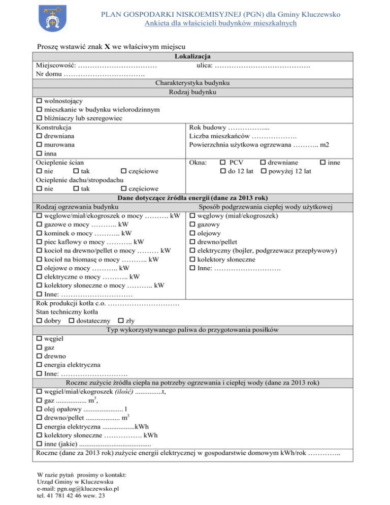
PLAN GOSPODARKI NISKOEMISYJNEJ (PGN) dla Gminy Kluczewsko
Ankieta dla właścicieli budynków mieszkalnych
Proszę wstawić znak X we właściwym miejscu
Lokalizacja
ulica: ………………………………….
Miejscowość: ……………………………
Nr domu …………………………….
Charakterystyka budynku
Rodzaj budynku
wolnostojący
mieszkanie w budynku wielorodzinnym
bliźniaczy lub szeregowiec
Konstrukcja
Rok budowy ……………...
drewniana
Liczba mieszkańców ……………….
murowana
Powierzchnia użytkowa ogrzewana ……….. m2
inna
Ocieplenie ścian
Okna:
PCV
drewniane
inne
nie
tak
częściowe
do 12 lat powyżej 12 lat
Ocieplenie dachu/stropodachu
nie
tak
częściowe
Dane dotyczące źródła energii (dane za 2013 rok)
Rodzaj ogrzewania budynku
Sposób podgrzewania ciepłej wody użytkowej
węglowe/miał/ekogroszek o mocy ………. kW węglowy (miał/ekogroszek)
gazowe o mocy ……….. kW
gazowy
olejowy
kominek o mocy ……….. kW
drewno/pellet
piec kaflowy o mocy ……….. kW
kocioł na drewno/pellet o mocy ……… kW
elektryczny (bojler, podgrzewacz przepływowy)
kolektory słoneczne
kocioł na biomasę o mocy ……….. kW
Inne: ……………………….
olejowe o mocy ……….. kW
elektryczne o mocy ……….. kW
kolektory słoneczne o mocy ……….. kW
Inne: …………………………
Rok produkcji kotła c.o. …………………………
Stan techniczny kotła
dobry dostateczny zły
Typ wykorzystywanego paliwa do przygotowania posiłków
węgiel
gaz
drewno
energia elektryczna
Inne: ……………………….
Roczne zużycie źródła ciepła na potrzeby ogrzewania i ciepłej wody (dane za 2013 rok)
węgiel/miał/ekogroszek (ilość) ...............t,
gaz ................. m3,
olej opałowy ...................... l
drewno/pellet ................... m3
energia elektryczna ..................kWh
kolektory słoneczne ……………. kWh
inne (jakie) ........................................
Roczne (dane za 2013 rok) zużycie energii elektrycznej w gospodarstwie domowym kWh/rok …………..
W razie pytań prosimy o kontakt:
Urząd Gminy w Kluczewsku
e-mail: [email protected]
tel. 41 781 42 46 wew. 23
PLAN GOSPODARKI NISKOEMISYJNEJ (PGN) dla Gminy Kluczewsko
Ankieta dla właścicieli budynków mieszkalnych
Odnawialne źródła energii
Czy wykorzystują Państwo odnawialne źródła
Czy są Państwo zainteresowani zamontowaniem
energii OZE (np. kolektory słoneczne, ogniwa
OZE (np. kolektory słoneczne, ogniwa
fotowoltaiczne, pompę ciepła)?
fotowoltaiczne, pompę ciepła)?
Tak, jakie ………………………..
Tak, jakie …………………………..
Nie
Nie
Planowane termomodernizacje:
wymiana kotła/starego, na nowy kocioł
montaż pompy ciepła
wymiana okien i/lub drzwi
ocieplenie ścian zewnętrznych
ocieplenie dachu/stropodachu
montaż kolektorów słonecznych
inne (jakie) ……………………
nie planuję termomodernizacji
Transport
Rodzaj posiadanego samochodu i ilość:
Rodzaj paliwa
osobowy - ………..
Diesel- ………..
dostawczy - …………
Benzyna - …………
ciężarowy - ………..
LPG - ………..
Ilość km przejechanych na terenie gminy Kluczewsko w ciągu roku (dane za 2013 rok):
osobowy - ………..
dostawczy - …………
ciężarowy - ………..
Dziękujemy za wypełnienie ankiety!
W razie pytań prosimy o kontakt:
Urząd Gminy w Kluczewsku
e-mail: [email protected]
tel. 41 781 42 46 wew. 23