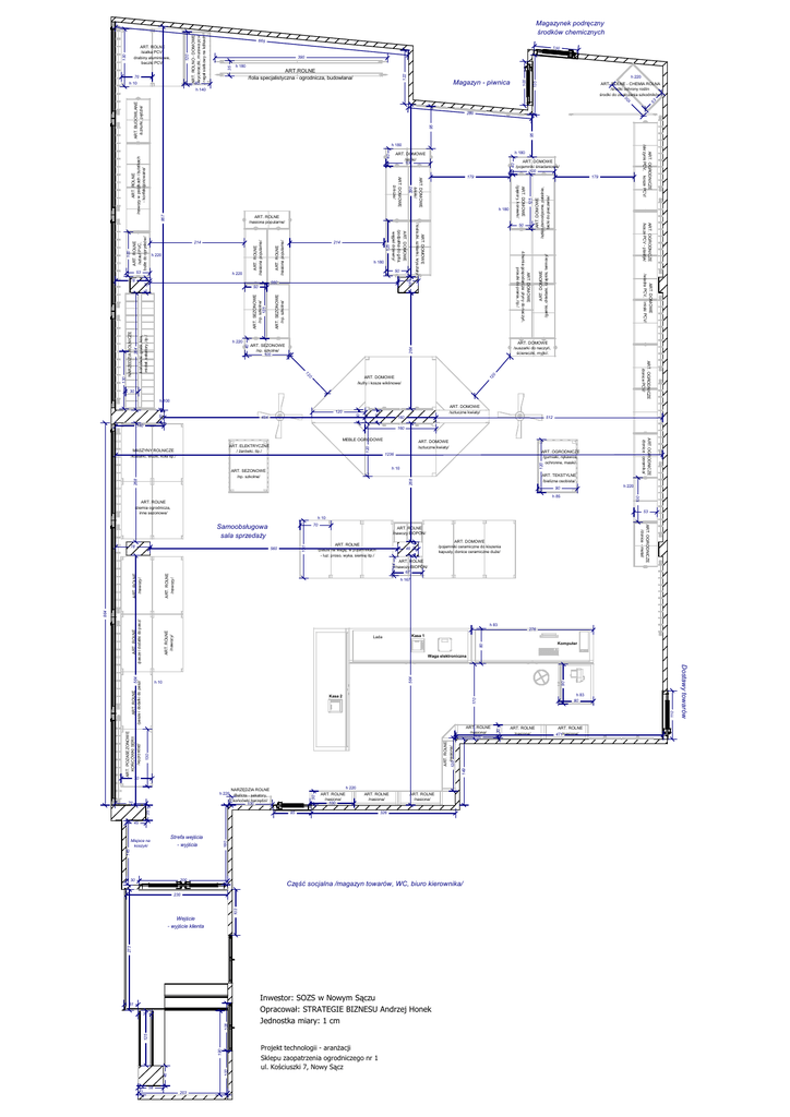
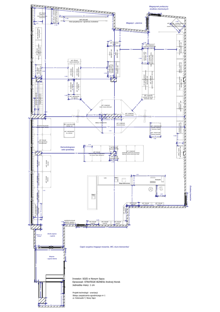
SOZS w NOWYM SĄCZU - Strategie Biznesu

Transkrypt

SOZS w NOWYM SĄCZU - Strategie Biznesu
100
390
100
h 220
Magazyn - piwnica
60
135
ART.ROLNE
/folia specjalistyczna - ogrodnicza, budowlana/
122
h 180
35
120
70
h 10
ART. ROLNO - DOMOWE
/wycieraczki, murawa pcv/
! regał siatkowy na kółkach !
130
ART. ROLNE
/siatka PCV,
drabiny aluminiowe,
beczki PCV/
Magazynek podręczny
środków chemicznych
665
ART. ROLNE - CHEMIA ROLNA
/środki ochrony roślin
środki do zwalczania szkodników/
53
ART. BUDOWLANE
/sznurki, pędzle/
0
10
h 140
95
95
280
ART. ROLNE
/nasiona popularne/
125
125
ART. DOMOWE
/szkło Ŝaroodporne, patelnie,
tacki do pieczenia/
390
36
ART. SEZONOWE
/np. szkolne/
264
0
ART. DOMOWE
/kufry i kosze wiklinowe/
12
ART. ROLNE
/nasiona popularne/
ART. SEZONOWE
/np. szkolne/
125
0
12
130
ART. DOMOWE
/garnki, chlebaki, czajniki, termosy/
867
34
40
40
ART. ROLNE
/nawozy w paczkach i butelkach
- konfekcjonowane/
100
ART. ROLNE
/szlauf PVC,
butle do oprysków/
40
ART. DOMOWE
/suszarki do naczyń,
ściereczki, myjki/.
ART. OGRODNICZE
/donice PCV/
NARZEDZIA ROLNICZE
264
/końcówki: grabi, kos,
mioteł, sekatory, itp./
ART. SEZONOWE
/np. szkolne/
100
ART. DOMOWE
/wiadra PCV, miski PCV/
46
ART. OGRODNICZE
/kosze PCV - plastyk/
50
ART. DOMOWE
/chemia gospodarcza: płyny do naczyń,
proszki do prania, itp./
50
560
50
h 220
h 180
ART. DOMOWE
/gąsiory, konewki/
78
h 180
179
ART. DOMOWE
/ kieliszki, szklanki, kryształy/
h 220
ART. DOMOWE
/podpałka do grila,
węgiel drzewny/
53
214
ART. DOMOWE
/pojemniki śniadaniowe/
100
179
ART. DOMOWE
/słoiki/
ART. DOMOWE
/znicze/
214
h 220
h 180
ART. DOMOWE
/słoiki/
100
ART. ROLNE
/nasiona popularne/
ART. OGRODNICZE
/skrzynki PCV, kosze PCV/
h 180
30
h 100
ART. DOMOWE
/sztuczne kwiaty/
30
30
30
120
454
160
110
512
160
120
ART.OGRODNICZE
/donice - ceramika/
MEBLE OGRODOWE
ART. DOMOWE
/sztuczne kwiaty/
ART. OGRODNICZE
/gumiaki, rękawice
ochronne, maski/
1236
120
ART. ELEKTRYCZNE
/ Ŝarówki, itp./
MASZYNY ROLNICZE
/kosiarki, wózki, koła itp./
h 10
ART. TEKSTYLNE
/bielizna osobista/
268
268
ART. SEZONOWE
/np. szkolne/
h 220
90
100
h 85
ART. ROLNE
/ziemia ogrodnicza,
inne sezonowe/
53
h 10
ART. DOMOWE
/pojemniki ceramiczne do kiszenia
kapusty, donice ceramiczne duŜe/
33
560
ART. ROLNE
/nawozy BIOPON/
ART. ROLNE
/pasze na wagę, w pojemnikach
- luz: proso, wyka, siemię itp./
130
78
ART. OGRODNICZE
/donice - metal/
70
Samoobsługowa
sala sprzedaŜy
46
ART. ROLNE
/nawozy/
ART. ROLNE
/nawozy/
ART. ROLNE
/nawozy/
h 167
864
ART. ROLNE
/pasze i dodatki do pasz/
44
ART. ROLNE
/nawozy BIOPON/
67
276
Kasa 1
80
Komputer
h 10
90
564
Waga elektroniczna
h 83
80
ART. ROLNE
120/nasiona/
149
130
ART. POZASEZONOWE
KOŃCÓWKI SERII
/wyprzedaŜ/
ART. ROLNE
/nasiona/
100
70
h 220
20
30
NARZĘDZIA ROLNE
h 220 /Bellota - sekatory,
końcówki narzędzi/
100
35
70
ART. ROLNE
/nasiona/
100
ART. ROLNE
/nasiona/
85
ART. ROLNE
/nasiona/
326
45
145
180
Strefa wejścia
- wyjścia
Miejsce na
koszyki
30
200
Część socjalna /magazyn towarów, WC, biuro kierownika/
103
230
273
Wejście
- wyjście klienta
31
Inwestor: SOZS w Nowym Sączu
Opracował: STRATEGIE BIZNESU Andrzej Honek
Jednostka miary: 1 cm
21
46
100
190
125
108
31
58
203
Projekt technologii - aranŜacji
Sklepu zaopatrzenia ogrodniczego nr 1
ul. Kościuszki 7, Nowy Sącz
30
110
170
Kasa 2
ART. ROLNE
/nasiona/
ART. ROLNE
471/nasiona/
Dostawy towarów
ART. ROLNE
564
/pasze i dodatki do pasz/
h 83
Lada