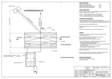
Linia - fundamenty PL.cdr

Transkrypt

Linia - fundamenty PL.cdr
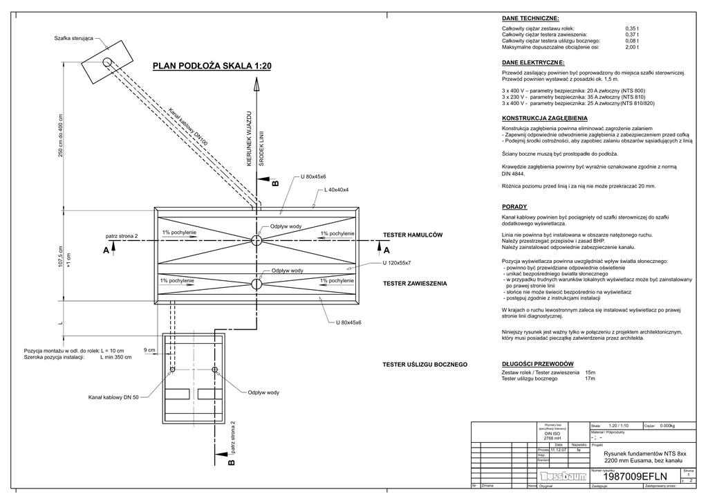
DANE TECHNICZNE:
Całkowity ciężar zestawu rolek:
Całkowity ciężar testera zawieszenia:
Całkowity ciężar testera uślizgu bocznego:
Maksymalne dopuszczalne obciążenie osi:
Szafka sterująca
0,35 t
0,37 t
0,08 t
2,00 t
DANE ELEKTRYCZN E:
PLAN PODŁOŻA SKALA 1:20
Przewód zasilający powinien być poprowadzony do miejsca szafki sterowniczej.
Przewód powinien wystawać z posadzki ok. 1,5 m.
3 x 400 V – parametry bezpiecznika: 20 A zwłoczny (NTS 800)
3 x 230 V - parametry bezpiecznika: 35 A zwłoczny (NTS 810)
3 x 400 V - parametry bezpiecznika: 25 A zwłoczny (NTS 810/820)
KIERUNEK WJAZDU
250 cm do 400 cm
na
łk
ab
lo
wy
DN
10
0
KONSTRUKCJA ZAGŁĘBIENIA
Konstrukcja zagłębienia powinna eliminować zagrożenie zalaniem
- Zapewnij odpowiednie odwodnienie zagłębienia z zabezpieczeniem przed cofką
- Podejmij środki ostrożności, aby zapobiec zalaniu obszarów sąsiadujących z linią
ŚRODEK LINII
Ka
Ściany boczne muszą być prostopadłe do podłoża.
Krawędzie zagłębienia powinny być wyraźnie oznakowane zgodnie z normą
DIN 4844.
B
U 80x45x6
Różnica poziomu przed linią i za nią nie może przekraczać 20 mm.
L 40x40x4
PORADY
Kanał kablowy powinien być pociągnięty od szafki sterowniczej do szafki
dodatkowego wyświetlacza.
Odpływ wody
1% pochylenie
107,5 cm
+1 cm
patrz strona 2
1% pochylenie
A
TESTER HAMULCÓW
Linia nie powinna być instalowana w obszarze natężonego ruchu.
Należy przestrzegać przepisów i zasad BHP.
Należy zainstalować odpowiednie zabezpieczenie kanału.
A
Pozycja wyświetlacza powinna uwzględniać wpływ światła słonecznego:
- powinno być przewidziane odpowiednie oświetlenie
- unikać bezpośredniego światła słonecznego
- w przypadku trudnych warunków lokalnych wyświetlacz może być zainstalowany
po prawej stronie linii
- słońce nie może świecić bezpośrednio na wyświetlacz
- postępuj zgodnie z instrukcjami instalacji
U 120x55x7
Odpływ wody
1% pochylenie
1% pochylenie
TESTER ZAWIESZENIA
W krajach o ruchu lewostronnym zaleca się instalować wyświetlacz po prawej
stronie linii diagnostycznej.
L
U 80x45x6
Niniejszy rysunek jest ważny tylko w połączeniu z projektem architektonicznym,
który musi posiadać pieczątkę zatwierdzenia przez architekta.
Pozycja montażu w odl. do rolek: L = 10 cm
Szeroka pozycja instalacji:
L min 350 cm
9 cm
DŁUGOŚCI PRZEWODÓW
TESTER UŚLIZGU BOCZNEGO
Zestaw rolek / Tester zawieszenia
Tester uślizgu bocznego
15m
17m
Odpływ wody
patrz strona 2
Kanał kablowy DN 50
Wymiary bez
specyfikacji tolerancji
Data
Proces 11.12.07
Insp.
B
Standard
1:20 / 1:10
Skala:
Ciężar:
0.000kg
Materiał / Półprodukty
DIN ISO
2768 mH
-; Nazwisko
fa
Projekt
Rysunek fundamentów NTS 8xx
2200 mm Eusama, bez kanału
Numer rysunku
Strona
1987009EFLN
Nr
Zmiana
Nazwa Oryginał
Zastępuje:
Zastępowany przez:
1
z
2
PRZEKRÓJ A-A SKALA 1:20
TESTER UŚLIZGU BOCZNEGO SKALA 1:20
Kanał kablowy DN100
1% pochylenie
26,5 cm
Z
1% pochylenie
L30x30x4
10 cm
po
ch
Odwodnienie
yle
nie
e
ni
Kanał kablowy DN50
le
hy
c
m
%
.2
in
po
26 cm
U 120x55x7
101 cm +0,5 cm
mi
n.2
%
235 cm
+1 cm
40 cm
U 80x45x6
Odwodnienie
U 80x45x6
PRZEKRÓJ B-B SKALA 1:20
9
50 cm
13,25 cm
±0,3 cm
5 cm
68 cm +0,5 cm
32,5 cm
±0,5 cm
Kanał kablowy DN50
Kanał kablowy DN100
1% pochylenie
U 80x45x6
Odwodnienie
U 120x55x7
Odwodnienie
Z SKALA 1:10
U 80x45x6
Odwodnienie
L 40x40x4
Łapa kotwicząca
Wymiary bez
specyfikacji tolerancji
Standard
Ciężar:
0.000kg
Materiał / Półprodukty
-; Nazwisko
Proces 11.12.07
Insp.
1:20 / 1:10
Skala:
DIN ISO
2768 mH
fa
Projekt
Rysunek fundamentów NTS 8xx
2200 mm Eusama, bez kanału
Numer rysunku
Strona
1987009EFLN
Nr
Zmiana
Nazwa Oryginał
Zastępuje:
Zastępowany przez:
2
z
2