rzut koncep1. Model (1)

Transkrypt

rzut koncep1. Model (1)
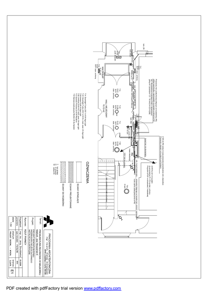
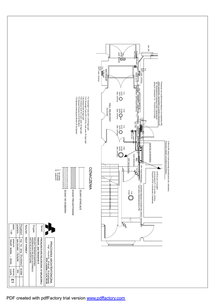
Istn. ZK
Przeciwpożarowy
wył. prądu
T:D
O:OE
podł. bezpośr.
YKY 4x70 w rurze AROT 50
O:ON
AW
W:P2
stan. ochrony
T:A1
Wlz układać pod stropem piwnicy
T:A
O:O1
W:P1
stan. ochrony
HALL WEJŚCIOWY
10,12 m2
SZ
YDY 5x6 do piwnicy
OZNACZENIA
ŚCIANY DO ROZBIÓRKI
ŚCIANY PROJEKTOWANE
ŚCIANY ISTNIEJĄCE
Istn. oświetlenie klatki schodowej
T:B
O:istn.
istn. kanał instalacyjny - przewody biegnące w kanale inst. skrócić i wprowadzić
na te same zabezpieczenia w RG
2xYDYp 2x1,5 na piętro
do przycisków P1, P2 na stan. ochrony
Przyciski LP351 w obudowie 2 modułowej
Z SK do RG ułożyć nowe przewody (przedłużenie istn. obwodów)
Przewody układać w bruzdach pod tynkiem
T:B1
O:ON
W:P2
stan. ochrony
nowa lokalizacja
RG
kanał inst. do demontażu
istn. uziem. RG
R<10 om
T:A
O:O1
W:P1
stan. ochrony
istn. RG
Przewody inst. podtynkowej odłączyć od rozdzielnicy RG,
odkuć spod tynku i wprowadzić na zaciski w skrzynce SZ.
SZ - Rozdzielnica modułowa 2x24 z drzwiczkami
pełnymi i zaciskami 1,5 - 16 mm2 h=3,0 m (dół)
T:C
O:O1
W:P1 stan. ochrony
HDGs 3x1,5
WIATROŁAP
5,32 m2
T:C
O:O1
W:P1 stan. ochrony
T:A Downlight Turbo 255 1x18 W Aga Light
T:A1 Downlight Turbo 255 1x18 W z mod. awar. 2h Aga Light
T:B Ametyst 2x24 W Aga Light
T:B1 Ametyst 2x24 W z mod. awar. 2h Aga Light
T:C Oprawa Finestra 2x18 W Plexiform
T:D Oprawa ewakuacyjna Monitor 2h Es-System
T: typ oprawy
O: nr obwodu
W: wyłącznik
PRACOWNIA ARCHITEKTONICZNA
PROKURATURA REJONOWA W MALBORKU
Malbork, plac Słowiański 6
PROJEKT REMONTU BUDYNKU
PRZEBUDOWA WEJŚCIA GŁÓWNEGO
INSTALACJA ELEKTRYCZNA
RZUT PIWNICY
E1
PDF created with pdfFactory trial version www.pdffactory.com