D02 - Wyk - Dyrekcja Rozbudowy Miasta Gdańska

Transkrypt

D02 - Wyk - Dyrekcja Rozbudowy Miasta Gdańska
OZNACZENIA NA RYSUNKU:
kierunek układania płytek gresowych
gres szkliwiony 60x60cm
antypoślizgowe R10,
mrozoodporne,
klasa ścieralności min. 4
kolor płytek: popielaty(jasnoszary)
kolor fugi: szary
gres szkliwiony 30x60cm
antypoślizgowe R10,
mrozoodporne,
klasa ścieralności min. 3
kolor płytek: popielaty(jasnoszary)
kolor fugi: szary
kratka odpływowa
punkt poboru wody
1162.5
1162.5
20.0
właz rewizyjny do instalacji C.O.
nowe obudowy grzejników
nowe obudowy grzejników
Materace gimnastyczne mocowane do
ścian na wysokość poprzeczki bramki
282.5
600.0
elektryczna suszarka do rąk
ławki szatniowe z wieszakami
Materace gimnastyczne mocowane do
ścian na wysokość poprzeczki bramki
miejsce wstawienia słupa
do podwieszenia siatki
300.0
300.0
dozownik na mydło
S
200.0
20.0
D
600.0
282.5
Kurtyna podnoszona
elektrycznie
Bramka do piłki ręcznej
Bramka do piłki ręcznej
Tablica do koszykówki
składana mechanicznie
Tablica do koszykówki
składana mechanicznie
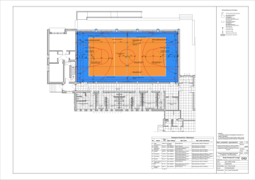
0.1 Sala Gimnastyczna
280.93 m²
180.0
350.0
350.0
180.0
75.0
350.0
385.0
75.0
miejsce wstawienia słupa
do podwieszenia siatki
miejsce wstawienia słupa
do podwieszenia siatki
20.0
788.5
900.0
1088.5
385.0
miejsce wstawienia słupa
do podwieszenia siatki
2368.5
Tablica do koszykówki
200.0
miejsce wstawienia słupa
do podwieszenia siatki
elektroniczna tablica wyników
h=400cm
50.0
144.5
200.0
0.2 Korytarz
46.79 m²
S
D
S
S
S
20.0
788.5
350.0
0.3 Łazienka Nauczycieli
4.10 m²
0.4 Kantorek
12.65 m²
D
D
D
D
D
0.10 WC
6.17 m²
0.9 Szatnia odzieży wierzchniej
13.01 m²
0.5 Szatnia
8.83 m²
D
0.6 Umywalnia
10.94 m²
0.7 Umywalnia
10.70 m²
D
0.11 Magazynek sprzętu
8.63 m²
0.8 Szatnia
8.79 m²
UWAGA:
1. Wszystkie wymiary bezwzględnie sprawdzić na
miejscu inwestycji.
2. Wszystkie elementy wykończenia wnętrz muszą
uzyskać akceptację Dyrektora Szkoły i Projektanta.
Zestawienie Powierzchni - Wykończenia
Nr
0.1
Nazwa
Pow.
(m²)
Wyk. Podłogi
280.93 m² Posadzka
Sportowa
46.79 m² Gres 60x60cm
4.10 m²
Gres 30x60cm
0.4
0.5
Sala
Gimnastyczna
Korytarz
Łazienka
Nauczycieli
Kantorek
Szatnia
12.65 m²
8.83 m²
Gres 30x60cm
Gres 30x60cm
0.6
Umywalnia
10.94 m²
Gres 30x60cm
0.7
Umywalnia
10.70 m²
Gres 30x60cm
0.8
Szatnia
8.79 m²
Gres 30x60cm
0.2
0.3
0.9
Szatnia odzieży 13.01 m²
wierzchniej
0.10 WC
6.17 m²
Gres 30x60cm
0.11 Magazynek
sprzętu
11
Gres 30x60cm
8.63 m²
411.54 m²
Gres 30x60cm
Wyk. Ścian
Wyk. Sufitu (wysokość)
Wyk. posadzek i wyposażenie
Farba lateksowa
Sufit tynkowany (545cm<H<593.5cm)
Farba lateksowa
Płytki ceramiczne do h=210cm,
powyżej farba lateksowa
Farba lateksowa
Płytki ceramiczne do h=210cm,
powyżej farba lateksowa
Płytki ceramiczne do h=210cm,
powyżej farba lateksowa
Płytki ceramiczne do h=210cm,
powyżej farba lateksowa
Płytki ceramiczne do h=210cm,
powyżej farba lateksowa
Farba lateksowa
Sufit podwieszony (H=270cm)
Sufit podwieszony (H=250cm)
Sufit tynkowany (330cm<H<355cm)
Autor:
arch. Beata Jurago
Płytki ceramiczne do h=210cm,
powyżej farba lateksowa
Farba lateksowa
Sufit podwieszony (H=250cm)
Nr Upr.:
5969/GD/94
Sufit tynkowany (347cm<H<355cm)
Sprawdzający: arch. Paweł Jurago
Sufit tynkowany (330cm<H<355cm)
Sufit tynkowany (330cm<H<355cm)
Sufit tynkowany (330cm<H<355cm) - w kabinie
ustępowej sufit podwieszony (H=250cm)
Sufit tynkowany (330cm<H<355cm) - w kabinie
ustępowej sufit podwieszony (H=250cm)
Sufit tynkowany (330cm<H<355cm)
Skala: 1 : 100
Branża:
Przebudowa sali gimnastycznej i zaplecza szatniowo arch.
sanitarnego oraz docieplenie ścian zewnętrznych w
Gimnazjum Nr 8 Gdańsk, ul. Żabi Kruk 5, dz. nr 200, Umowa:
obręb 99
Faza:
PW
Dyrekcja Rozbudowy Miasta Gdańska,
ul. Żaglowa 11, 80-560 Gdańsk
Studio Kwadrat B.P.Jurago
Pracownia:
80-150 Gdańsk ul. Legnicka 15/6 tel./fax. 660-80-27
Nr Upr.:
PO/KK/205/2008
Opracowanie:
arch. Karol Wyrzykowski
Data: 12.2015
D02