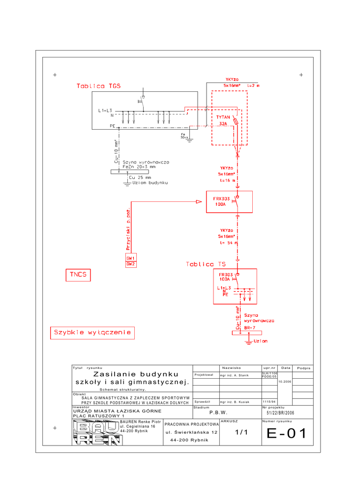
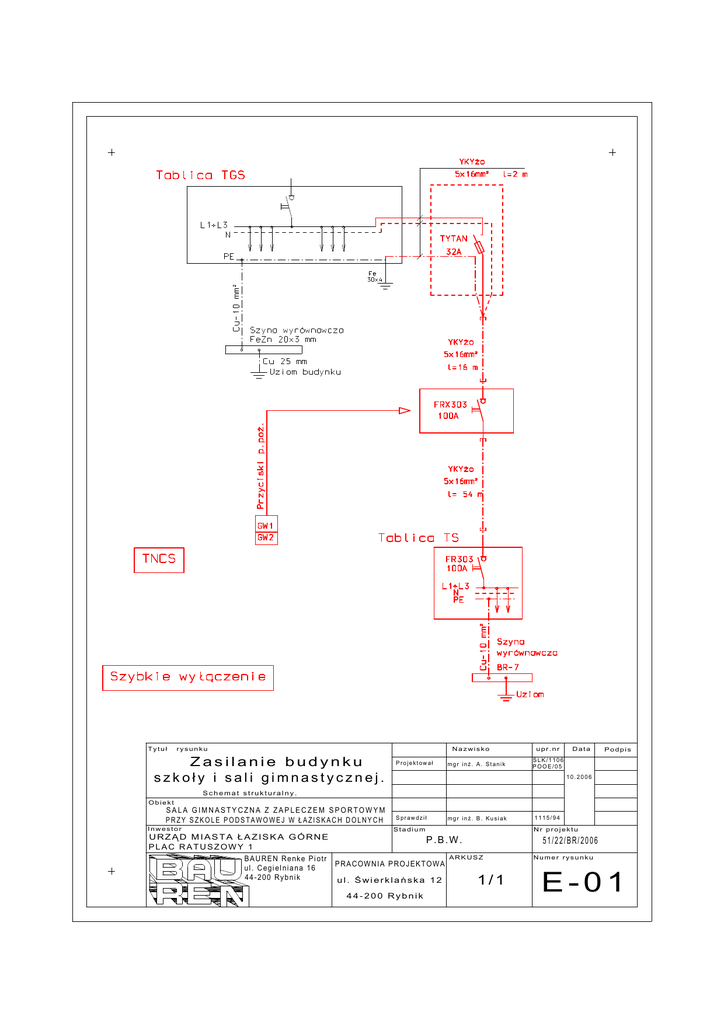
szkoły i sali gimnastycznej. Zasilanie budynku

Transkrypt

szkoły i sali gimnastycznej. Zasilanie budynku
Tytuł
rysunku
Nazwisko
Zasilanie budynku
szkoły i sali gimnastycznej.
P rojekt ow ał
mgr inŜ. A. St anik
upr.nr
Data
Podpis
SLK/1106
POOE/05
10.2006
Schemat st rukt ural ny.
Obiekt
SALA GIMNASTYCZNA Z ZAPLECZEM SPORTOWYM
PRZY SZKOLE PODSTAWOWEJ W ŁAZISKACH DOLNYCH
Inwestor
S pr aw dził
mgr inŜ. B . Kusi ak
Stadium
URZĄD MIASTA ŁAZISKA GÓRNE
PLAC RATUSZOWY 1
BAUREN Renke Pi otr
ul . Cegi el niana 16
44-200 Rybnik
1115/94
Nr projektu
P.B.W.
51/22/BR/2006
ARKUSZ
Numer rysunku
P R A C OW N I A P R O J EK T O W A
ul. Świerklańska 12
44-200 Rybnik
1/1
E-01
Tytuł
rysunku
Nazwisko
Sterowanie
wyłącznikiem p.poŜ.
Pr ojekt ow ał
m gr inŜ . A. St anik
upr.nr
Data
Podpis
SLK/ 1106
POOE/05
10.2006
Schemat zasadniczy
Obiekt
SAL A GI MNAS TYCZNA Z ZAPL ECZE M SP ORTOWYM
PRZY SZK OLE PODSTAWOWEJ W ŁAZISK ACH DOLNY CH
Inwestor
Sprawdził
m gr inŜ. B. Kusiak
Stadium
URZĄD MIASTA ŁAZISKA GÓRNE
PLAC RATUSZOWY 1
B A UR E N R e n k e P i o t r
u l . Ce g i e l n i a n a 1 6
4 4 - 2 0 0 Ry b n i k
1115/94
Nr projektu
P.B.W.
51/22/BR/2006
ARKUSZ
Numer rysunku
P R A C O WN I A P R O J E K T O WA
ul. Świerklańska 12
44-200 Rybnik
1/1
E-02
Tytuł
rysunku
Nazwisko
Skrzynka zabezpieczenia wlz-etu sali
oraz wyłącznika p.poŜ.
Pr ojekt ow ał
m gr inŜ . A. St anik
upr.nr
Data
Podpis
SLK/ 1106
POOE/05
10.2006
P la n ro zmi es zc ze ni a i e le wa cj a
Obiekt
SAL A GI MNAS TYCZNA Z ZAPL ECZE M SP ORTOWYM
PRZY SZK OLE PODSTAWOWEJ W ŁAZISK ACH DOLNY CH
Inwestor
Sprawdził
m gr inŜ. B. Kusiak
Stadium
URZĄD MIASTA ŁAZISKA GÓRNE
PLAC RATUSZOWY 1
B A UR E N R e n k e P i o t r
u l . Ce g i e l n i a n a 1 6
4 4 - 2 0 0 Ry b n i k
1115/94
Nr projektu
P.B.W.
51/22/BR/2006
ARKUSZ
Numer rysunku
P R A C O WN I A P R O J E K T O WA
ul. Świerklańska 12
44-200 Rybnik
1/1
E-03
L333
Tytuł
rysunku
Nazwisko
Tablica 400/230V
"T-S"
Pr o j e k t o w a ł
mgr inŜ. A. St anik
upr.nr
Data
Podpis
SLK/1106
POOE/ 05
04.2006
Schem at zas adni cz y
Obi ekt
S AL A G IM NA S TY CZ N A Z Z AP L EC ZE M S PO R TO WY M
P R ZY S Z KOL E P OD S T A WOWE J W Ł A ZI S K A C H D OL NY C H
Inwestor
URZĄD MIA STA Ł A ZIS K A GÓ RNE
P L A C R A TU S ZOW Y 1
B AU R E N R e n k e P i o t r
u l. C e g ie ln ia n a 1 6
4 4 -2 0 0 Ry b n ik
Sp ra wdz ił
mgr inŜ. B. Kus iak
Stadium
1115/ 94
Nr projektu
P . B. W .
51/22/BR/2006
ARKUSZ
N u me r r y s u n k u
P RA C O W N I A P R O J E K T OW A
ul. Świerklańska 12
44- 200 Rybnik
1/2
E-04
Tytuł
rysunku
Nazwisko
Tablica 400/230V
"T-S"
Pr o j e k t o w a ł
mgr inŜ. A. St anik
upr.nr
Data
Podpis
SLK/1106
POOE/ 05
04.2006
Schemat z asadni c zy .
Obi ekt
S AL A G IM NA S TY CZ N A Z Z AP L EC ZE M S PO R TO WY M
P R ZY S Z KOL E P OD S T A WOWE J W Ł A ZI S K A C H D OL NY C H
Inwestor
URZĄD MIA STA Ł A ZIS K A GÓ RNE
P L A C R A TU S ZOW Y 1
B AU R E N R e n k e P i o t r
u l. C e g ie ln ia n a 1 6
4 4 -2 0 0 Ry b n ik
Sp ra wdz ił
mgr inŜ. B. Kus iak
Stadium
1115/ 94
Nr projektu
P . B. W .
51/22/BR/2006
ARKUSZ
N u me r r y s u n k u
P RA C O W N I A P R O J E K T OW A
ul. Świerklańska 12
44- 200 Rybnik
2/2
E-04
Tytuł
rysunku
Nazwisko
Tablica 400/230V
"T-S"
Pr o j e k t o w a ł
mgr inŜ. A. St anik
upr.nr
Data
Podpis
SLK/1106
POOE/ 05
04.2006
P l a n r oz mi es z cz en i a i el e wa cj a
Obi ekt
S AL A G IM NA S TY CZ N A Z Z AP L EC ZE M S PO R TO WY M
P R ZY S Z KOL E P OD S T A WOWE J W Ł A ZI S K A C H D OL NY C H
Inwestor
URZĄD MIA STA Ł A ZIS K A GÓ RNE
P L A C R A TU S ZOW Y 1
B AU R E N R e n k e P i o t r
u l. C e g ie ln ia n a 1 6
4 4 -2 0 0 Ry b n ik
Sp ra wdz ił
mgr inŜ. B. Kus iak
Stadium
1115/ 94
Nr projektu
P . B. W .
51/22/BR/2006
ARKUSZ
N u me r r y s u n k u
P RA C O W N I A P R O J E K T OW A
ul. Świerklańska 12
44- 200 Rybnik
1/1
E-05
czujka optyczna
dymowa
piętro I
piętro I
CD
HLGs 2x1,0
YnTKSYekw 1x2x0,8
klapa oddymiania z
siłownikiem
centrala sterowania
oddymianiem
CSO
YDYŜo
Tablica T-S
piętro II
3x2,5
YDY 3x1,5
piętro I
YnTKSYekw
1x2x0,8
ROP-2
piętro I
YnTKSYekw
1x2x0,8
ROP-1
PP-1
parter
przycisk
alarmu
poŜarowego
(czerwony)
parter
przycisk
przewietrzania
(zielony)
Tytuł
rysunku
Nazwisko
Schemat połączeń
Projektował
m g r in Ŝ . A . St a n i k
upr.nr
Data
Podpis
SLK/1106
POOE/ 05
10.2006
klapy dymowej.
Obiekt
S A LA GIMNA S T Y CZ N A Z Z A P L EC Z E M S P OR T OWY M
P R Z Y S Z KO L E PO D ST A W O W EJ W Ł A Z I S K AC H D O L N YC H
Inwestor
Sprawdził
m g r in Ŝ . B . Ku s i a k
Stadium
URZĄD M IASTA ŁAZISK A GÓRNE
PLAC RATUSZOWY 1
B A U R E N R e n k e P i o tr
ul. Cegielniana 16
4 4 -2 0 0 R y b n i k
1115/ 94
Nr projektu
P .B .W.
51/22/BR/2006
ARKUSZ
Numer rysunku
P R A C O W N IA P R OJ E K T OW A
ul. Świerklańska 12
44-200 Rybnik
1/1
E-06
A 1 - P G 4 0 0 N/H - S T
A 2 - P G 4 0 0 N/H- G - S T
B 1 - CO4 2 4 9
B 2 - CO4 1 4 9
B 3 - CO4 1 3 6
C1 - P D. 7 0 N/H - A
D1 - K 3 3 6 D- O
E 1 - S DS 1 3 6
F 1 - T L 3 3 6 D- O
G1 - D2 2 5 .2 x 1 8 H IP 4 4 CS T
E W 1 - OP 1 - S 8 T A 3 N
E W 1 S - OP 1 - S 8 T A 3 N+ S I A T K A OCH RONNA
E W 2 - DS 1 - S 8 T A 3 N+ UC HW Y T DO Ś CI A NY
A W - OP RA W A W Y P OS A ś ONA W M ODUŁ OŚ W IE T L E NIA
A W A RY J NE GO E S - A W
S al a gi mn as t c zn a
0.01
UW A GA !!
NA HA L I OP RA W Y B 2 OS Ł ON IC S I A T K A OCHRO NNĄ
Po m. s p r z ę t u s p o r t .
0.18
Dzwonek
HP
Wia tr ol ap
0.02
Kor yt ar z
0.03
Sza tn ia 1
0.17
Sz a t n i a
0.12
U my w. n a t r y s k i
0.15
WC c h .
0.09
ni epe łsp r .
U my w. n a t r y s k i
0.07
WC d z .
0.14
Kla tk a sc h.
0.04
Pom . g o sp .
0.10
Sza tn ia c hł op có w
0.06
W C Ni e p e ł s p r .
0.13
WC
0.16
Sz a t n i a
0.11
WC
0.08
tr ene ra
ł ąc zn ik
0.05
T y t uł
r y s un k u
N az w i s k o
In s ta la c j e e le k tr yc zne w
po mi e s zc ze ni a c h za ple c za s a li .
Pr oj ek t ował
mgr i nŜ. A. St ani k
upr. nr
Da t a
P o dp i s
SL K/ 11 06
PO OE/ 05
10. 2006
P l a n r o z mi e s z c z e n i a a p a r a t u r y .
O bi ek t
S A L A GIM NA S TY CZNA Z ZA P L E CZE M S P ORTOW Y M
P R ZY S ZK O L E P O DS T A WO W E J W Ł A Z I S K A C H D O L NY C H
I n w es t o r
Spr awdz i ł
mgr i nŜ . B. Kusi ak
S t a di u m
U RZ ĄD MI AS T A ŁA Z I S KA GÓ RN E
P L A C R A TU S Z O W Y 1
B A URE N Re n ke P i o t r
u l . Ce g i e l n i a n a 1 6
4 4 - 20 0 Ry bn i k
111 5/ 94
.
P.B.W
5 1 / 2 2 / B R/ 2 0 0 6
A RK US Z
N u me r r y s u nk u
P R A CO WNI A P R OJE K TO WA
u l . Ś wi e r kl a ńs k a 1 2
44-200 Rybni k
1/1
E-07
C1
TS/04z
A1
A1
A1
A1
A1
TS /05
TS /06
TS /07
TS /08
TS /09
C1
TS/04z
G
B2
Aw
G
B2
Aw
TS /10
B2
TS /10
Aw
TS /10
C1
TS/04z
A1
A1
A1
A1
A1
TS /05
TS /06
TS /07
TS /08
TS /09
C1
G
TS/04z
G
TS /10
TS/04z
CSO
B3
AW
kl apa
TS /04
E W1
B1
B1
B1
B1
TS/ 04a
TS/ 04a
TS/ 04a
TS/ 04a
B1
K la t k a s c h .
1.01
TS/04z
B1A w
TS/ 04a
AW
od dy m.
TS /04
E W1
0 1k
Aw
Aw
ROP-2
TS/01k
W id o w n i a
1.02
C1
TS/04z
TS /17
SZ -CW
TS /16
TS /16
TS /18
SZ -CW
TS /16
HP
CD
B1
Aw
L EGE N DA :
A1 - PG 400 N/H-ST
A2 - PG 400 N/H-G-ST
B1 - CO4 249
B2 - CO4 149
B3 - CO4 136
C1 - PD.70 N/H-A
D1 - K336 D-O
E1 - SDS 136
F1 - TL 336 D-O
G1 - D225.2x18H IP44CST
EW1 - OP 1-S8TA3N
EW1S - OP1-S 8TA3N+SI ATKA OCH RONNA
EW2 - DS1-S8TA3N +UCHWYT DO ŚCIANY
AW - OPRAWA W YPOSAśON A W MODU Ł OŚWIET LENIA
AWA RYJNE GO ES -AW
UWA GA!!
NA HA LI OPRAWY B2 OSŁONIC SIATKA OC HRONNĄ
TS/01k
L EGE N DA :
ł ą c z n i k j e d n o b i e g un o w y , p o d ś w ie t l a n y
p r z y c is k p o d ś w ie t l a n y
gniazdo 16A/230V podwójne
dzwonek szkolny
SZ -CW
S k r z y nk a z a s i l a ją c a c e n t r al i w e n t y l ac y j n e j
CD
ROP-2
CSO
czujka dymu
p r z y c i s k a l a rm u p o Ŝ a r o w e g o
c e n t r a l a s t e r o w an i a o d d y m i a n i e m
T yt u ł
G
kolumna głośnikowa
r y s u nk u
Na z wi s k o
Ośw i etl en i e na sal i
g i mn a s t y c z n e j i wi d o w n i
Pro j e kto wa ł
mg r in Ŝ. A. Sta n i k
u pr . n r
Da t a
Po d p i s
SLK/1 10 6
POOE/0 5
1 0.2 00 6
Pl a n r o z mi e s z c z e n i a a p a r a t u r y .
Ob ie k t
S A L A GIM NA S T Y CZ NA Z Z A P L E CZ E M S P OR T OW Y M
P R ZY S ZK O L E P O D S T A W O W E J W Ł A Z I S K A C H D O L N Y C H
I nw e s t o r
Spr a wd zi ł
mg r i n Ŝ. B. Ku si a k
St a d i u m
1/1
44-200 Rybni k
1 11 5 /9 4
.
U R Z Ą D M I A S TA Ł A Z I S K A G Ó R N E
P. B.W
P L A C RA T US ZOW Y 1
A R KU S Z
B AURE N Re nk e Pi otr
PRACOWNIA PROJE KTOWA
ul . Ce gi el ni an a 16
4 4- 20 0 Ry bn ik
u l . Ś w i e r k l a ń sk a 1 2
5 1 / 2 2 / BR / 2 00 6
N u m er r y s un k u
E-08
X3
C
X3
X2
X
C2
C2
2
2
X2
C3
C3
X3
C6
C6
X2
2
C2
X3
C6
C
X
2
C6
C3
C3
X3
C2
X2
C6
X3
C3
C2
C2
X2
X2
C3
C3
U zi o m o t o k o w y, p o zi o m y F e Z n 3 0 x 4
u ł o Ŝo n y w zi e m i n a g ł ę b o k o ś c i 0 . 6 m
X3
X3
P o ł ą c ze n i e s p a w a n e
za b e zp i e c z o n e a n t y k o r o zyj n i e .
O b j a śni en i a
UWAGA !
1. Przewody odprowadzające prowadzić w rurkach pod tynkiem (oci epl eni em).
2.
3.
4.
5.
Zwody poziome mocować na wspornikach klejonych do dachu.
Dane techniczne elementów instalacji podano w zestawieniu materiałów.
Instalacje sali połączyć z instalacjami szkoły.
Złącza kontrolne montować w studzienkach kontrolnych.
p o ł ą c zyć z u zi o m e m s zk o ł y
X2
X3
C1
C2
-
za c i s k k o n t r o l n y
p o ł ą c ze n i e s p a w a n e
zw ó d p o zi o m y p r ę t s t a l o w y o c yn k o w a n y o 8 m m
p r ze w ó d o d p r o w a d za j ą c y
C 3 - p r z e w ó d u zi e m i a j ą c y ( b e d n a r k a F e Z n 2 5 x5 m m )
T yt u ł
C 4 - u zi o m o t o k o w y ( b e d n a r k a F e Z n 3 0 x4 m m )
C6 - w s pornik d ac how y
r y s u nk u
Na z wi s k o
In sta l a cj a od gr omo wa
i u zi emi a j ąca
Pro j e kto wa ł
mg r in Ŝ. A. Sta n i k
u pr . n r
Da t a
Po d p i s
SLK/1 10 6
POOE/0 5
1 0.2 00 6
Pl a n i n s t a l a c j i .
p o ł ą c zyć z u zi o m e m s zk o ł y
Ob ie k t
S A L A GIM NA S T Y CZ NA Z Z A P L E CZ E M S P OR T OW Y M
P R ZY S ZK O L E P O D S T A W O W E J W Ł A Z I S K A C H D O L N Y C H
I nw e s t o r
Spr a wd zi ł
mg r i n Ŝ. B. Ku si a k
St a d i u m
U R Z Ą D M I A S TA Ł A Z I S K A G Ó R N E
P L A C RA T US ZOW Y 1
B AURE N Re nk e Pi otr
ul . Ce gi el ni an a 16
4 4- 20 0 Ry bn ik
1 11 5 /9 4
.
P. B.W
5 1 / 2 2 / BR / 2 00 6
A R KU S Z
N u m er r y s un k u
PRACOWNIA PROJE KTOWA
u l . Ś w i e r k l a ń sk a 1 2
44-200 Rybni k
1/1
E-09