ankieta pdf

Transkrypt

ankieta pdf
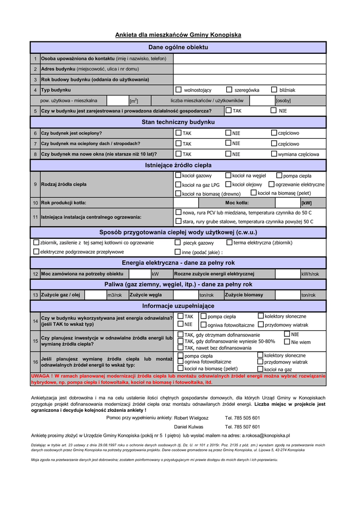
Ankieta dla mieszkańców Gminy Konopiska
Dane ogólne obiektu
1 Osoba upowaŜniona do kontaktu (imię i nazwisko, telefon)
2 Adres budynku (miejscowość, ulica i nr domu)
3 Rok budowy budynku (oddania do uŜytkowania)
4 Typ budynku
wolnostojący
2
pow. uŜytkowa - mieszkalna
szeregówka
bliźniak
liczba mieszkańców / uŜytkowników
[m ]
5 Czy w budynku jest zarejestrowana i prowadzona działalność gospodarcza?
[osoby]
TAK
NIE
Stan techniczny budynku
6 Czy budynek jest ocieplony?
TAK
NIE
częściowo
7 Czy budynek ma ocieplony dach / stropodach?
TAK
NIE
częściowo
8 Czy budynek ma nowe okna (nie starsze niŜ 10 lat)?
TAK
NIE
wymiana częściowa
Istniejące źródło ciepła
9 Rodzaj źródła ciepła
kocioł gazowy
kocioł na węgiel
kocioł na gaz LPG
kocioł olejowy
kocioł na biomasę (drewno)
10 Rok produkcji kotła:
pompa ciepła
ogrzewanie elektryczne
kocioł na biomasę (pelet)
Moc kotła:
[kW]
nowa, rura PCV lub miedziana, temperatura czynnika do 50 C
11 Istniejąca instalacja centralnego ogrzewania:
stara, rury grube stalowe, temperatura czynnika powyŜej 50 C
Sposób przygotowania ciepłej wody uŜytkowej (c.w.u.)
zbiornik, zasilenie z tej samej kotłowni co ogrzewanie
elektryczne podgrzewacze przepływowe
piecyk gazowy
terma elektryczna (zbiornik)
inne (podać jakie) :
Energia elektryczna - dane za pełny rok
12 Moc zamówiona na potrzeby obiektu
kW
Roczne zuŜycie energii elektrycznej
kWh/rok
Paliwa (gaz ziemny, węgiel, itp.) - dane za pełny rok
13 ZuŜycie gaz / olej
m3/rok
ZuŜycie węgla
ton/rok
ZuŜycie biomasy
ton/rok
Informacje uzupełniające
TAK
pompa ciepła
kolektory słoneczne
NIE
ogniwa fotowoltaiczne
przydomowy wiatrak
14
Czy w budynku wykorzystywana jest energia odnawialna?
(jeśli TAK to wskaŜ typ)
15
Czy planujesz inwestycje w odnawialne źródła energii lub
wymianę źródła ciepła?
TAK, gdy otrzymam dofinansowanie
TAK, gdy dofinansowanie wyniesie 50-80%
TAK, nawet bez dofinansowania
16
Jeśli planujesz wymianę źródła ciepła
odnawialnych źródeł energii to wskaŜ typ:
pompa ciepła
ogniwa fotowoltaiczne
kocioł na biomasę (pelet)
lub montaŜ
NIE
Nie wiem
kolektory słoneczne
przydomowy wiatrak
kocioł na gaz
UWAGA ! W ramach planowanej modernizacji źródła ciepła lub montaŜu odnawialnych źródeł energii moŜna wybrać rozwiązanie
hybrydowe, np. pompa ciepła i fotowoltaika, kocioł na biomasę i fotowoltaika, itd.
Ankietyzacja jest dobrowolna i ma na celu ustalenie ilości chętnych gospodarstw domowych, dla których Urząd Gminy w Konopiskach
przygotuje projekt dofinansowania modernizacji źródeł ciepła oraz montaŜu odnawilanych źródeł energii. Liczba miejsc w projekcie jest
ograniczona i decyduje kolejność złoŜenia ankiety !
Pomoc przy wypełnieniu ankiety: Robert Wielgosz
Daniel Kulwas
Tel. 785 505 601
Tel. 785 507 601
Ankietę prosimy złoŜyć w Urzędzie Gminy Konopiska (pokój nr 5 I piętro) lub wysłać mailem na adres: [email protected]
Działając w trybie art. 23 ustawy z dnia 29.08.1997 roku o ochronie danych osobowych (tj. Dz. U. nr 101 z 2015r. Poz. 2135 z póź. zm.) wyraŜam zgodę na przetwarzanie moich
danych osobowych przez Gminę Konopiska na potrzeby przygotowania projektu. Dane osobowe gromadzone są przez Gminę Konopiska, ul. Lipowa 5, 42-274 Konopiska
Moja zgoda na przetwarzanie danych jest dobrowolna; zostałem poinformowany o przysługujacym mi prawie dostępu do moich danych i ich poprawianiu.