Karta charakterystyki produktu - bitumiczna tasma dylatacyjna

Transkrypt

Karta charakterystyki produktu - bitumiczna tasma dylatacyjna
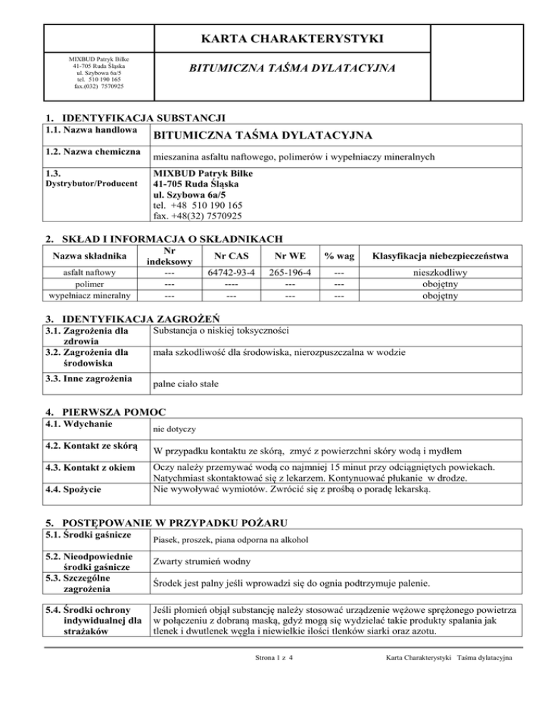
KARTA CHARAKTERYSTYKI
MIXBUD Patryk Bilke
41-705 Ruda Śląska
ul. Szybowa 6a/5
tel. 510 190 165
fax.(032) 7570925
BITUMICZNA TAŚMA DYLATACYJNA
1. IDENTYFIKACJA SUBSTANCJI
1.1. Nazwa handlowa
1.2. Nazwa chemiczna
1.3.
Dystrybutor/Producent
BITUMICZNA TAŚMA DYLATACYJNA
mieszanina asfaltu naftowego, polimerów i wypełniaczy mineralnych
MIXBUD Patryk Bilke
41-705 Ruda Śląska
ul. Szybowa 6a/5
tel. +48 510 190 165
fax. +48(32) 7570925
2. SKŁAD I INFORMACJA O SKŁADNIKACH
Nazwa składnika
asfalt naftowy
polimer
wypełniacz mineralny
Nr
indeksowy
-------
Nr CAS
Nr WE
% wag
Klasyfikacja niebezpieczeństwa
64742-93-4
------
265-196-4
-----
-------
nieszkodliwy
obojętny
obojętny
3. IDENTYFIKACJA ZAGROŻEŃ
3.1. Zagrożenia dla
zdrowia
3.2. Zagrożenia dla
środowiska
3.3. Inne zagrożenia
Substancja o niskiej toksyczności
mała szkodliwość dla środowiska, nierozpuszczalna w wodzie
palne ciało stałe
4. PIERWSZA POMOC
4.1. Wdychanie
4.2. Kontakt ze skórą
4.3. Kontakt z okiem
4.4. Spożycie
nie dotyczy
W przypadku kontaktu ze skórą, zmyć z powierzchni skóry wodą i mydłem
Oczy należy przemywać wodą co najmniej 15 minut przy odciągniętych powiekach.
Natychmiast skontaktować się z lekarzem. Kontynuować płukanie w drodze.
Nie wywoływać wymiotów. Zwrócić się z prośbą o poradę lekarską.
5. POSTĘPOWANIE W PRZYPADKU POŻARU
5.1. Środki gaśnicze
5.2. Nieodpowiednie
środki gaśnicze
5.3. Szczególne
zagrożenia
5.4. Środki ochrony
indywidualnej dla
strażaków
Piasek, proszek, piana odporna na alkohol
Zwarty strumień wodny
Środek jest palny jeśli wprowadzi się do ognia podtrzymuje palenie.
Jeśli płomień objął substancję należy stosować urządzenie wężowe sprężonego powietrza
w połączeniu z dobraną maską, gdyż mogą się wydzielać takie produkty spalania jak
tlenek i dwutlenek węgla i niewielkie ilości tlenków siarki oraz azotu.
Strona 1 z 4
Karta Charakterystyki Taśma dylatacyjna
6. POSTĘPOWANIE W PRZYPADKU NIEZAMIERZONEGO UWOLNIENIA DO ŚRODOWISKA
6.1. Indywidualne
środki ostrożności
6.2. Środowiskowe
środki ostrożności
6.3. Metody
oczyszczania
patrz punkt 8
Nie powinno się odprowadzać do kanalizacji lub cieków wodnych.
Opakowania i opady należy zebrać i przekazać do zniszczenia jako odpad nie będący
niebezpiecznym
7. POSTĘPOWANIE Z SUBSTANCJĄ I JEJ MAGAZYNOWANIE
7.1. Postępowanie z
preparatem
7.2. Magazynowanie
7.3. Informacje
dodatkowe
Unikać wycieków, kontaktu ze skórą i oczami.
Produkt przechowywać w szczelnych opakowaniach w chłodnym i dobrze
wentylowanym miejscu.
Trzymać z dala od żywności, napojów, karmy dla zwierząt.
Chronić przed wilgocią atmosferyczną i wodą. Chronić przed bezpośrednim działaniem
światła słonecznego oraz nagrzaniem (temp. poniżej 30˚C).
8. KONTROLA NARAŻENIA I ŚRODKI OCHRONY INDYWIDUALNEJ
8.1. Parametry
kontrolne
8.2. Zabezpieczenia
techniczne
8.3. Ochrona dróg
oddechowych
8.4. Ochrona rąk
brak
(wg Rozporządzenia MPiPS z dn. 29.XI.2002r; Dz.U. nr 217, poz. 1833)
8.5. Ochrona oczu i
twarzy
8.6. Ochrona skóry
okulary ochronne
8.7. Informacje
dodatkowe
Nie jest konieczne stosowanie specjalnych zabezpieczeń.
nie dotyczy
gumowe rękawice ochronne
ubranie robocze
---
9. WŁAŚCIWOŚCI FIZYKOCHEMICZNE
9.1. postać
ciało stałe barwy czarnej
9.2. zapach
nikły
9.3. pH
obojętne
9.4. temperatury:
wrzenia nie dotyczy
topnienia nie dotyczy
zapłonu > 240oC
samozapłonu --9.5. palność
palny, po wprowadzeniu się do ognia podtrzymuje palenie
9.6. granice wybuchowości
nie dotyczy
dolna: nie dotyczy
górna: nie dotyczy
9.7. właściwości utleniające
nie dotyczy
Strona 2 z 4
Karta Charakterystyki Taśma dylatacyjna
edycja 1
9.8. prężność par
nie dotyczy
9.8. gęstość w 20˚C
1.1-1.3 kg/dm3
9.10. rozpuszczalność:
w wodzie nie rozpuszczalny
w rozpuszcz. organicznych Słaba
9.11. współczynnik podziału
n-oktanol/woda
nie dotyczy
9.12 inne
---
10. STABILNOŚĆ I REAKTYWNOŚĆ
10.1. Warunki, których
należy unikać
10.2. Materiały,
których należy
unikać
10.3. Niebezpieczne
produkty
rozkładu
Z dala od źródeł zapłonu, unikać bardzo wysokich temperatur mogących wywołać
rozkład produktu
silne utleniacze
Nie są znane też żadne typowe niebezpieczne produkty rozkładu
11. INFORMACJE TOKSYKOLOGICZNE
11.1. Działanie
toksyczne i inne
szkodliwe
działanie
biologiczne
11.2. Droga
wchłaniania
11.3. Objawy zatrucia
ostrego
11.4. Objawy zatrucia
przewlekłego
nie dotyczy
-------
12. INFORMACJE EKOLOGICZNE
Nie rozpuszcza się w wodzie, nie przenika do gleby, a tym samym nie stanowi zagrożenia dla środowiska
Degradacja: nie ulega łatwo biodegradacji
Bioakumulacja: nieznana
13. POSTĘPOWANIEZ ODPADAMI
Odpady nie są sklasyfikowane jako niebezpieczne.
(wg: ustawy z dn. 27.IV.2001r o odpadach, Dz.U. nr 62, poz. 628 z późniejszymi zmianami, ustawy z 27.V.2001r o
opakowaniach i odpadach opakowaniowych, Dz.U. nr 63, poz. 638 z późniejszymi zmianami)
14. INFORMACJE O TRANSPORCIE
14.1. Klasa
niebezpieczeństwa
w transporcie wg
ADR/RID:
nie dotyczy
14.2. Grupa
pakowania
Strona 3 z 4
Karta Charakterystyki Taśma dylatacyjna
edycja 1
14.3. Numer UN
14.4. Numer
rozpoznawczy
zagrożenia
14.5. Nalepka
ostrzegawcza
Nie dotyczy
Nie dotyczy
15. INFORMACJE DOTYCZĄCE PRZEPISÓW PRAWNYCH
Ustawa z dnia 11.I.2001r o substancjach i preparatach chemicznych, Dz.U. nr 11, poz. 84 z późniejszymi zmianami
Klasyfikacja produktu zgodna z:
Rozporządzeniem Ministra Zdrowia z dn. 2.IX.2003r. Dz.U. nr 171, poz. 1666,
w sprawie kryteriów i sposobu klasyfikacji substancji i preparatów chemicznych, oraz
Rozporządzeniem Ministra Zdrowia z dn. 2.IX.2003r. Dz.U. nr 199, poz. 1948,
w sprawie wykazu substancji niebezpiecznych wraz z ich klasyfikacją i oznakowaniem
Oznakowanie opakowań zgodne z:
Rozporządzeniem Ministra Zdrowia z dn. 2.IX.2003r. Dz.U. nr 173, poz. 1679,
w sprawie oznakowania substancji niebezpiecznych i preparatów niebezpiecznych
Wszelkie prace z preparatem należy wykonywać zgodnie z przepisami działu IV rozdziału 6 lit. D
Rozporządzenia Ministra Pracy i Polityki Socjalnej z dn. 26.IX.1997 Dz.U. nr 129, poz. 844
w sprawie ogólnych przepisów bezpieczeństwa i higieny pracy z późniejszymi zmianami
16. INNE INFORMACJE
16.1. Zastosowanie
16.2. Inne
Informacje podane w karcie opierają się na aktualnym stanie naszej wiedzy i doświadczeń.
Nie stanowią one gwarancji właściwości produktu ani specyfikacji jakościowej i nie mogą
być podstawą do reklamacji. Produkt powinien być transportowany, magazynowany i
stosowany zgodnie z obowiązującymi przepisami oraz wymaganiami higieny pracy.
Przedstawione informacje nie mogą mieć zastosowania dla mieszanin produktu z innymi
substancjami.
Ruda Śląska. 15.01.2012r.
Strona 4 z 4
Karta Charakterystyki Taśma dylatacyjna
edycja 1