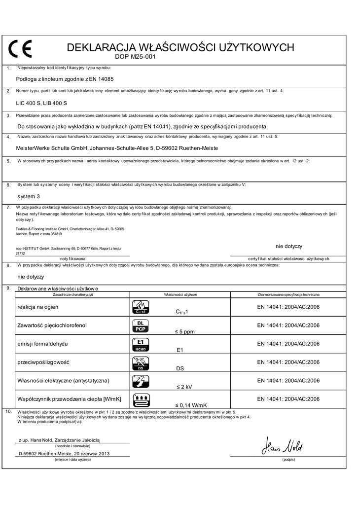
deklaracja właściwości użytkowych

Transkrypt

deklaracja właściwości użytkowych
DEKLARACJA WŁAŚCIWOŚCI UŻYTKOWYCH
DOP M25-001
1.
Niepowtarzalny kod identy f ikacy jny ty pu wy robu:
Podłoga z linoleum zgodnie z EN 14085
2.
Numer ty pu, partii lub serii lub jakikolwiek inny element umożliwiający identy f ikację wy robu budowlanego, wy ma- gany zgodnie z art. 11 ust. 4:
LIC 400 S, LIB 400 S
3.
Przewidziane przez producenta zamierzone zastosowanie lub zastosowania wy robu budowlanego zgodnie z mającą zastosowanie zharmonizowaną specy f ikacją techniczną:
Do stosowania jako wykładzina w budynkach (patrz EN 14041), zgodnie ze specyfikacjami producenta.
4.
Nazwa, zastrzeżona nazwa handlowa lub zastrzeżony znak towarowy oraz adres kontaktowy producenta, wy magany zgodnie z art. 11 ust. 5:
MeisterWerke Schulte GmbH, Johannes-Schulte-Allee 5, D-59602 Ruethen-Meiste
5.
W stosowny ch przy padkach nazwa i adres kontaktowy upoważnionego przedstawiciela, którego pełnomocnictwo obejmuje zadania określone w art. 12 ust. 2:
6.
Sy stem lub sy stemy oceny i wery f ikacji stałości właściwości uży tkowy ch wy robu budowlanego określone w załączniku V:
system 3
7.
W przy padku deklaracji właściwości uży tkowy ch doty czącej wy robu budowlanego objętego normą zharmonizowaną:
Nazwa noty f ikowanego laboratorium testowego, które wy dało certy f ikat zgodności zakładowej kontroli produkcji, sprawozdania z inspekcji oraz raportów obliczeniowy ch (jeśli
doty czy ).
Textiles & Flooring Institute GmbH, Charlottenburger Allee 41, D-52068
Aachen, Raport z testu 351819
nie dotyczy
eco-INSTITUT GmbH, Sachsenring 69, D-50677 Köln, Raport z testu
21712
certy f ikat stałości właściwości uży tkowy ch
noty f ikowana
8.
W przy padku deklaracji właściwości uży tkowy ch doty czącej wy robu budowlanego, dla którego wy dana została europejska ocena techniczna:
nie dotyczy
9.
Deklarow ane w łaściw ości użytkow e
Zasadnicze charakterystyki
reakcja na ogień
Właściwości użytkowe
C fl-s1
Zawartość pięciochlorofenol
Zharmonizowana specyfikacja techniczna
EN 14041: 2004/AC:2006
EN 14041: 2004/AC:2006
≤ 5 ppm
emisji formaldehydu
EN 14041: 2004/AC:2006
E1
przeciwpoślizgowość
EN 14041: 2004/AC:2006
DS
Własności elektryczne (antystatyczna)
EN 14041: 2004/AC:2006
≤ 2 kV
Współczynnik przewodzenia ciepła [W/mK]
EN 14041: 2004/AC:2006
≤ 0,14 W/mK
10.
Właściwości uży tkowe wy robu określone w pkt 1 i 2 są zgodne z właściwościami uży tkowy mi deklarowany mi w pkt 9.
Niniejsza deklaracja właściwości uży tkowy ch wy dana zostaje na wy łączną odpowiedzialność producenta określonego w pkt 4.
W imieniu producenta podpisał(-a):
z up. Hans Nold, Zarządzanie Jakością
(nazwisko i stanowisko)
D-59602 Ruethen-Meiste, 20 czerwca 2013
(miejsce i data wydania)
(podpis)