Karta Diagnostyki iOn

Transkrypt

Karta Diagnostyki iOn
(1/2)
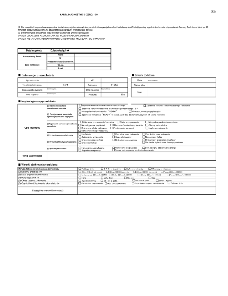
KARTA DIAGNOSTYKI C-ZERO/ I-ON
(1) Dla wszystkich incydentów związanych z siecią trakcyjną(akumulatory trakcyjne,silnik,klimatyzacja,hamulce i kalkulatory sieci Trakcji) prosimy wypełnić ten formularz i przesłać do Pomocy Technicznej jeŜeli po 45
minutach poszukiwania usterki,nie zdiagnozowano przyczyny występowania defektu.
(2) Systematycznie prekazywać kody defektów jak równieŜ zmienne powiązane
UWAGA: ODŁĄCZENIE AKUMULATORA 12V MOśE WYKASOWAĆ DEFEKTY
UWAGA: NIE KASOWAĆ DEFEKTÓW PRZED OTRZYMANIEM PROCEDURY DO WYKONANIA
Data incydentu
Dzień/miesiąc/rok
Nazwa
Autoryzowany Serwis
N°
Doradca techniczny/Ekspert techn.
Dane kontaktowe
TEL No.
E-mail
■ Informacje o samochodzie
■ Zmienne dodatkowe
VIN
Typ samochodu
Y4F1
Typ silnika elektrycznego
Data poczxątku gwarancji
Data incydentu
dzień/miesiąc/rok
dzień/miesiąc/rok
Data
F1E1A
Typ napędu
Data interwencji
dzień/miesiąc/rok
Nazwa pliku
Date/month/year
Inne
Km
Przebieg
■ Incydent zgłoszony przez klienta
Opis incydentu
(1) Niewłaściwe działanie
sygnalizowane kontrolką
Zapalenie kontrolki usterki silnika elektrycznego
Zapalenie kontrolki niedostatecznego ładowania
Zapalenie kontrolki ładowania akumulatora pomocniczego 12 V
Nie zapalenie się wskażnika "READY"
Nie rusza, nawet przyspieszając
(2) Funkcjonowanie samochodu
Dysfunkcja poruszania się pojazdu
Zgaśnięcie wskażnika "READY" w czasie jazdy bez działania kluczykiem wł cznika rozruchu
(3)Pogorszenie warunków prowadzenia
samochodu
Uderzenie przy ruszaniu/rozruchu
Słabe przyspieszanie
Uderzenie/gaśnięcie gdy zwalnia
Nie osiąga max. prędkości
Brak mocy silnika elektryczn.
Mała autonomia po ładowaniu
Zmniejszenie autonomii
Niezgodna prędkość samochodu
Głuchy hałas silnika
Nagłe przyspieszanie
(4) Dysfunkcja systemu ładowania
Nie ładuje
Zadziałanie wyłącznika
Zbyt długi czas ładowania
Hałas elektryczny
Zbyt krótki czas ładowania
Nienormalny hałas
Brak zimnego powietrza
Brak recyrkulacji
Brak ciepłego powietrza
(5) Dysfunkcja klimatyzacji/ogrzewania
Brak zmiany prędkości dmuchawy
Nie działa żądanie max zimnego powietrza
(7) Dysfunkcja hamulców
Hamowanie nieskuteczne
Sygnał ostrzegawczy
Hamowanie się pogarsza
Brak dzwięku odzyskiwania energii
Sygnał ostrzegawczy po długim hamowaniu
Uwagi uzupełniające
■ Warunki uŜytkowania przez klienta
(1) Częstotliwośc uŜytkowania samochodu
(2) Dzienny przebieg km
(3) Max. prędkośc uŜytkowania
(4) Pora uŜytkowania
(5) Okres czasu uŜytkowania
(6) Częstotliwość ładowania akumulatorów
Szczególne warunki(komentarz)
Każdego dnia
2-4 dni w tygodniu
tylko w weekendy
Kilka razy w miesiącu
20km(12mil) lub mniej
40km (25Mil)lub mniej
80km (50Mil) lub mniej
Ponad 80km (50Mil)
Mniejsza od 60km/h (37Mil)
Około 60km/h (37Mil)
Około 80km/h (50Mil)
Ponad 80km/h (50Mil)
Rano
Cały dzień
Wieczór
Noc
od
3
do
4
godz.
ponad 4 godz.
1 godz.lub mniej
od 1 do 2 godz.
Każdego dnia
Przy niskim stopniu naładowania
Po każdym użytkowaniu
Noc po użytkowaniu
##
(2/2)
■ Warunki pojawienia się incydentu
Okresowo( w roku/miesiącu/przy przebiegu km )
Od początku użytkowania
(1)Od kiedy
(2) Znaki ostrzegawcze
(3) Częstotliwośc incydentu
(4) Warunki klimatyczne
(5) Temperetura zewnętrzna
(6) Typ drogi
(7) Poziom wskaznika akumulatora
(8) Warunki jazdy
Tak (częstotliwośc w miesiącu/ w roku )
W pewnych warunkach( )
Okresowa
Pochmurno
Dzień pogodny
Opady deszczu
Opady śniegu
Inne ( )
Powyżej 40°C (104°F)
Od 0°C do 10°C (32°F à 50°F)Od -20°C do 0°C (-4°F à 32°F)
Od 20°C do 40°C (68°F do 104°F)Od 10°C do 20°C (50°F à 68°F)
Jazda w mieście
Jazda poza miastem
Autostrada
W górach
Spadek
Wzniesienie
Inne( )
Około "F"
Około 1/2
1/2 "E"
Zapalenie kontrolki
F na 1/2
Około "E"
Przy rozruchu
Spadek
Rozruch ponowny.
Normalna jazda
Autostrada
Korek drogowy
Wzniesienie
Zatrzymanie
Ruszanie
Przyspieszanie
Stała prędk.(km/h -Miles/h )
Hamowanie
Wsteczny bieg
Długie pozostawienie w pozycji "READY"
Inne( )
Przy wciskaniu.
Lekkie naciśnięcie
Pełne naciśnięcie
% otwarcia(
%)
*Pozycja pedału przyspieszenia.
Po zwolnieniu
Nie
Stała
*Pozycja pedału hamulca
*Pozycja zmiany biegów
(9) Włączone wyposaŜenie
A/C
(10) Ilośc pasaŜerów w samoch.
1 osoba
Pusty
(11) Stan obciąŜenia samochodu
(12) Metoda ładowania akumulatorów
Lekkie naciśnięcie
Ciągłe naciskanie
W pozycji Park
W pozycji Revers
Usuwanie zaparowania
3 osoby
4 osoby
Ogrzewanie
2 osoby
Obciążony (kg )
Szybkie ładowanie
* Typ ładowania
Ładowanie normalne(V )
Po zwolnieniu
W pozycji Drive
Ponowne naciśnięcie
W pozycji Neutre
* Stan naładowania(ilóśc segmentów)
Szczególne warunki(komentarz)
■ Rezultat analizy warsztatu
No
Nie
(1)Historia obsługi i napraw
Tak
1
2
Stały
(2)Incydent
Okresowy
(3)Kod defektu (P-kod)
Nie odtworzony
Przejściowy
Stały
(Kod:
.
.
Przy obecności P-kodu opisać historię interwencji posprzedaŜnych
EV-ECU
MCU
* Nazwa ECU
Bez defektu
.
BMU
.
System ładowania
.
).
Klimatyzacja & ogrzewanie ECU
(4) Opisać warunki pojawiania się defektu
Sprawdzona funkcja
Rezultat
Oznaczenie procedury naprawczej
1
2
3
(5) Analiza
(6) Przyczyna incydentu
(7)Część przyczynowa
usterki
Określona( )
Nazwa
(w przypadku incydentu akumulatora trakcyjnegonaleŜy zastosować specjalną
kartę diagnostyki )
Szczególne warunki(komentarz)
Przypuszczalna( )
Nr.ref części
Nieznana