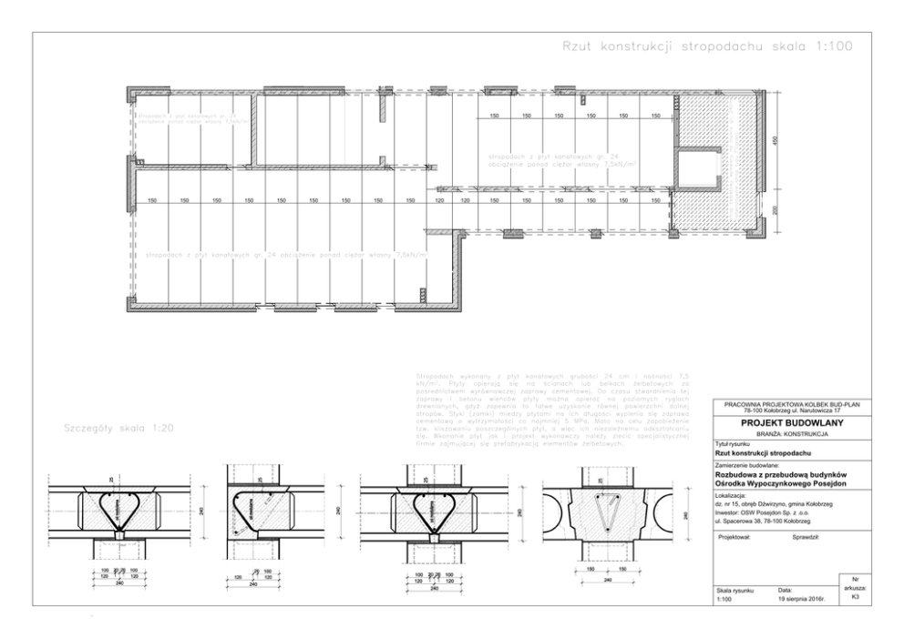
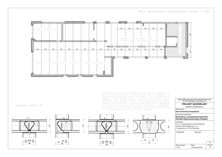
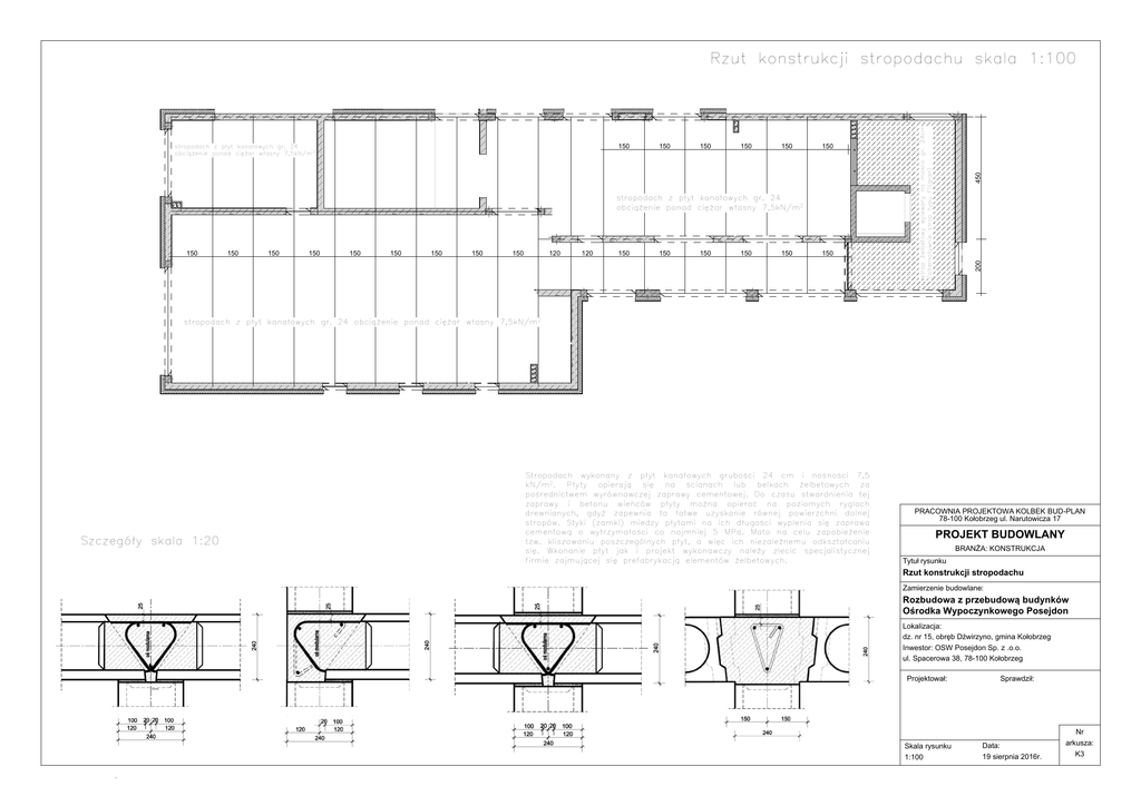
Rzut_konstrukcji_stropodachu - Posejdon Kołobrzeg i Dźwirzyno

Transkrypt

Rzut_konstrukcji_stropodachu - Posejdon Kołobrzeg i Dźwirzyno
150
150
150
150
stropodach z płyt kanałowych gr. 24
obciążenie ponad ciężar własny 7,5kN/m2
150
150
150
150
150
150
150
150
150
120
120
150
150
150
150
150
150
450
150
200
150
stropodach z płyt kanałowych gr. 24
obciążenie ponad ciężar własny 7,5kN/m2
strop żelbetowy wylewany na mokro gr. 24cm
(alternatywnie strop typu Filigran)
Rzut konstrukcji stropodachu skala 1:100
stropodach z płyt kanałowych gr. 24 obciążenie ponad ciężar własny 7,5kN/m2
Szczegóły skala 1:20
Stropodach wykonany z płyt kanałowych grubości 24 cm i nośności 7,5
kN/m2. Płyty opierają się na ścianach lub belkach żelbetowych za
pośrednictwem wyrównawczej zaprawy cementowej. Do czasu stwardnienia tej
zaprawy i betonu wieńców płyty można opierać na poziomych ryglach
drewnianych, gdyż zapewnia to łatwe uzyskanie równej powierzchni dolnej
stropów. Styki (zamki) miedzy płytami na ich długości wyplenia się zaprawa
cementową o wytrzymałości co najmniej 5 MPa. Mato na celu zapobieżenie
tzw. kliszowaniu poszczególnych płyt, a więc ich niezależnemu odkształcaniu
się. Wkonanie płyt jak i projekt wykonawczy należy zlecić specjalistycznej
firmie zajmującej się prefabrykacją elementów żelbetowych.
PRACOWNIA PROJEKTOWA KOLBEK BUD-PLAN
78-100 Kołobrzeg ul. Narutowicza 17
PROJEKT BUDOWLANY
BRANŻA: KONSTRUKCJA
Tytuł rysunku
Rzut konstrukcji stropodachu
Zamierzenie budowlane:
Rozbudowa z przebudową budynków
Ośrodka Wypoczynkowego Posejdon
Lokalizacja:
dz. nr 15, obręb Dźwirzyno, gmina Kołobrzeg
Inwestor: OSW Posejdon Sp. z .o.o.
ul. Spacerowa 38, 78-100 Kołobrzeg
Projektował:
Skala rysunku
1:100
GSPublisherEngine 0.3.100.97
Sprawdził:
Data:
19 sierpnia 2016r.
Nr
arkusza:
K3