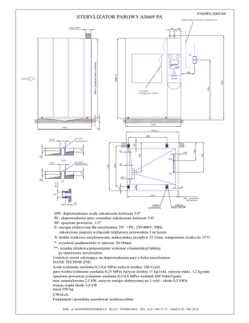
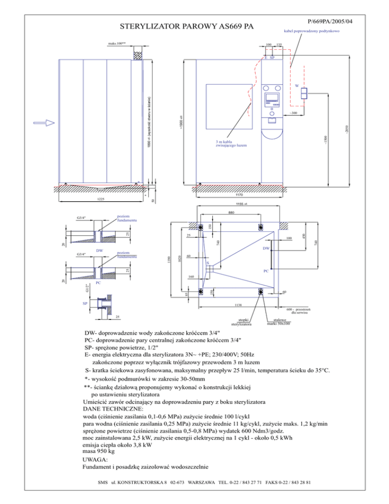
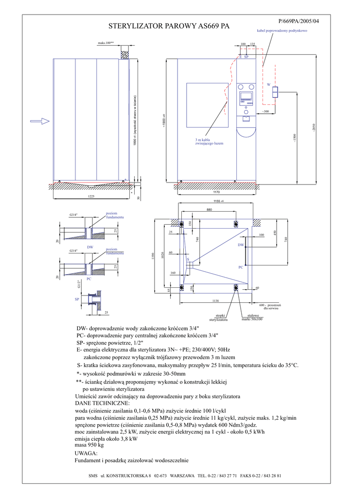
STERYLIZATOR PAROWY AS669 PA

Transkrypt

STERYLIZATOR PAROWY AS669 PA
P/669PA/2005/04
STERYLIZATOR PAROWY AS669 PA
maks.100**
kabel poprowadzony podtynkowo
100
135
E SP
1890 ±5 (wysokoœæ otworu w œcianie)
W
3 m kabla
zwisaj¹cego luzem
*
1170
50
1225
~1500
~2050
~1900 ±20
~300
1155
±5
880
poziom
fundamentu
25
60
S
25
1020
DW
poziom
fundamentu
1190
DW
G3/4"
740
20
740
100
450
25
150
G3/4"
PC
SP
150
PC
85
G1/2"
20
160
60
1138
600 - przestrzeñ
dla serwisu
25
stopki
sterylizatora
stalowe
marki 50x100
DW- doprowadzenie wody zakoñczone króæcem 3/4"
PC- doprowadzenie pary centralnej zakoñczone króæcem 3/4"
SP- sprê¿one powietrze, 1/2"
E- energia elektryczna dla sterylizatora 3N~ +PE; 230/400V; 50Hz
zakoñczone poprzez wy³¹cznik trójfazowy przewodem 3 m luzem
S- kratka œciekowa zasyfonowana, maksymalny przep³yw 25 l/min, temperatura œcieku do 35°C.
*- wysokoœæ podmurówki w zakresie 30-50mm
**- œciankê dzia³ow¹ proponujemy wykonaæ o konstrukcji lekkiej
po ustawieniu sterylizatora
Umieœciæ zawór odcinaj¹cy na doprowadzeniu pary z boku sterylizatora
DANE TECHNICZNE:
woda (ciœnienie zasilania 0,1-0,6 MPa) zu¿ycie œrednie 100 l/cykl
para wodna (ciœnienie zasilania 0,25 MPa) zu¿ycie œrednie 11 kg/cykl, zu¿ycie maks. 1,2 kg/min
sprê¿one powietrze (ciœnienie zasilania 0,5-0,8 MPa) wydatek 600 Ndm3/godz.
moc zainstalowana 2,5 kW, zu¿ycie energii elektrycznej na 1 cykl - oko³o 0,5 kWh
emisja ciep³a oko³o 3,8 kW
masa 950 kg
UWAGA:
Fundament i posadzkê zaizolowaæ wodoszczelnie
SMS ul. KONSTRUKTORSKA 8 02-673 WARSZAWA TEL. 0-22 / 843 27 71 FAKS 0-22 / 843 28 81