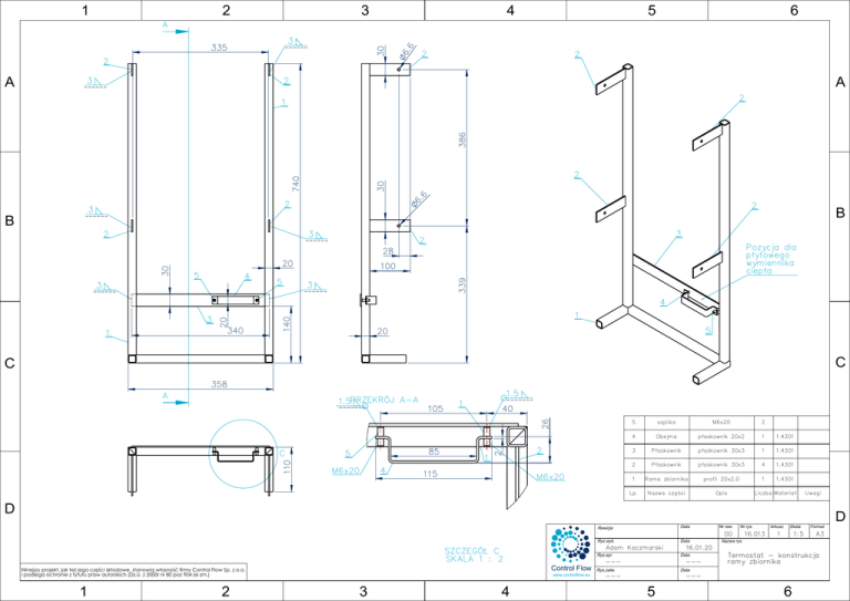
16.00.013 - Termostat - konstrukcja ramy zbiornika

Transkrypt

16.00.013 - Termostat - konstrukcja ramy zbiornika
3
335
4
2
A
3
5
6
6
A
3
6.
2
30
1
2
2
A
2
2
386
1
6.
6
2
3
B
30
740
2
2
3
2
3
2
Pozycja dla
płytowego
wymiennika
ciepła
3
5
4
5
100
339
30
28
20
B
3
340
1
1
140
3
20
4
5
20
C
C
358
A
1.5
105
1
40
110
C
85
5
M6x20
4
1
2
26
1.5PRZEKRÓJ A-A
115
2
M6x20
5
szpilka
M6x20
2
4
Obejma
płaskownik 20x2
1
1.4301
3
Płaskownik
płaskownik 30x3
1
1.4301
2
Płaskownik
płaskownik 30x3
4
1.4301
1
Rama zbiornika
profil 20x2.0
1
1.4301
Lp.
Nazwa części
Opis
Liczba Materiał
Uwagi
D
SZCZEGÓŁ C
SKALA 1 : 2
Ninejszy projekt, jak też jego części składowe, stanowią własność firmy Control Flow Sp. z o.o.
i podlega ochronie z tytułu praw autorskich (Dz.U. z 2000r nr 80 poz 904 ze zm.)
1
2
4
Data
Rys.wyk.
Data
Rys.spr.
Data
Control Flow
Nr rew.
Nr rys.
00
Adam Kaczmarski
www.controlflow.eu
3
Rewizja
---
16.01.20
---
Rys.zatw.
16.013
Arkusz
Skala
1
1:5
Termostat - konstrukcja
ramy zbiornika
---
5
A3
Nazwa rys.
Data
---
Format
6
D