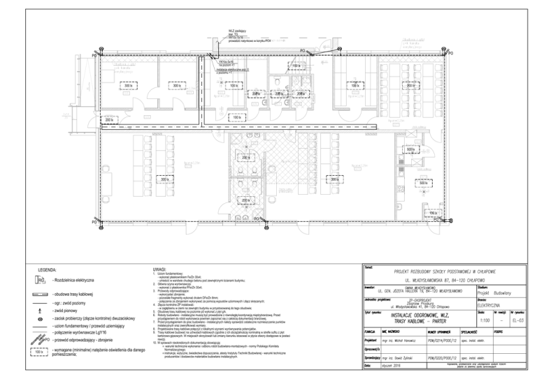
EL-03 - EL-04 (odromowe WLZ trasy kablowe)_v8 EL-03

Transkrypt

EL-03 - EL-04 (odromowe WLZ trasy kablowe)_v8 EL-03
WLZ zasilający
kier. TG
YKYżo 5x16
prowadzić natynkowo w korytku PCV
PO
PO
PO
YKYżo 5x16
na poziom +1
instalacje elektryczne poz. 0
z poziomu +1
300 lx
300 lx
150 lx
100 lx
100 lx
200 lx
200 lx
200 lx
200 lx
100 lx
200 lx
500 lx
200 lx
300 lx
300 lx
500 lx
200 lx
100 lx
PO
PO
LEGENDA:
RG
- Rozdzielnica elektryczna
- obudowa trasy kablowej
- ogr.: zwód poziomy
- zwód pionowy
- zacisk probierczy (złącze kontrolne) dwuzaciskowy
- uziom fundamentowy / przewód uziemiający
- połączenie wyrównawcze LgY16
PO - przewód odprowadzający - zbrojenie
100 lx
- wymagane (minimalne) natężenie oświetlenia dla danego
pomieszczenia;
PO
UWAGI:
1. Uziom fundamentowy:
- wykonać płaskownikiem Fe/Zn 30x4;
- umieścić w warstwie chudego betonu pod zewnętrznymi ścianami budynku;
2. Główna szyna wyrównawcza:
- wykonać z płaskownika PFe/Zn 30x4;
3. Przewody odprowadzające:
- wykorzystać zbrojenie;
- pozostałe fragmenty wykonać drutem DFe/Zn 8mm;
- połączenia ze zbrojeniem wykonywać za pomocą wypustów uziomowych i złącz skręcanych;
4. Złącza kontrolne ZP instalować:
- w zagłębieniu w ziemi na zewnątrz budynku w przystosowanej do tego obudowie;
5. Obudowę trasu kablowej na poziomie p0 wykonać z płyt g/k.
6. Roboty budowlano - instalacyjne muszą być prowadzone z równoległą koordynacją międzybranżową. Przed
przystąpieniem do robót wykonawca powinien zapoznać się z całością dokumentacji branżowej.
7. Przed przystąpieniem do prac budowlano - instalacyjnych należy sprawdzić ostateczne rozmieszczenie punktów
instalacyjnych oraz zweryfikować wymiary.
8. Projektowane trasy kablowe połączyć z lokalnymi szynami wyrównywania potencjałów.
9. Trasy kablowe budować na uchwytach kablowych zgodnie z ich obciążalnością nominalną w strefie sufitu z płyt
kartonowo-gipsowych. W miejscach skrzyżowań lub zmiany kierunku stosować w płycie otwory dostępowe w postaci
rewizji.
10. W sprawach nieokreślonych dokumentacją obowiązują:
• warunki techniczne wykonania i odbioru robót budowlano-montażowych - normy Polskiego Komitetu
Normalizacyjnego;
• instrukcje, wytyczne, świadectwa dopuszczenia, atesty Instytutu Techniki Budowlanej - warunki techniczne
producentów i dostawców materiałów budowlano instalacyjnych.
b
a a