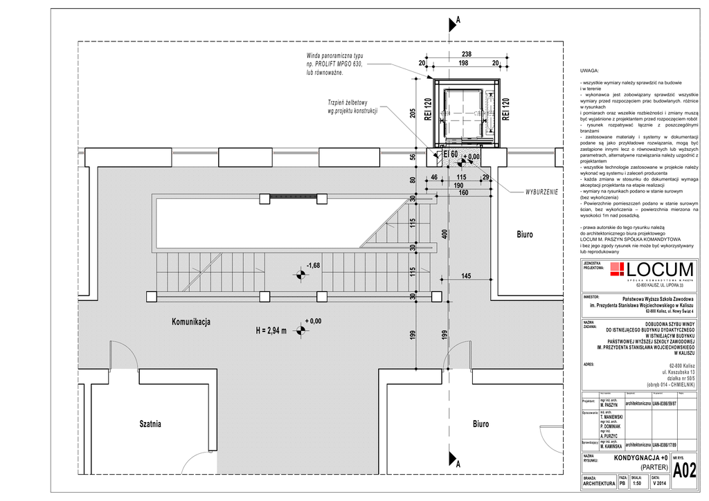
H = 2,94 m Komunikacja Szatnia Biuro Biuro EI 60 REI 120 REI 120

Transkrypt

H = 2,94 m Komunikacja Szatnia Biuro Biuro EI 60 REI 120 REI 120
A
Winda panoramiczna typu
np. PROLIFT MPGO 630,
lub równoważne.
20
20
EI 60
46
+ 0,00
115
190
160
29
W YBUR ZEN IE
400
115
30
80
REI 120
REI 120
205
UWAGA:
56
Trzpień żelbetowy
wg.projektu konstrukcji
238
198
30
Biuro
- prawa autorskie do tego rysunku należą
do architektonicznego biura projektowego
LOCUM M. PASZYN SPÓŁKA KOMANDYTOWA
i bez jego zgody rysunek nie może być wykorzystywany
lub reprodukowany
115
JEDNOSTKA
PROJEKTOWA:
LOCUM
91
210
145
30
-1,68
- wszystkie wymiary należy sprawdzić na budowie
i w terenie
- wykonawca jest zobowiązany sprawdzić wszystkie
wymiary przed rozpoczęciem prac budowlanych. różnice
w rysunkach
i pomiarach oraz wszelkie rozbieżności i zmiany muszą
być wyjaśnione z projektantem przed rozpoczęciem robót
- rysunek rozpatrywać łącznie z poszczególnymi
branżami
- zastosowane materiały i systemy w dokumentacji
podane są jako przykładowe rozwiązania, mogą być
zastąpione innymi lecz o równoważnych lub wyższych
parametrach, alternatywne rozwiązania należy uzgodnić z
projektantem
- wszystkie technologie zastosowane w projekcie należy
wykonać wg systemu i zaleceń producenta
- każda zmiana w stosunku do dokumentacji wymaga
akceptacji projektanta na etapie realizacji
- wymiary na rysunkach podano w stanie surowym
(bez wykończenia)
- Powierzchnie pomieszczeń podano w stanie surowym
ścian, bez wykończenia – powierzchnia mierzona na
wysokości 1m nad posadzką.
91
210 M . P A S Z Y N
62-800 KALISZ, UL. LIPOWA 33
S P Ó Ł K A
INWESTOR:
91
210
Państwowa Wyższa Szkoła Zawodowa
im. Prezydenta Stanisława Wojciechowskiego w Kaliszu
199
199
H = 2,94 m
NAZWA
ZADANIA:
62-800 Kalisz, ul. Nowy Świat 4
DOBUDOWA SZYBU WINDY
DO ISTNIEJĄCEGO BUDYNKU DYDAKTYCZNEGO
W ISTNIEJĄCYM BUDYNKU
PAŃSTWOWEJ WYŻSZEJ SZKOŁY ZAWODOWEJ
IM. PREZYDENTA STANISŁAWA WOJCIECHOWSKIEGO
W KALISZU
91
+ 0,00
ADRES:
210
Komunikacja
K O M A N D Y T O W A
Im ię i nazw isko:
Projektant:
62-800 Kalisz
ul. Kaszubska 13
działka nr 50/5
(obręb 014 - CHMIELNIK)
Specjalność:
mgr inż. arch.
Nr upraw nień:
Podpis:
architektoniczna UAN-8386/59/87
M. PASZYN
Opracow anie: inż. arch.
T. MANIEWSKI
Szatnia
mgr inż. arch.
Biuro
P. DOMINIAK
mgr inż.
A. PURZYC
91
Spraw dzający: mgr inż. arch.
210
M. KAMIŃSKA architektoniczna UAN-8386/17/89
A
NAZWA
RYSUNKU:
BRANŻA:
KONDYGNACJA +0
(PARTER)
FAZA:
ARCHITEKTURA PB
SKALA:
1:50
DATA:
V 2014
NR RYS.
A02