Schemat zasilania

Transkrypt

Schemat zasilania
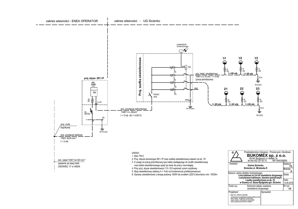
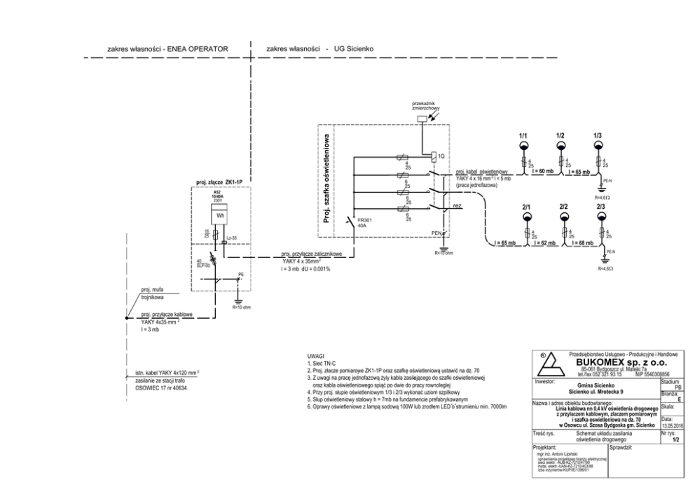
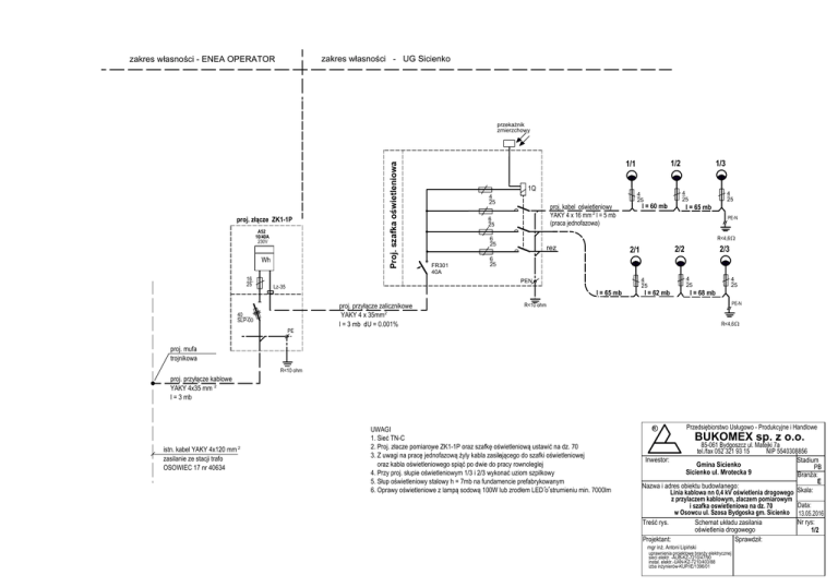
zakres własności - UG Sicienko
zakres własności - ENEA OPERATOR
proj. złącze ZK1-1P
A52
10/40A
230V
Wh
16
25
Proj. szafka oświetleniowa
przekażnik
zmierzchowy
4
25
1Q
proj. kabel oświetleniowy
YAKY 4 x 16 mm 2 l = 5 mb
(praca jednofazowa)
6
25
FR301
40A
rez
40
SLP-00
PE
l = 60 mb
4
25
l = 65 mb
4
25
PE-N
2/2
2/1
6
25
l = 65 mb
proj. przyłącze zalicznikowe
YAKY 4 x 35mm2
l = 3 mb dU = 0.001%
4
25
1/3
R<4,6 :
6
25
PEN
Lz-35
1/2
1/1
4
25
l = 62 mb
2/3
4
25
l = 68 mb
4
25
PE-N
R<10 ohm
R<4,6 :
proj. mufa
trojnikowa
R<10 ohm
proj. przyłącze kablowe
YAKY 4x35 mm 2
l = 3 mb
istn. kabel YAKY 4x120 mm
zasilanie ze stacji trafo
OSOWIEC 17 nr 40634
2
UWAGI
1. Sieć TN-C
2. Proj. złacze pomiarowe ZK1-1P oraz szafkę oświetleniową ustawić na dz. 70
3. Z uwagi na pracę jednofazową żyly kabla zasilającego do szafki oświetleniowej
oraz kabla oświetleniowego spiąć po dwie do pracy rownoleglej
4. Przy proj. słupie oświetleniowym 1/3 i 2/3 wykonać uziom szpilkowy
5. Słup oświetleniowy stalowy h = 7mb na fundamencie prefabrykowanym
6. Oprawy oświetleniowe z lampą sodową 100W lub zrodłem LED o strumieniu min. 7000lm
R
Przedsiębiorstwo Usługowo - Produkcyjne i Handlowe
BUKOMEX sp. z o.o.
85-061 Bydgoszcz ul. Matejki 7a
tel./fax 052 321 93 15
NIP 5540308856
Inwestor:
Stadium
Gmina Sicienko
PB
Sicienko ul. Mrotecka 9
Branża:
E
Nazwa i adres obiektu budowlanego:
Skala:
Linia kablowa nn 0,4 kV oświetlenia drogowego
z przylaczem kablowym, zlaczem pomiarowym
Data:
i szafka oswietleniowa na dz. 70
w Osowcu ul. Szosa Bydgoska gm. Sicienko 13.05.2016
Nr rys:
Treść rys.
Schemat układu zasilania
oświetlenia drogowego
1/2
Sprawdził:
Projektant:
mgr inż. Antoni Lipiński
uprawnienia projektowe branży elektrycznej
sieci elektr. -AUB-KZ-7210/47/90
instal. elektr.-UAN-KZ-7210/403/88
izba inżynierów-KUP/IE/1396/01