R E W I Z J E

Transkrypt

R E W I Z J E
dylatacja
2xS/FTP cat. 7
1xOMY 2x1,5
z poziomu +5
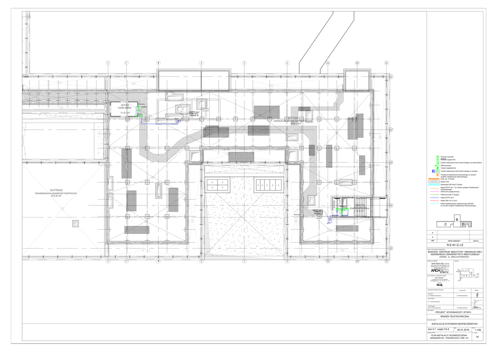
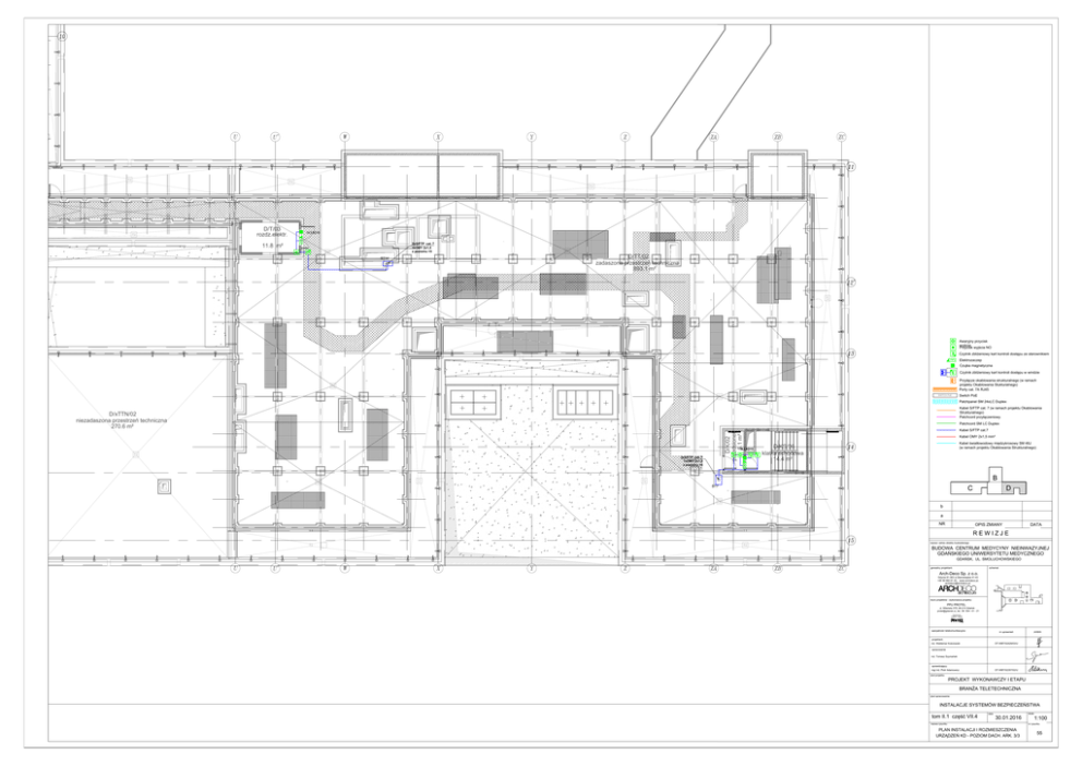
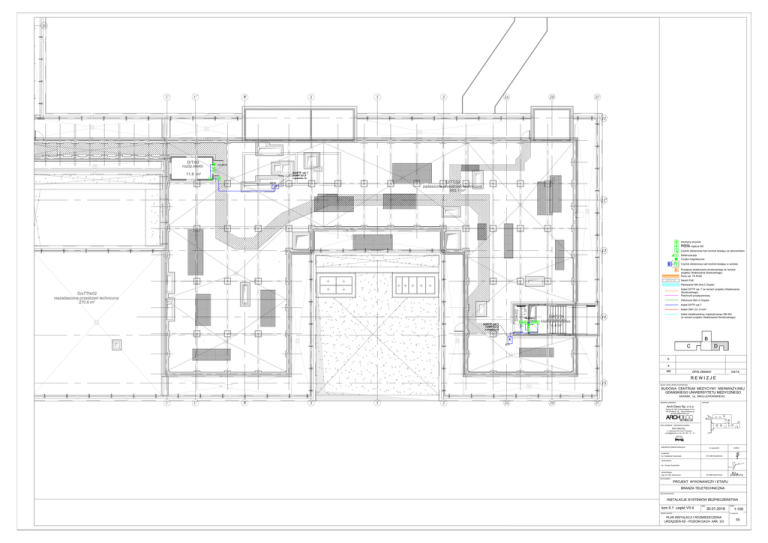
D/TT/02
893.1
Awaryjny przycisk
Elektrozaczep
Czujka magnetyczna
projektu Okablowania Stukturalnego)
Porty cat. 7A RJ45
SWITCH PoE
Switch PoE
Patchpanel SM 24xLC Duplex
Kabel S/FTP cat. 7 (w ramach projektu Okablowania
Strukturalnego)
D/xTTN/02
Patchcord SM LC Duplex
D/K/02
przedsionek
5.1
270.6
14.5.KD15
3xS/FTP cat. 7
1xOMY 2x1,5
z poziomu +5
Kabel S/FTP cat.7
D/KS/06
klatka schodowa
14.4
(w ramach projektu Okablowania Strukturalnego)
B
D
C
b
a
NR
OPIS ZMIANY
DATA
REWIZJE
nazwa i adres obiektu budowlanego
BUDOWA CENTRUM MEDYCYNY NIEINWAZYJNEJ
genealny projektant:
schemat
Arch-Deco Sp. z o.o.
Gdynia 81-363 ul.Starowiejska 41-43
+48 58 660 81 20, www.archdeco.pl,
[email protected]
PPU PROTEL
[email protected], tel.: 58 554 - 01 - 21
podpis
projektant:
DT-WBT/02429/03/U
opracowanie
DT-WBT/02357/02/U
PROJEKT WYKONAWCZY I ETAPU
skala
data
30.01.2016
nazwa rysunku
PLAN INSTALACJI I ROZMIESZCZENIA
1:100
nr rysunku
55