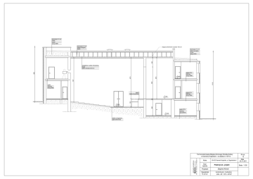
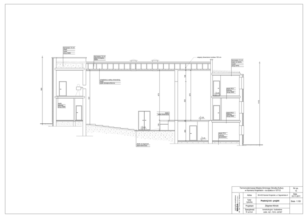
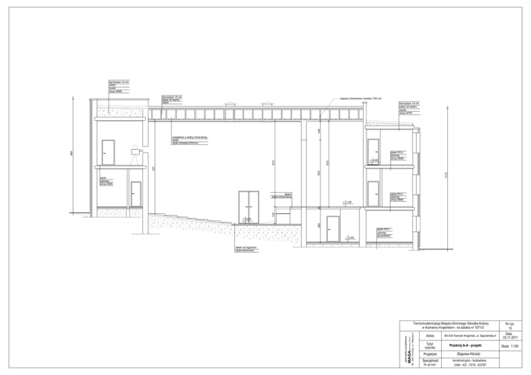
Przekrój AA - Gmina Kamień Krajeński

Transkrypt

Przekrój AA - Gmina Kamień Krajeński
styropapa 14 cm
papa
żużel
strop DMS
styropapa 14 cm
papa na lepiku
deski
wiązary drewniane rozstaw 100 cm
148
styropapa 14 cm
papa na lepiku
żużel
strop WPS
+ 4,65
płytki PCV
szlichta
strop DMS
1115
525
727
673
673
900
ocieplenie z wełny mineralnej
deski
płytki dźwiękochłonne
płytki
szlichta
strop DMS
deski
belka drewniana
płytki PCV
szlichta
strop DMS
135
20
+ 1,35
260
+- 0,00
- 1,45
płytki PCV
szlichta
gruzobeton
deski na legarach
płyta betonowa
Jednostka projektowa
MAGAAgnieszka Mazur
89 - 500 Tuchola, ul. Wiejska 4
Termomodernizacja Miejsko-Gminnego Ośrodka Kultury
w Kamieniu Krajeńskim - na działce nr 1071/2
Adres
Tytuł
rysunku
89-430 Kamień Krajeński, ul. Sępoleńska 4
Przekrój A-A - projekt
Projektant
Zbigniew Klinicki
Specjalność
konstrukcyjno - budowlana
UAN - KZ - 7210 - 237/87
Nr upr.bud.
Nr rys.
13
Data
03.11.2011
Skala 1:100