-b J B

Transkrypt

-b J B
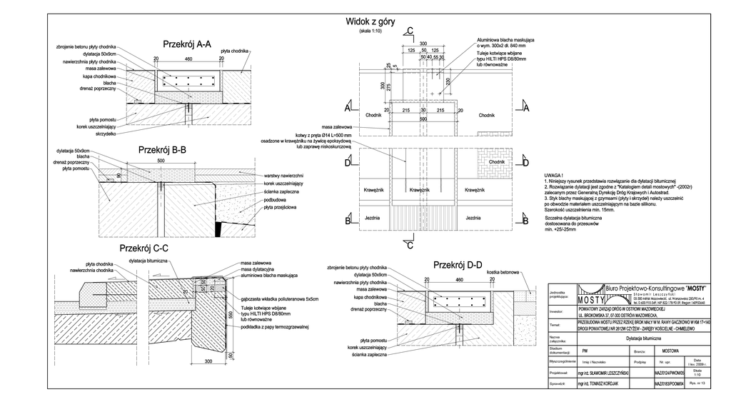
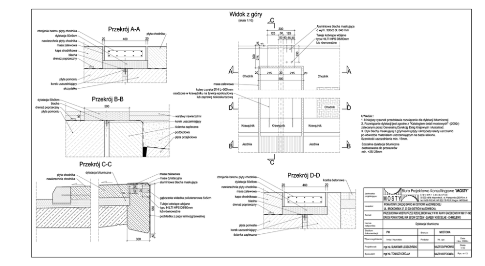
Widok z góry
(skala 1:10)
zbrojenie betonu płyty chodnika
Aluminiowa blacha maskująca
o w y m . 300x2 dł. 840 m m
Przekrój A-A
Tuleje kotwiące wbijane
typu HILTI HPS D8/80mm
lub równoważne
dylatacja 50x9cm
nawierzchnia płyty chodnika
masa zalewowa
kapa chodnikowa
blacha
drenaż poprzeczny
JA
Chodnik
płyta pomostu
korek uszczelniający
masa zalewowa
skrzydełko
kotwy z pręta 0 1 4 L=500 m m
osadzone w krawężniku na żywicę epoksydową
lub zaprawę niskoskurczową
dylatacja 50x9cm
blacha
drenaż poprzeczny
płyta pomostu
Przekrój B-B
L
X
y
I
warstwy nawierzchni
i
<
i
I
i
2
i
I
I
korek uszczelniający
i
<
ścianka zapleczna
I Krawężnik
><
podbudowa
I
|
K
płyta przejściowa
Q
1
i Jezdnia
i
i
_._.. .
[..
1
.1. .
p j ~ Chodnik T
>
X
-b
*
II
I
i
X
>
1
><
X
x
Krawężnik
JB
Jezdnia
. ....
J
UWAGA!
1. Niniejszy rysunek przedstawia rozwiązanie dla dylatacji bitumicznej
2. Rozwiązanie dylatacji jest zgodne z "Katalogiem detali mostowych" -(2002r)
zalecanym przez Generalną Dyrekcję Dróg Krajowych i Autostrad.
3. Styk blachy maskującej z gzymsami (płyty i skrzydeł) należy uszczelnić
po obwodzie materiałem uszczelniającym na bazie silikonu.
Szerokość uszczelnienia min. 15mm.
Szczelna dylatacja bitumiczna
dostosowana do przesuwów
min. +25/-25mm
-d
Przekrój C-C
dylatacja bitumiczna-
i
I Krawęj ntk
1
I 1
| |
i
L
płyta chodnika
nawierzchnia chodnika
X
I
I
-masa zalewowa
-masa dylatacyjna
-aluminiowa blacha maskująca
Przekrój D-D
zbrojenie betonu płyty chodnika -
ł
kostka
betonowa-
dylatacja 50x9cmnawierzchnia płyty chodnika-
S9
460
20
masa zalewowagąbczasta wkładka poliuteranowa 5x5cm
Tuleje kotwiące wbijane
typu HILTI HPS D8/80mm
lub równoważne
Jednostka
projektująca:
kapa chodnikowablachadrenaż poprzeczny-
I nwestor:
Temat:
podkładka z papy termozgrzewalnej
V ^ > ^
I I T* i i T T I I
MOSTY
Biuro Projektowo-Konsultingowe "MOSTY"
\r^
S ł an w on m i r LIp<i7r7vń<;ki
eszczyński
05-300 Mińsk Mazowiecki, ul. Warszawska 250/95 m. 4
lei. 0-600-910-349, NIP 822-178-90-59, Regon 140953645
POWIATOWY ZARZĄD DRÓG W 0STR0WI MAZOWIECKIEJ
UL. BR0K0WSKA 37,07-300 OSTRÓW MAZOWIECKA,
PRZEBUDOWA MOSTU PRZEZ RZEKĘ BROK MAŁY W M. RAWY GACZK0W0 W KM 17+140
DROGI POWIATOWEJ NR 2612W CZYŻEW ■ ZARĘBY KOŚCIELNE ■ CHMIELEWO
płyta pomostu
korek uszczelniający
ścianka zapleczna
._J
Nazwa
załącznika:
Dylatacja bitumiczna
Stadium
dokumentacji:
PW
Branża:
Wyszczególnienie
Imię i Nazwisko
Podpisy
MOSTOWA
Nr. upr.
Data
I kw. 2009 r.
Projektował:
mgr inż. SŁAWOMIR LESZCZYŃSKI
MAZ/0124/PWOM/05
Skala
1:10
Sprawdził:
mgr inż. TOMASZ KORDJAK
MAZ/0183/POOM/04
Rys. nr 13