STUDIO BUDOWLANE "UNITY" SC ul. KĊdzierskiego 2/66

Transkrypt

STUDIO BUDOWLANE "UNITY" SC ul. KĊdzierskiego 2/66
konstrukcji aluminiowej malowanej proszkowo oraz
niskoemisyjnego, hartowanego, malowanego,
barwionego w masie o kolorze niebieskim gr. 8.8mm,
konstrukcji aluminiowej malowanej proszkowo oraz
niskoemisyjnego, hartowanego, malowanego,
barwionego w masie o kolorze niebieskim gr. 8.8mm,
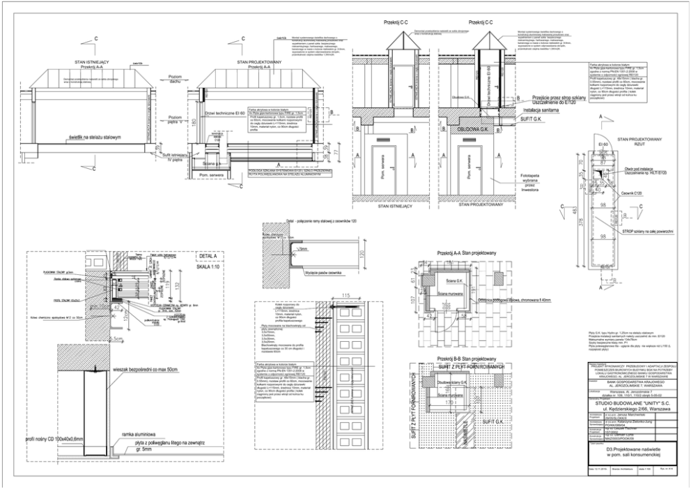
REI120
Drzwi techniczne EI 60
Poziom
Profil kapeluszowy gr. 1,5cm, rozstaw profili
Profil kapeluszowy gr. 48x15mm ( blacha gr.
0.55mm), rozstaw profili co 60cm, mocowanie
REI120
Obudowa G.K.
REI120
Poziom
dachu
Drzwi techniczne EI 60
REI120
STAN PROJEKTOWANY
profila
STAN PROJEKTOWANY
RZUT
Fototapeta
wybrana
przez
Inwestora
REI120
Pom. serwera
Pom. serwera
Pom. serwera
EI 60
REI120
REI120
STAN PROJEKTOWANY
REI120
profila kapeluszowego
3,5x70mm,
3,5x55mm,
3,5x35mm,
3,5x25mm.
Maksymalne wymiary panela 134x78cm
Szyby bezpieczne klasy min. P1
rozstawie 60cm
Profil kapeluszowy gr. 48x15mm ( blacha gr.
0.55mm), rozstaw profili co 60cm, mocowanie
REI120
Nazwa inwestycji
LOKALU GASTRONOMICZNEGO BANKU GOSPODARSTWA
KRAJOWEGO, AL. JEROZOLIMSKIE 7 W WARSZAWIE
Inwestor
BANK GOSPODARSTWA KRAJOWEGO
AL. JEROZOLIMSKIE 7, WARSZAWA
Lokalizacja
Warszawa, Al. Jerozolimskie 7
Generalny Projektant
STUDIO BUDOWLANE "UNITY" S.C.
Architektura
Projektant
Architektura
Konstrukcja
Projektant
Konstrukcja
29/05/SLOKK/II
Katarzyna Zielonko-Jung
PO/KK/089/04
Leszek Tischner
157/2002
Damian Cyrta
MAZ/0003/POOK/09
w pom. sali konsumenckiej
Data: 12.11.2015r.
skala 1:100
Rys. nr: A14